忙于工作的男女业主,和父母、女儿生活在一起,三代同堂的5口之家,因为小朋友读书搬到这边,买下&装修好做学区房

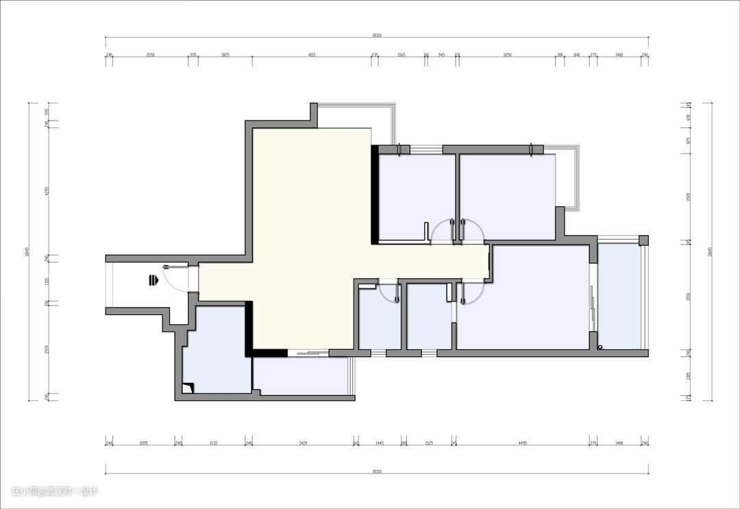
改造前: 1.进门处空间被闲置 2.全房的收纳不足,小孩子的玩具等没有位置放 3.厨房空间进出不便,空间光线不足,通风效果不佳 4.三房不能满足现在的居住需求 5.走廊空间被闲置,没有充分利用

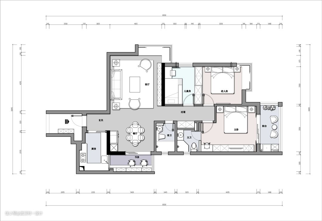
改造后: 1.原有厨房分割成厨房、书房两个空间,满足业主的学习工作独立空间需求 2.入户增加鞋柜玄关,放置鞋子、伞具等物品 3.厨房门更换方向,临近入户,增加滑动门设计 4.原有卧室区的走廊设计一整排的到顶衣柜,增加收纳 5.主卧室增加一整排到顶柜子+梳妆台设计



全房属于开放式空间,采用无主灯设计,隐藏在悬浮顶灯带成为客厅的主光源,搭配射灯增加室内的氛围感和层次光感。

烟熏木茶几+三人位布艺沙发搭配,沙发尺寸为2500*1050*800mm,增加空间的温馨感,定制山水泼墨墙画融入整个沙发背景墙,墙画的尺寸为2400*3000mm

地面选用规格600mm至1200mm的地砖,墙面使用象牙粉乳胶漆涂料,与家具的木色相得益彰

古风气质满满的灰橡木休闲椅,橙色与黑色搭配,皮质与木质相互碰撞,又多了一份现代气息

忽然冒出的陶瓷装饰灯,一点侘寂风点缀也很有氛围感

考虑到业主的收纳要求,整面墙作为电视柜,电视嵌入柜子,满足了业主对收纳和娱乐的双重要求,柜子的中空设计为路由器等提供收纳区。

480*480*570mm尺寸的红烤漆边几,红黑配色更显高级,日常可放置装饰,也可以作为临时收纳点。

走廊尽头的艺术装饰挂画,与空间整体的红色相呼应,走道右边设计增加整面到顶的收纳柜,采用按压式柜门设计,增加空间的整体性。

不能拆掉的承重墙,嵌入mm*mm尺寸的双开门冰箱,墙面的其余部分设计整面收纳柜,增加储物解放厨房

实木底架搭配岩板台面的餐桌,与烟熏木餐椅搭配,更加具有自然的气息,山峰形状的艺术吊顶增加氛围感

低明度的红绿搭配在这个空间显得更加的具有碰撞感

厨房采用U型设计,吊柜+地柜设计,增加厨房收纳,厨房通行距离为900mm左右,两三个人在里面做饭也不会显得拥挤

墙砖选用规格400*800mm进行薄贴,玻璃滑动门设计减少室内的空间占用,也能隔绝厨房的油烟味进入客厅。


卧室增加整面墙的到顶柜子和梳妆桌一体设计,采用按压式开关柜门,方便日常物品拿放

梳妆台嵌入整面衣柜中,分为抽屉、台面、开放式收纳三部分,充分利用空间增加收纳,梳妆凳选用450*350*420mm,PU皮搭配碳素钢

白色涂料与定制柜颜色一致,简约雅致延伸整个空间的纵深感,定制的1900*2150*1060mm尺寸的纳帕皮床,增加空间的时尚质感

床头采用有质感的真皮硬包,吸音静眠&时尚兼具,床头柜选用550*450*550mm,整体材质是碳素钢+高密度板

墙砖选用400*800mm进行薄贴,淋浴+洗漱台+马桶进行三分离,在一个空间也不会显得凌乱

长虹玻璃有效的将卫生间与主卧睡觉区域分开

厨房门更换之后,原有清洗池区设计改造为书房,白色+木色双色搭配的定制收纳柜,引导视觉的通透感。

吊柜搭配悬空抽屉书桌收纳,能满足日常学习工作以及书籍收纳

书房也需要搭配一些绿植,才能更加有生机与活
全案报价: 1.硬装改造类:¥90000 2.品牌家具类:总计15件,¥120000 3.窗帘类:¥13000 4.墙面类:¥37000 5.定制木作类:¥130000
项目坐标:武汉 · 金色华府 项目户型:平层 125㎡ 项目风格:新中式 项目设计:夏奇 设计机构:时一设计 施工公司:圆方筑造
