业主是幸福的一家三口,女儿二十多岁刚刚出社会参加工作,家里收入好了,一家人决定提升一下生活质量,告别住了十多年的老房子,搬进新居,展开一段新生活。 这套四室的房子,除了夫妻两和女儿各有一间卧室外,还需要一间客房,未来可以做儿童房;还要有一间书房,男主人喜欢上网下棋,这下就有独享的空间了。 女主人爱好丰富,很多时间在外奔忙。家务时间很短,所以装修上希望越方便打扫越好。男主人是很细致的人,对于细节要求高,在施工过程中,也是会关注到每一处的质量规范。

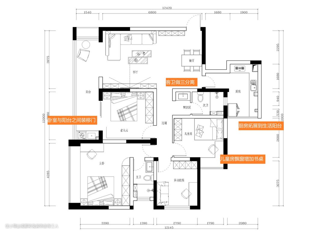
作为套四的户型,这套房子的采光通风都挺好,客厅和两间卧室都有南朝向的窗户,客厅进深长于开间,为了更好的采光效果,我们拆除了阳台到客厅之间的推拉门。 厨卫动静分区还是很好,生活动线没有交叉,起居不易互相影响; 卫生间和卧室也没有存在门对门的问题,所以整体格局未做大的调整。 唯一不足的地方是,厨卫都比较小。男主人喜欢做饭,需要更大的厨房,我们把厨房扩展到了生活阳台,增加了橱柜面积。 次卫做了三分离,把洗漱区移出来,这样回家洗手也更方便了。
进门见厅户型,玄关柜承担起更多客厅收纳需要,客厅进深6.8米,留下沙发位置后,并排设计了2.4米的定制柜四组,其中一组做玄关鞋柜,另外三组做客厅和餐厅之间的衔接,就近收纳餐厅需要用的小电器等。 #玄关柜 #餐边柜 #无拉手定制柜

玄关柜:柜体采用白色无把手柜门,极简的风格,彰显了客厅的空间感。和白色电视墙定制柜,相互呼应,和谐的搭配出客厅家具的整体感。

#玄关柜 #餐边柜 #无拉手定制柜

玄关柜中间留空,设计储物格,能够把进出门随手的物品放在这里,无拉手设计,也让玄关柜更加显得清爽简洁。
全屋无吊顶,餐厅区域就用一组吊灯和岩板餐桌来上下呼应,构建一个极简却很有质感的用餐空间。

客餐厅一体布局,灰色800*1200cm的大尺寸地砖搭配白色乳胶漆墙面,营造现代简约的空间氛围,黑色门槛和黑色线条吊灯、黑色实木餐桌餐椅框架,流畅的勾勒出家的三餐四季。 #餐厅吊灯 #岩板餐桌

餐厅和客厅之间没有做隔断吊顶的空间区分,采用餐桌靠墙的布局方式,保留整个客厅的空间感,同时方便入户后到卧室区域的路径流畅。

深色踢脚线,增加了视觉的延伸感,也丰富了餐区空间层次感。 #岩板餐桌 #深色踢脚线
客厅布局上,考虑到客厅收纳需要,将电视墙尽可能多的做了收纳柜,电视背景墙还做了镂空隔断,方便展示主人的收藏,为家增添更多趣味。

阳台到客厅之间的隔断拆除后,保留了更宽大的垭口,让更多自然光线进入客厅,选择L型布局的廓形沙发,围合出观影区和阳台休闲区两个区域。

客厅配色:客厅配色以白色和灰色为基调,沙发背景墙用低饱和度的蓝色,以活跃空间气氛,增加了家的清爽感。选择小尺寸的圆形茶几,满足功能性的同时,保持客厅的开放、通透感。

电视柜:在电视柜边框、垭口门套、茶几框架,等局部用黑色,来增强对比,让空间看上去更丰富,更有精致的层次感。 #岩板茶几 #无吊顶 #垭口门套

客厅沙发:客厅沙发选择灰色主调,减轻了分量感,不大的客厅显得更加清爽;沙发背景墙用石膏线做修饰,简洁中增添了一些精致,同时也起到延伸空间的视觉效果。 #廓形沙发 #浅蓝色墙漆 #客厅石膏线
厨房采用L型布局,满足空间的实用性。浅灰吊柜配黑色地柜,中间用白色石英石台面,整体简洁又大气。

橱柜材质:橱柜柜门材料选择亚克力材料,光洁度好,不留污渍,更方便打理。

厨房地面,使用小花砖,增添了空间的活跃气氛,在有趣的环境下,做饭的心情也会因此变得更好。 #橱柜 #石英石台面
卧室一面墙做满衣柜,上层放不常用的过季被褥,下层做挂衣区,让每一件衣服都能舒展的存放,用的时候才更方便,拿出来就穿,能节约不少打理衣服的时间。 #衣柜

卧室配色:卧室配色以浅色系打底,柔和的奶黄墙面,洁净的白色顶面和白色衣柜,中性的灰色地砖,共同营造出休息空间需要的整洁感。

卧室软装:软装上,用个性化的床品、贵气隆重的墨绿窗帘,增添温馨静谧的休息氛围。

#墨绿窗帘 #奶油风
卫生间布局比较常规,因外墙开窗较小,特别设计了白色墙砖和地砖,以增加室内亮度。地面用黑白线条小花砖,精致又文雅,带给家人更好的洗漱体验。

浴室柜:浴室柜用吊柜,下方地面更方便做清洁;浴室柜采用台下盆,岩板台面光洁平整更好打理。浴室柜还带一个大抽屉,就近收纳卫生间常用护理用品,还很方便拿取。

#台下盆 #岩板浴室柜 #小白砖

卫生间门:卫生间使用长虹玻璃门,透光不投影,细边门框带给空间更多的精致感。
设计师问答: 问:装修过程花了多长时间? 答:三个月 问:说说是什么给了你灵感,打造出现在这个作品的? 答:合理用好每个平米,是我们打造这个家的中心思想。比如客餐厅一体化,那么衔接部分的空间可以做柜体,利用好走道来增加收纳。包括拓展厨房,也是基于业主一家喜爱在家做饭的生活习惯,让空间最大限度服务于日常生活需要。 问:对平面布局做了哪些优化改动,为什么? 答:把厨房拓展到生活阳台,把卫生间做成三分离,洗手台移到卫生间外,这些措施都是为了更符合家人的生活习惯,让空间得到更高效的利用。 问:回头再看这套房子,设计当中有什么遗憾的地方吗? 答:从舒适度看,主卧如果再拓展一下,多个独立式衣帽间应该更好。但是客户需要四间独立房间,这就无法再拓展卧室了。布局上,有小小遗憾。
