说在前面: 这是二手房住宅改造,屋主凯蒂瞒着家里偷偷买小房子,结束了漂泊的生活,拥有属于自己的温柔港湾。 作为艺术工作者的凯蒂不想要传统的生活方式,追求自在和别具一格的设计。最主要的是能够住的舒适。还有能给她心爱的猫咪(双囍)提供温暖的环境。 常住人口:1人1猫; 设计师:卢文凯; 后期摄影:Ray 部分主材:丹菲尔定制,大自然地板,小树家园瓷砖,美橙暖通。 基本需求: 1.不定制鞋柜,买成品鞋柜; 2.有多的艺术品展示区; 3.收纳空间要多; 4.需要独立书桌区域; 5.考虑猫咪用品摆放区; 6.卫生间干湿分离; 7.橱柜尺寸要加长,冰箱尽量放到外面。

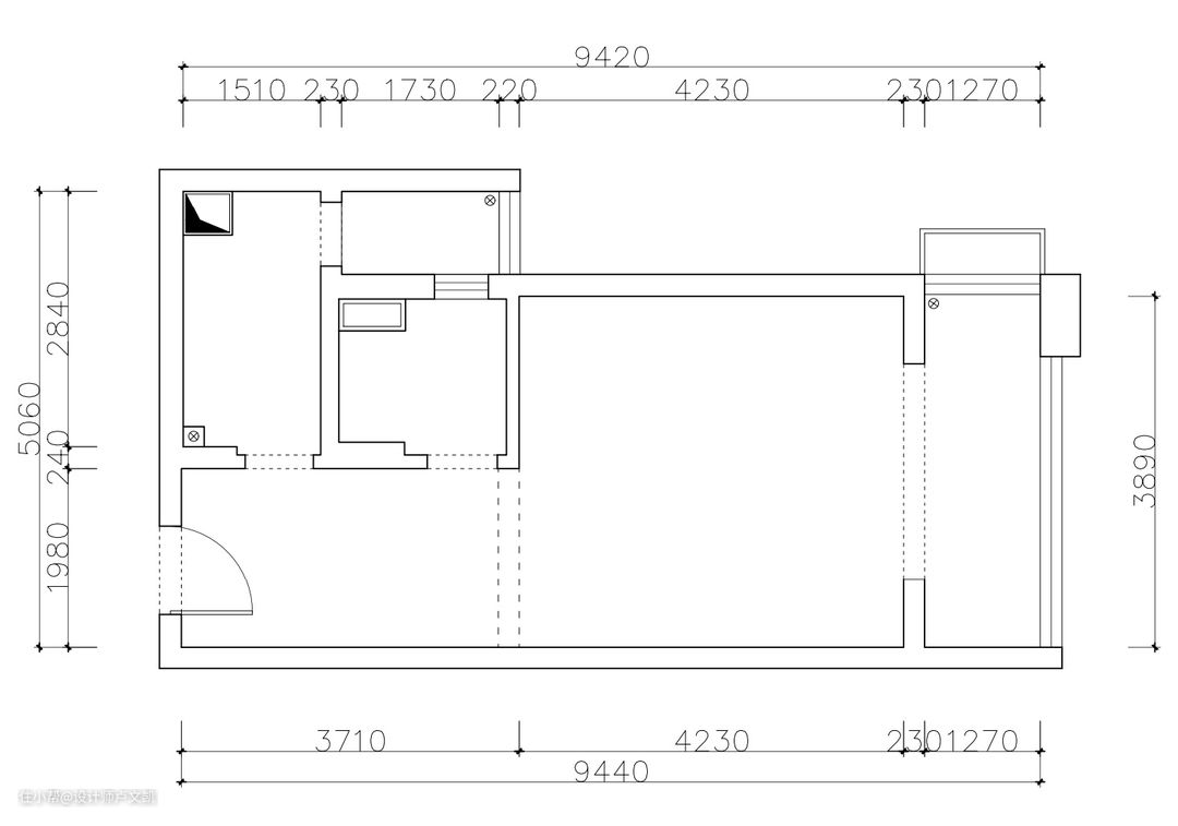
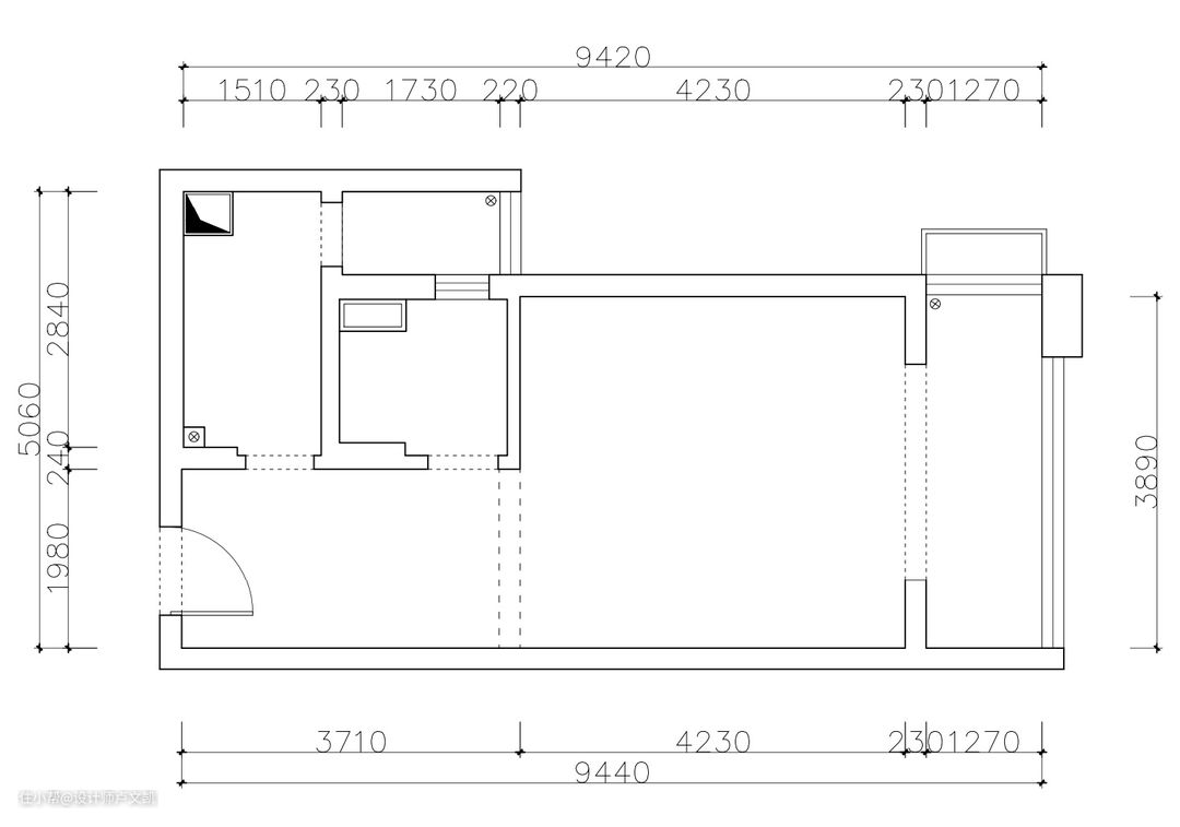
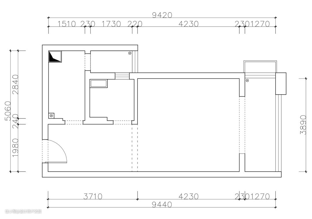
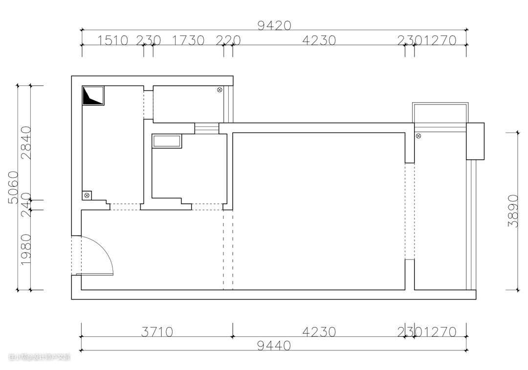
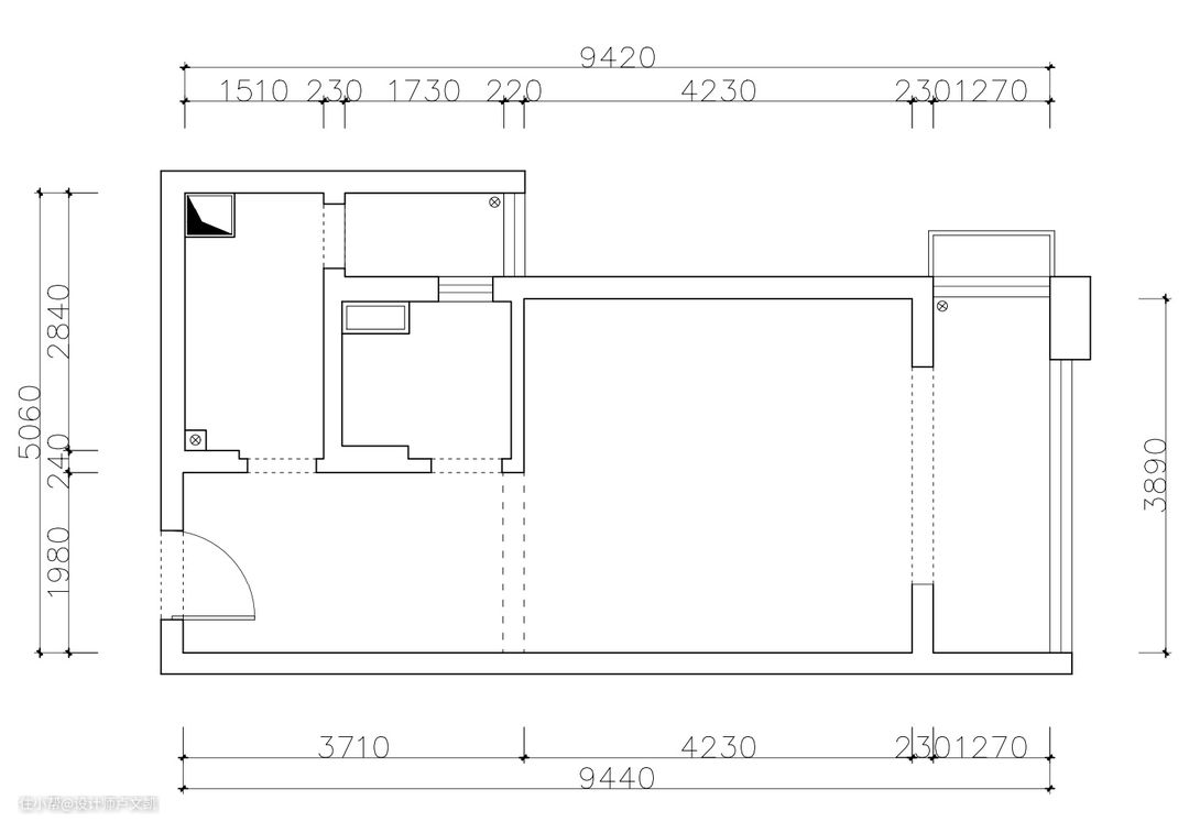
这是原始图,算是比较传统的一居室户型

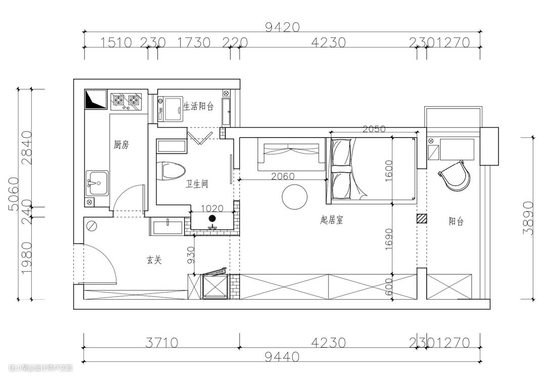
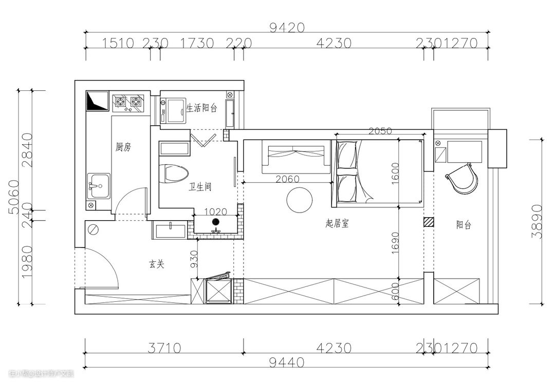
这是改造后的平面图,进门右手边整面墙都属于收纳区,玄关有个L型的收藏品展示区,从冰箱开始向内延伸整体都是储物柜。厨房,卫生间,生活阳台的彼此关系也进行了微调。厨房做成了L型橱柜,将原始布局的收纳功能提升30%
以下为装修前后对比图

装修前房东居住东西任意摆放,室内杂乱无章

装修后收纳整整齐齐,排列有序,格局区分明显。

装修前厨房只有一字型橱柜,空间浪费。

装修后整体白净整洁,收纳能力max
玄关为展示区,各种收藏品,照片,专辑都能放到这里。 进门右手边放了个落地衣架,回家就能把包包和帽子顺手挂上。 整体空间的灯光比较柔和,选择可调节的轨道灯,随时变幻照射角度。

入户大门也从之前的猪肝色门换成了白色的防盗门,与整体显得更为协调。 圆弧的假门洞,也为宜家的斜入式鞋柜预留好位置。

造型墙是木工现场制作,特意选了艺术漆进行涂刷,使得跟起居室的材质做区分,也更有艺术氛围。

左手边是厨房外洗手台,尺寸特殊定制,盆径尺寸够大,一点也不会显得拥挤。 右手边是展示架,放上了杰伦的各种专辑和手办~一回家就能看到,舒坦。 白色的冰箱正好放在我们预留的位置,不会那么突兀。

原先在入户位置能够把整个房子一览无余,现在改造后变得若隐若现。有种引人入胜的感觉。
起居室将原有的空间一分为四,一是右手边的收纳区,二是放床的睡眠区,三是左手边的沙发区,四是中间留出来作为通道区。

改变传统的床摆放方式,床体木工现场制作,并且简单做了个半墙进行分隔,让回家不像住酒店。 也能让清晨的第一缕阳光照到床头。

整体起居室只有柜子区域做了风管机和吊顶,其他区域不做吊顶,让空间显得更高。云朵的灯具像是漂浮在空中一样自由软绵。 右侧的柜子整洁大气,选择哑光门板,当光线照到柜门时反光也更加柔和。

沙发选择当今流行的毛毛虫,可以坐两个人,旁边放了个独一无二的小托盘,纯手工打造的孤品。当时在逛北富森的焦糖盒子一眼看中爱不释手,果断拿下。 沙发上铺的毯子有点预示着家里的猫咪伙伴。

电视柜区域的手办摆得满满当当。
阳台也是采用两侧分布的摆放方式,左侧为办公区,放了书桌,右侧为杂物柜和猫咪用品区。

起居室和阳台的链接位置,采用了双弧形门洞的设计,显得不会那么单调。

书桌区域即可办公,又可作为梳妆台使用,一举两得,并且对室内的采光一点都不受阻。

猫咪用品区尺寸也是精心设计,将电动猫砂盆,吃饭区,物品区进行分格。简而不简单。
厨房是必不可少的区域,收纳区域井井有条规划。

简洁白净,屋主特意选择了白色的洗菜盆和龙头,还有白色的油烟机,为了看起来不会那么复杂。
改造后的卫生间跟厨房一样沿用白色系瓷砖,浴室柜挪出去后空间感提升40% #卫生间


清晨拂晓,都能过得何等悠闲。

从弧形门洞望去,像是透过一扇窗去看望这个家。

沙发不放满,特意留出来摆放这个喜爱的小边几,还有屋主的相片。

床头的小吊灯选择这种球形的,有点像个小太阳挂在枕边。

茶歇分享

这就是如同家人般的猫咪,有它陪伴不再孤单。

这就是沙发批布上预示的猫咪啦~也是这房子的主要住客~

在阳光明媚的下午,你在晒太阳,它躲在窗帘后陪你打闹
部分主材及渠道 整体橱柜:丹菲尔橱柜(北富森店) 整体定制家居:丹菲尔定制(北富森店) 强化地板:大自然地板(北富森店) 风管机:美橙暖通(红星美凯龙店) 瓷砖:小树家园(淘宝网红店) 经验问答: 问:装修这套房子最大的难点是什么? 答:房屋尺寸紧凑,结构改造时尺寸需要算得很精确,并且保证主材商家能够完美衔接。当时沟通了很多次,也跟屋主进行了多次研究后才呈现的。 问:最满意的设计亮点是什么? 答:玄关的整体设计,既保证了美观,又实用,并且把冰箱和浴室柜完美融合。 问:说说是什么给了你灵感,打造出现在这个作品的? 答:屋主对美好生活的追求和向往,屋主的想法也挺天马行空的,我们一起商讨并且在很多地方搜集灵感融入进去。
本案由设计师卢文凯全程指导,硬装+软装设计
