这是为了孩子上学买的老破小学区房,装修前一家人都不太想住,一家人商量后决定重新装修,毕竟孩子在这里要上学好几年,不能错过孩子的童年。 小姐姐是在网络知道我们,经过交流后,觉得我们的设计比较满足他们的需要,于是和我们确定了合作。老小区设计改造,注意事项还是比较多的,常遇到的是空间分布不合理,还有采光的问题等,都需要考虑全面。 对于风格小姐姐也有自己的想法,不追求特定的风格,家里的色彩、用材等元素遵从家人的喜欢,让一家三口人住的自由舒适。 经过改造后,三口之家不需要3间卧室,于是我们把原来比较拥挤的3个卧室改造成2间卧室,与之多出了多功能客厅书房,还有一个储物式衣帽间,改造后一家人都更喜欢住在这个家,而且小盆友也喜欢邀请同学们来家里做客啦。

老房子没有明确的客厅,餐厅等公共活动区比较小,之前的一个1平方多的储物间也比较鸡肋。这个家主要是父母和一个男娃居住,所以不需要原来的3间卧室,整体改造方向以舒适度为主。

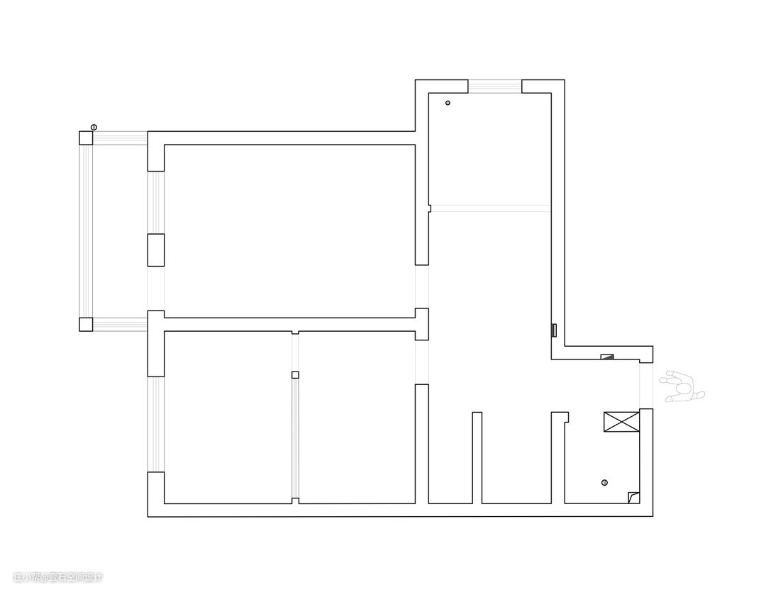
户型改造 1)进门原先的卫生间改造成入户玄关柜,增加进门的储物空间,更符合现在的生活习惯; 2)将原来的储物间并入现在的卫生间,改造成干湿分离,充分利用空间,卫生间内部设置马桶区域和淋浴房; 3)原来的2间次卧改造成衣帽间和孩子的房间,增多家里储物空间,孩子的房间集休息,学习,储物一体; 4)原来的主卧划分出一间多功能房间,可以是客厅也可以是书房,丰富主卧功能区,满足一家人休息看电视的多种需求; 5)主卧阳台变出一个阅读角落,也保留了洗衣功能,以隔而不断的方式并入主卧,让整体空间更加通透。

主卧改造前VS改造后

阳台改造前VS改造后

儿童房改造前VS改造后

从玄关看向室内,一直延伸到儿童房的长虹玻璃门,从视觉上拉伸空间,显大空间。玄关的挂钩、换鞋凳也给生活带来了更多便利。

入户玄关柜+全身镜组合,墙面挂饰后面是藏电箱,玄关鞋柜方便进出家门换鞋子,中间镂空的地方随手放置物品,也可以摆放一些小饰品点缀,抽屉部分预留放置小物件,方便拿取。

改造后的多功能客厅书房,是家里使用频率很高的空间,这张书桌可以缩成一个小茶几,需要办公的时候,它就是一张办公桌。这个电视也是可以旋转的,可以坐在沙发看电视,也可以躺在床铺看电视,很人性化的设计。

家里的客厅也可以作为书房,靠墙一组书柜,摆放大人小孩的书籍,也可以摆放一些小饰品和绿植点缀,满满的温度。

橙色皮质沙发,木色书桌,把这个空间营造的很温馨。

餐厅靠墙放置一张餐桌,方便小朋友早晨在这里用餐,简单布局不占用太多的空间。

厨房U型橱柜,满足厨房的储物的需求。

从主卧看向书房角度。

卧室与书房用移门划分,两个空间各自独立,也可以合为一体。

主卧床尾摆放一张成品斗柜,补充主卧收纳,黄色的床品,大绿植,充满生活气息。

四联动移门。

步入儿童房之前的走道两边,一边是衣帽间,一边是换衣镜。

儿童房内部布局,一张儿童房,书桌衣柜一体化,满足小朋友生活学习。

悬挂式小书桌,小朋友在这里学习很舒适,这里采光也不错。

小空间我们把家里尽可能打开,两面弧型门洞各自通往小朋友房间和主卧室房间,干区设在外面,长虹玻璃门里面是马桶区和淋浴区。

卫生间内部除了马桶区和淋浴房,还设计了壁龛储物空间,挂钩和电热衣架让小空间更舒适。

阳台的阅读角,小书桌,一张舒适的椅子,在这里可以阅读办公。

洗衣机烘干机放置阳台一角,平时衣服烘干以后就可以直接扔在床上整理好叠放起来,不占用其他位置。
