房屋位置:北京 小区名称:通州区 加州小镇 房屋信息:一室0厅一厨一卫 房屋概况:精装 房屋风格:复古风 建筑面积:42㎡ 业主需求: 业主是一对新婚小夫妻,在环球影城投资了一套42㎡的小公寓以备游玩时做临时居所,希望温馨浪漫!
设计前:

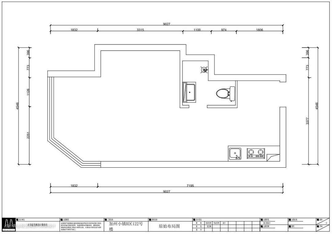
1. 屋内四白落地,窗户有异形拐角,无客厅区域。 2. 没有冰箱、洗衣机、电视等日常家电。 3. 没有衣柜进行储物。 4. 电表箱明显,影响美观。 设计后:

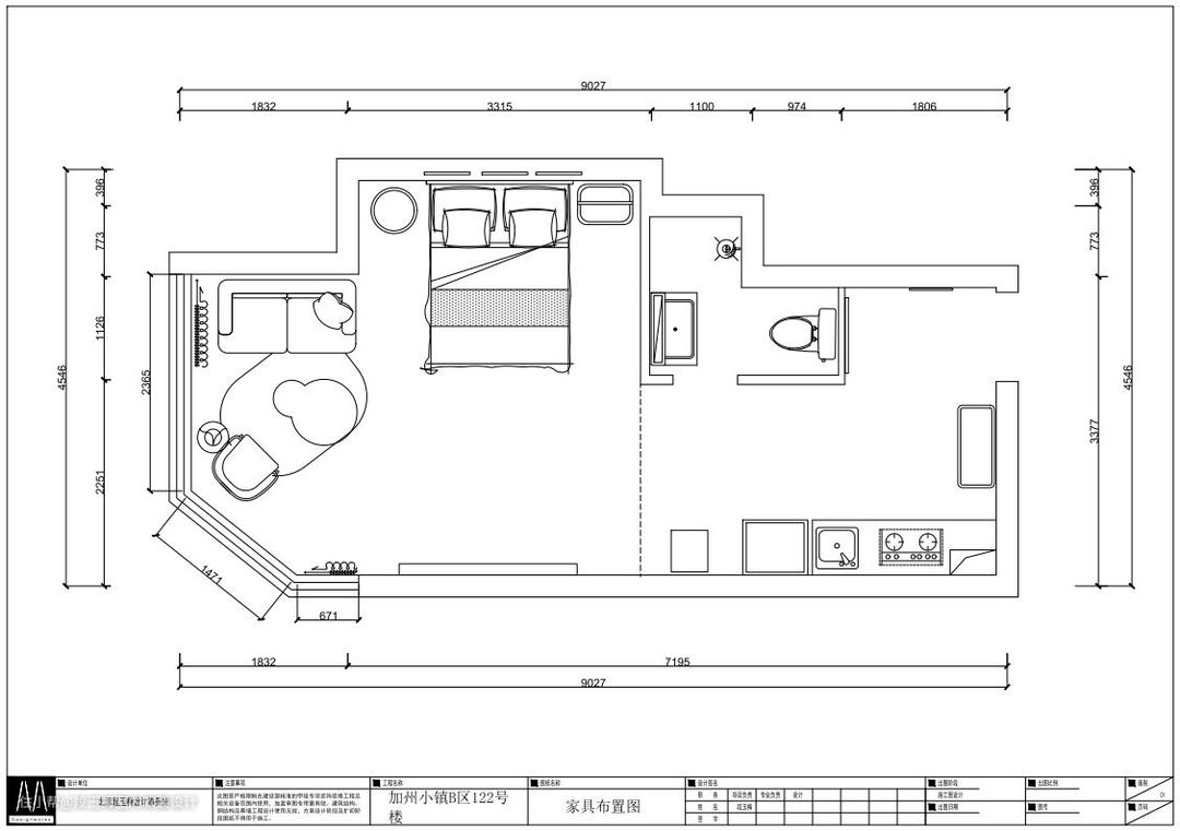
1. 利用阳台区良好的落地窗采光,规划休闲客厅区。 2. 增加洗衣机柜和白色家电。 3. 利用床头正对的纯白墙体,作为投影幕布墙。 4. 利用3315mm的床头宽度,设计移动式衣架满足临时游玩时衣物的存放。 5. 电表箱用艺术装饰画进行遮盖。
入户门配备脏橘色轻奢换鞋凳,表面科技布材质柔软舒适。挂画用同色做背景,色调统一。黑白色千鸟格靠包给温暖的空间加点清凉的元素。



简约钟表画即作为装饰品,又完成了电表箱的遮挡
利用阳台靠窗先天的采光条件设计了休闲客厅区。一个橙色双人沙发床、一个羊羔绒单椅,再配上云朵茶几和地毯,满足两人坐卧的慵懒生活。



一支龙血树盆栽给空间带来绿色元素,让空间充满生气。




脏橘色棉麻复古窗帘内侧搭配鱼骨纱纱帘,古典又时尚。



厨房采用一字型橱柜,为了避免洗衣机的突兀打乱整洁有序的空间,在厨房边缘安置了上翻盖洗衣机柜,滚筒洗衣机隐藏其中。



床是业主自己原有的,设计师按照空间黑白红棕的色调给搭配了挂画和床品。



傍晚时节,即使光线逐渐变暗,但是屋内红白色系的搭配反而会让空间美得像开了滤镜。





夜幕降临,躺在床上观赏超大的投影屛,二人世界的浪漫想想都很甜。

仿水晶台灯,特别出彩好看。

古铜色挂衣架,满足临时居住的衣物存放需求。
卫生间以白色为主,干净整洁。



全套产品清单,快来抄作业吧。

我是MDesign独立设计师。 1. 🚩相对于装饰公司不同,我们不仅有设计➕施工➕采购➕摆场的一条龙服务,还可以根据您的需求采用某些环节,例如仅设计、陪采服务或者摆场服务。 2. 🚩和装饰公司相比,我们更注重设计。注重您的个性化需求,希望装修可以按照您期待的生活方式和习惯进行设计,我们是具备专业和审美的设计师,而不是沦落成卖柜子的销售。 3.🚩和其他设计师相比,我们采用软硬双主案设计。设计师不仅有传统硬装的专业能力,更具有13年丰富软装设计经验。同时具备软硬装设计能力,能在设计过程中考虑更多的细节和未来使用的场景。这样能落地的设计才能称之为设计。 “给平淡的生活加点颜色,让设计回归生活” ——我是独立设计师段玉梅。

如果在有任何装修的问题都可以在评论区告诉我。
