📜本案是一套位于浦东区的老房改造案例,屋主边老师和爱人都已退休,孩子在国外工作,回家次数以年为单位。因为退休生活太过清闲,鼓捣自己家老房子的计划也就提上日程了。 原始户型是比较典型的上海老小区:六楼+阁楼的复式类型、因为常住人口只有2个人,因此每个功能区的面积都很充足,可供改造的空间也大。 ⏳屋主夫妻年轻的时候在国外生活了很多年,生活居住习惯都比较偏西方化。因此要求重新布局后的空间以开放式格局为主。注重空间的舒适性&开阔感,以现代原木风为基调,揉杂一些美式极简的元素在里面。 ⏳改造主题为:二人居&亲子设计 房屋改造整体设计风格为:现代极简原木。空间功能区布局为客厅X2/餐厅/厨房/卫生间X2/卧室X2


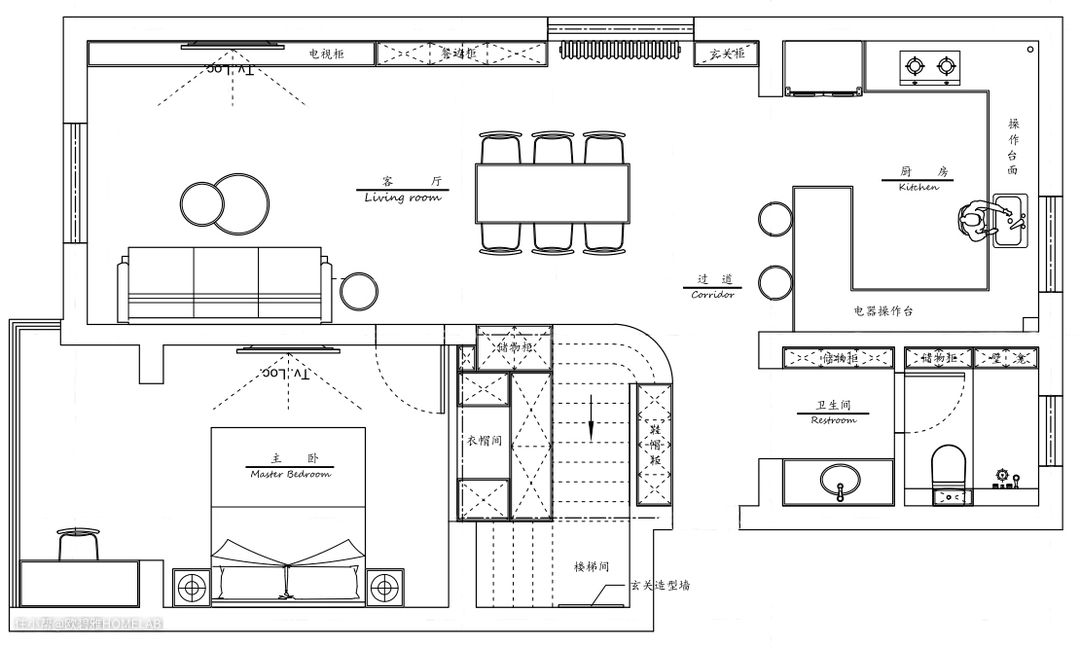
-V1-拆改前户型图&拆改后户型图 #户型图#布局动线


-V2-拆改前户型图&拆改后户型图 🪵Before|改造前布局问题:原户型入户直对楼梯,客餐厅空间形成独立且达不到连贯互通,空间感差。卧室空间比较浪费。公共过道狭小。整体空间光线没有充分利用 🪶业主居住需求:二人居&亲子设计 🪶业主风格需求:现代原木&极简美式 - - 🪵After|改造后布局调整 ➊楼梯改造;原来的红木楼梯踏步搭配不锈钢护栏,将二楼的阳光都遮挡住。拆除后将楼梯改成原木色踏步,搭配全透玻璃护栏,将光线引入楼梯处。楼梯间加设线性灯条+灯笼吊灯、每层踏步都加设隐形灯带,完全解决了采光不好的问题。 ➋客餐厅整体的空间交互;采用LDK客餐厨一体化设计,客厅和餐厅分别采用磁吸轨道灯和一字型吊灯。弱化异形灯具带来的视觉逼仄感。 ➌客厅空间的光感与视觉;规划动线格局,突出动区光与美,整体风格借用白色。以其包容性衬托起木元素的素雅之美,形成对比与分割。构建出展示、收纳、休闲的自然随性家居生活。 #户型图#布局动线




-【欧碧雅 HOME LAB】HALLWAY ◐入户玄关设计成一体式悬浮式玄关柜,释放玄关区域逼仄感,顶面利用灯带照明简单大气。原木色柜体+乳白色门板增强舒适性,中部镂空设计可以置放小物件儿,进出门拿取方便。 ▲业主夫妻日常所需收纳这个玄关柜可以完全负担掉,玄关连接楼梯增高做了地台踏步。用白色做视觉层次拉升,玄关柜的悬浮感能出来同时也保持空间用色的完整性。 #玄关#原木#悬浮式玄关#亲子设计#二人居#现代#极简


◐原木色的置物台随意插放的绿植,桌子上随意摆放的酸枝木盘香炉升起缕缕轻烟相得益彰。勾勒出一副安然、娴静的生活氛围感; #现代#极简#二人居


-【欧碧雅 HOME LAB】DINING ROOM 客餐厅整体的空间交互;采用LDK客餐厨一体化设计,客厅和餐厅分别采用明装磁吸轨道灯和一字型吊灯。弱化异形灯具带来的视觉逼仄感。 📝图示尺寸标注⬆️: ◐餐厅&电视背景墙总(不含厨房)长5.5m*高2.8m ◐餐厅&餐桌长1.2m*高0.85m*宽0.6m 弧形吊顶拉升客厅视觉比例,白色空间色彩基调搭配原木色舒适感拉满。为了区分功能区在客厅和餐厅过渡处的吊顶特意做了原木色饰面处理设计。 餐厅幽静氛围感营造呼应着半山一盏茶,静心观万物的意境,传递自然脉络。与艺术相融,与自然栖居。 #餐厅#餐桌#LDK设计#亲子设计#二人居#现代#极简#适老设计


-【欧碧雅 HOME LAB】DINING ROOM ◐客厅空间光感与视觉;规划动线格局,突出动区光与美,整体风格借用白色。以其包容性衬托起木元素的素雅之美,形成对比与分割。构建出展示、收纳、休闲的自然随性家居生活。 📝图示尺寸标注⬆️: ◐沙发背景墙总长5.5m*高2.8m ◐窗户墙面2.8m*高*宽3.2m ◐电视柜长3m*宽0.4m*高0.6m ◐茶几1.2m*长*宽0.6m*高0*4m ◐沙发2.6m*长*宽0.9m #客厅#沙发背景墙#LDK设计#亲子设计#二人居#现代#极简#适老设计

两条明装磁吸轨道灯为客厅空间的主光源,LDK一体化客餐厨设计让家居动线变得流畅自然。客厅+餐厅两道外开的窗户一个朝南一个朝北奠定了区域内基础好采光。 #客厅#沙发背景墙#LDK设计#亲子设计#二人居#现代#极简#适老设计

原木风搭配棉麻质感的沙发,深灰色沙发搭配浅灰色抱枕,客厅墙地中间色平衡中和得很好。胡桃木色茶几搭配米白咖色相间的色彩搭配,极简美式感满满。 #客厅#沙发背景墙#LDK设计#亲子设计#二人居#现代#极简#适老设计

为了保持空间的完整性和通透感,客厅电视柜也是悬浮式设计。客厅跟餐厅区域由这道白色双饰面板衔接,既可以满足空间收纳,又做了空间区分。 #客厅#沙发背景墙#LDK设计#亲子设计#二人居#现代#极简#适老设计

-客厅Before/After 对比图

-【欧碧雅 HOME LAB】KITCHEN 厨房整体划分了三个区域:烹饪区&操作台&吧台区,最大化提升厨房可操作空间,确保2人或多人在区域空间内能同时进行互动交流。厨房采用防水石膏板吊顶,回字形灯带+筒灯的光源布局,线条简洁。 📝图示尺寸标注⬆️: ◐台下洗碗机墙面总长3.2m ◐嵌入式烤箱墙面总长3.9m ◐橱柜长2.6m/上柜高0.9m/操作台高0.8m/下柜高0.9m ◐双开门冰箱长1.1m*高1.8m ◐吧台1.2m长*1.1m高 #厨房#橱柜#LDK设计#亲子设计#二人居#现代#极简#适老设计



嵌入式蒸烤箱设计利用“隐形”空间,节省外部活动空间面积。双开门冰箱完全可以负担家庭日常使用,后疫情时代囤货屯粮毫无压力~业主夫妻平时偶尔在吧台这块儿小酌,增加生活情趣。 #厨房#橱柜#LDK设计#亲子设计#二人居#现代#极简#适老设计

-厨房Before/After 对比图

#书房#办公桌#卧室#亲子设计#二人居#现代#极简#适老设计

◐原来书房的空间改造成客卧+办公区,大面积的外开窗带来良好的采光,阳光倾洒而进营造出舒适氛围感;


-【欧碧雅 HOME LAB】Study 次卧室简单的划分了3个区域:休息区/置物区/办公区,虽然空间充裕,但没有做任何多余的布局规划。确保舒适性和随意感,空间整体配色也是以纯白色为基调搭配原木色的床体。 避免空间单调乏味床品选择了花卉样式的,用橙色的靠垫做色彩点缀,舒适感之余空间也略显活泼跟明亮。卧室的中央空调进(出)风口在这里也起到装饰空间的作用。 #书房#办公桌#卧室#亲子设计#二人居#现代#极简#适老设计


-【欧碧雅 HOME LAB】ATHROOM ▲二楼(次卫)干湿两分离,因为二楼靠近外阳台晾晒区域,所以这里设置了洗衣区生活动线明确。外开的平移窗也保证了卫生间良好的通风和采光,这样即使空间比较有限的情况下也使之能保持流畅整洁。 #卫生间#干湿分离#亲子设计#二人居#现代#极简#适老设计

二楼卫生间往外就是单独的阳台区域,供业主日常晾晒所需,空间充裕。业主计划在这里做烧烤区用来接待朋友来家里聚会,也是非常好的家庭互动区。 #卫生间#阳台#亲子设计#二人居#现代#极简#适老设计


▲一楼(主卫)干湿三分离,洗手台外移,干湿分离三分离卫生间错峰使用家居生活动线更高效 |我们在设计时采用干湿分离,在淋浴间、洗漱区、马桶间功能分离后不影响其他人的急用。互相独立存在,整体设计大方简洁、光线明亮通透。 #卫生间#干湿分离#亲子设计#二人居#现代#极简#适老设计

-【欧碧雅 HOME LAB】Stairs 楼梯改造;原来的红木楼梯踏步搭配不锈钢护栏,将二楼的阳光都遮挡住。拆除后将楼梯改成原木色踏步,搭配全透玻璃护栏,将光线引入楼梯处。楼梯间加设线性灯条+灯笼吊灯、每层踏步都加设隐形灯带,完全解决了采光不好的问题。 #楼梯#灯光布局#亲子设计#二人居#现代#极简#适老设计 ◐拆改后的楼梯利用灯光+用材,释放原本逼仄感,增强空间的舒适性和通透感;#现代#极简#二人居


#楼梯#灯光布局#亲子设计#二人居#现代#极简#适老设计



挑高的楼梯设计做了一整面的木饰面背景墙,为了突出设计感一边特地做了木格栅处理。利用整条暗藏灯带做光影视觉冲击,让楼梯空间瞬时有了恢弘大气之感。 透明的玻璃护栏拯救原本采光不好的空间,也增强了空间的时尚度,简介通透大气舒适感拉满。楼梯重新拆改之后也为一层的餐厅区域形成了一处端景,拾阶而上每一个细节都是对随性生活的用心。 #楼梯#灯光布局#亲子设计#二人居#现代#极简#适老设计



◐二楼客厅一隅,浓浓现代美式极简风,透过窗隙倾洒舞动的光线; #现代#极简#二人居


-【欧碧雅 HOME LAB】DINING ROOM(二楼) ◐二楼客厅是女业主最喜欢的一方天地,区别于一楼客厅,二楼客厅美式极简的空间氛围感会更浓烈。从陈设布局到色彩搭配、家具配色,每一个细节都处理得很精致巧妙。 📝图示尺寸标注⬆️: ◐沙发背景墙长4.3m*高2.6m*宽3.2m-(不含承重墙柱外的阳台区域) ◐沙发尺寸:长1.8m*高0.8m*宽0.9m #客厅#电视背景墙#亲子设计#二人居#现代#极简#适老设计

#客厅#电视背景墙#亲子设计#二人居#现代#极简#适老设计


电视背景墙这里利用异形顶面做了一组异形组合式定制柜,用来储放二楼的日常生活所需。左边的展示柜区域则用来展示业主的素描作品和全家福合影,封闭式柜体部分则用来收藏一些杂物来确保空间的整洁。 📝图示尺寸标注⬆️: ◐电视柜(储物区)长2.8m*高2.8m ◐电视柜(展示柜格区)宽0.6m/单柜格尺寸:1格-高0.6m,2-5格高0.5m ◐电视柜(电视区)高1.2m*宽2m #客厅#电视背景墙#亲子设计#二人居#现代#极简#适老设计#电视柜


同样以白色为基调的空间色彩布划,搭配原木色和灰白色的单人沙发,一盏美式风极强的落地灯缱绻美好。二楼采用无主灯设计,仅用筒灯做主光源。作为主人家的私人客厅领域,二楼的空间则更注重氛围感和舒适度。 #客厅#电视背景墙#亲子设计#二人居#现代#极简#适老设计

二楼的客厅过道转角处还设置了一处水吧,男业主没事儿的时候喜欢泡泡咖啡喝喝茶,设计初始就预留了这一处供男业主使用。借过道凹槽处,不占用其他的位置,空间每一寸都利用到极致。 #客厅#电视背景墙#亲子设计#二人居#现代#极简#适老设计


#客厅#电视背景墙#亲子设计#二人居#现代#极简#适老设计

-二楼客厅Before/After 对比图



-【欧碧雅 HOME LAB】BALCONY 主卧是屋主夫妇日常休息的空间,追求细致入微的舒适体验。在设计取色上结合业主的喜好,也延续了空间整体的用色习惯,黑色床体+灰蓝色灰床品奠定空间质感格调。 二楼利用斜顶促成自然有设计感的空间,无主灯设计保持极简空间氛围感,利用原本的异形外开窗做空间自然的取光。床头极简黑色圆形吊灯,光晕随意打在背景墙,舒适感满满。 #主卧#床#异形空间#亲子设计#二人居#现代#极简#适老设计


#主卧#床#异形空间#亲子设计#二人居#现代#极简#适老设计


卧室往里走就是个一字型的衣帽间,用来储放业主夫妻日常储物所需。根据储物的需求不同设计成了柜格和封闭式的柜体,划分为:过季衣物区/鞋区/包区,将空间每一次空间利用到极致。 📝图示尺寸标注⬆️: ◐衣帽间长3.1m*高2.8m*宽1m ◐衣帽间(柜格区)高2.8m*宽2.2m #主卧#床#异形空间#亲子设计#二人居#现代#极简#适老设计


#主卧#床#异形空间#亲子设计#二人居#现代#极简#适老设计

-卧室Before/After 对比图
-问:装修过程花了多长时间? 4个月 -问:说说是什么给了你灵感,打造出现在这个作品的? 灵感完全来源于屋主脱俗的边老师本人,与其说是我设计的作品我觉得更像是她一步步引导我,做出她想要的房子,是完全贴合她心境和生活方式的舒适感理想居 -问:你对这套作品最满意的地方在哪里,为什么? 都很满意,从整体的规划布局到色彩搭配和家居配饰选择上我认为都可以达到满分的。 -问:对平面布局做了哪些优化改动,为什么? -楼梯改造;原来的红木楼梯踏步搭配不锈钢护栏,将二楼的阳光都遮挡住。拆除后将楼梯改成原木色踏步,搭配全透玻璃护栏,将光线引入楼梯处。楼梯间加设线性灯条+灯笼吊灯、每层踏步都加设隐形灯带,完全解决了采光不好的问题。 -客厅空间的光感与视觉;规划动线格局,突出动区光与美,整体风格借用白色。以其包容性衬托起木元素的素雅之美,形成对比与分割。构建出展示、收纳、休闲的自然随性家居生活。 -问:在整个装修设计期间遇到最大的挑战是什么? 调整就是每个细节的调整吧,对一些定制家具尺寸的把控上 -问:为了满足客户的个性化需求,你在设计过程中做了哪些事情? 客餐厅整体的空间交互;采用LDK客餐厨一体化设计,客厅和餐厅分别采用磁吸轨道灯和一字型吊灯。弱化异形灯具带来的视觉逼仄感。
