这是一间使用面积仅57㎡的极简主义风格的LOFT公寓。 我们最大化程度利用光照,让阳光随时充盈整个屋子,同时将“可变空间”的概念融入其中,贴合Z世代年轻业主的生活需求。场景是根据Z世代青年的生活节奏任意切换出不同的生活场景,让生活的仪式感满满,也让房子更懂你。

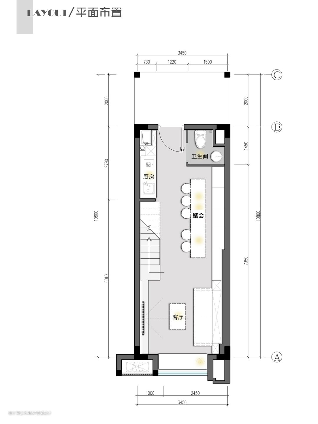
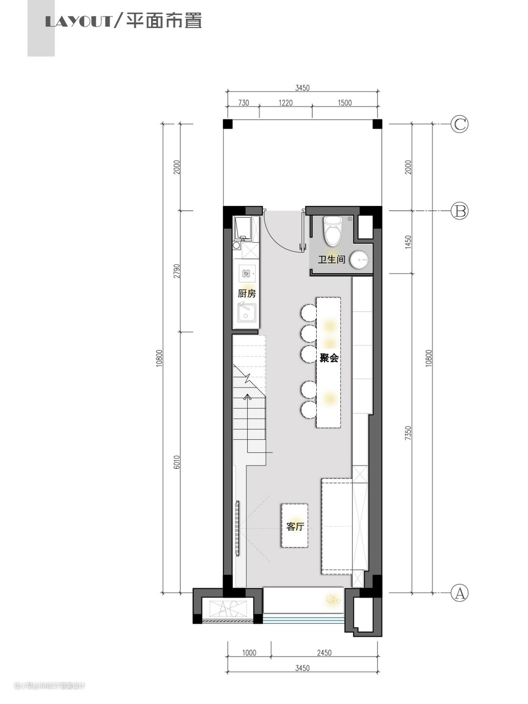
住宅设计为两个结构,由层高4.5米一层客餐厅和上层的开放式走道相互连接。

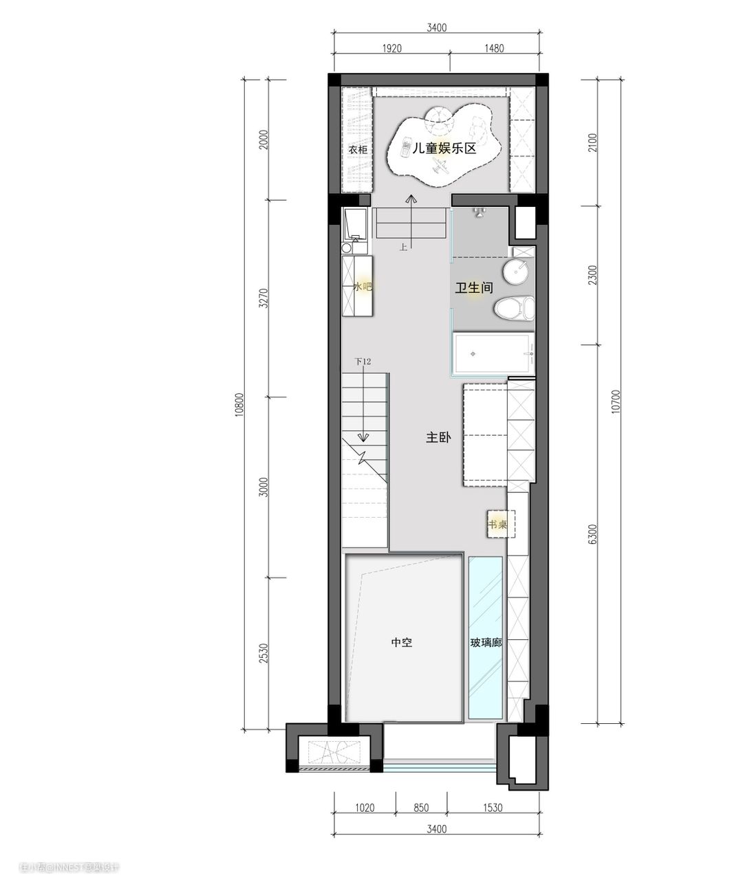
一层客厅属生活空间,主卧在二层。


我们解决实际的生活需求,也能够在特别的时刻里感受细节带来的喜悦。相信温暖,冷静和内在的美学能够展现持久的质感,有效的空间规划,以便最大限度地发挥功能,从而将居住者从相对单一的居住模式中解放出来,重新定义富有活力的生活模式。

房子虽小生活不能缩水,小尺度也有多样性。
内部空间的重新布局。

LOFT公寓内通过镶嵌在结构中的滑动门、橱柜、等结构,将室内空间重新划分。如墙壁尽可能多的做了隐蔽的收纳柜,在立面中消化了睡前醒后的基本生活需求,做到物各有位。面对入口处的空间,靠盥洗区的结构给餐厅区做视线遮挡,同时也将入口间隔开来,维持了住户的私密性。利用大量玻璃和镜面材质制造通透感和空间张力,使得空间连贯简明,同时增加节奏感。
赋予多种功能:

首先,我们在二层空间中运用了金属框架,金属框架中空的内部可通电线,直接将室内照明融合在整体框架中。二层在金属框架中的的洗浴间,运用了通电玻璃很好的在空间的通透感和私密性上做到一个平衡。中空的二层一条纵深的透明玻璃连廊贯穿起格局,增加了更多的收纳功能,在三维空间上最大程度地利用了空间,加强了人与人之间的粘合度。利用“可变空间”模式,将客厅变客卧,主卧变休息区等,为整个空间创造新的公共功能,重新激发区域活力。


整面背景墙有设置幕布和投影,晚上可以躺在床上看电影,比去影院还爽。


两层挑空让阳光更肆意,墙面设置镜面让空间视觉更加宽广明亮。



楼梯处也做了收纳处理..


餐厅整面的收纳空间,既美观又实用。

冰箱电器做了入柜处理,既整洁美观又实用安全。麻雀虽小但每个细节都面面俱到。

卧室秒变聚会时的游乐区,等客人走后又可以变回卧室

二层做了防潮处理


二层卧室增加收纳墙保证一家人的收纳需求,同时配套化妆台也做的非常精巧。

儿童娱乐区,在小两口还没有孩子前能当书房或者猫房,以后还以做亲子娱乐区。

建立核心筒

合理功能分布。厨房与浴室被安排在一侧,将管道集中在一起排布,使得下水、换气等问题能符合现代化生活的需求。

电致变色玻璃既能保证隐私又能改变空间通透感







搭配实景图效果更佳哦~
曾广辉、巢宇、谭婉玲

意,时间性,人主观时间的延展。 巢,空间性,空间的形态与体量。 我们生活在时间里,走在空间中,感知时间与空间的艺术之美。 我们思考着人们的生活方式、思考着我们与不同空间互动的场景,我们期望能营造既让人感到舒适,又觉得有惊喜的空间,在时间和空间中构建生活之美,为生活而设计是我们的使命。
