混搭简洁的设计理念,丰富大方的色彩基调。业主是一位非常前卫、干练的成功女性。内玄关的手绘背景是业主最喜欢水中芙蓉-荷花,也体现业主性格:真、善、美的寓意。所谓:出淤泥而不染。整体风格利用混搭的设计手法为主调 搭配现代轻奢元素为辅调,为客户量身打造出独特、明快、温馨的居家风格。

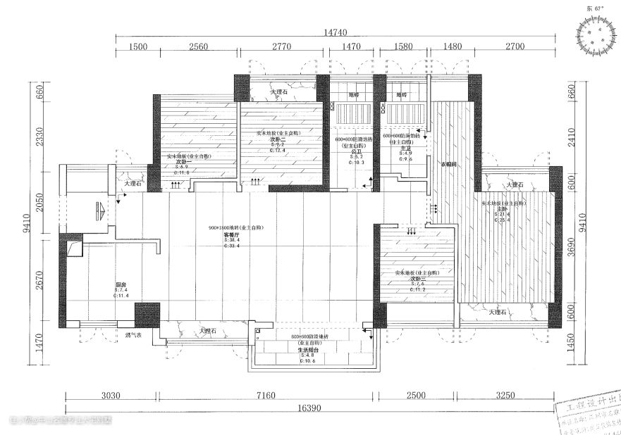
户型说明: 1.厨房光线很差; 2.承重墙居多,结构上改变不大; 3.主卧门对着大门。

空间优化: 了解业主的需求后,不需要保留全部房间,这样也很好的把主卧门避开大门,而且业主也自动提出主卧不需要卫生间,但考虑到家里只有一个卫生间,我们就把卫生间设计成干湿分区。主卧大衣帽间的设计业主非常喜欢。

玄关作为开启家的序言,有着起到前后缓冲的作用,好的入户玄关不仅能让客人眼前一亮,还能让业主将一天的疲惫丢在门外,因此,本案设计师摒弃原有玄关大而笨重的柜体,改用嵌入式的设计,柜体底下留空的15cm方便日常更换鞋物以外,也提高了整体空间的简洁性。

向室内内延伸,一副花朵壁画呈入眼中,内嵌于整洁岩板,LED灯带渲染,入户仪式感悄然建立。

如果用一个词形容客厅区的氛围,那便是细腻温柔了,没有过多花哨的色彩,一切的用色都是那么的恰到好处,自然的大理石通铺整个客餐厅,搭配艺术油漆搭配抽象装饰画,尽显业主的品味与高级感。

在现代风的设计中,留白较为常见的设计,极简的线条感与几何吊顶互相呼应,再加上氛围灯带来的舒适,没有枯燥乏味,反而更有意境。

客厅虽然不算大,但是足以诠释简约大方的美学文化,整体几何感很强,也有恰到好处的圆弧设计,客厅的做成无主灯+几何吊顶的设计,将“现代化”的概念贯穿始终。辅以窗外的美景,这也许就是岁月静好的样子了吧~

在家具的选择上,业主更偏向于质感的升华,贴近自然,简洁的线条中,又有图形作为装饰。整个空间围绕着温馨舒适的设计理念、干净利落的线条、柔和的氛围”为灵感,通过色彩与材质的运用,保证室内的温暖格调与生活气息。

值得一提的是,本案除了餐厅与客厅相链接以外,两边的都有通透的落地窗,让白天的一缕阳光都能常驻家中,把握清晨每一缕温暖。

为了让成员交互感更强,客餐厨没有设固定界线,将一张圆桌实现有效融合,无论是用餐还是工作,亦或是家庭的手作时间都能随意切换。设计精简,一应俱全。

餐厅在延续客厅总体的设计风格的同时,也保留了自己的元素,客餐厅一体设计,简约吊顶设计,暖灰调六人餐桌与客厅沙发形成呼应。嵌入式家电设计结合展台柜设计,既实用又耐看,让整体空间更加温馨。

至简的厨房让业主在此能拥有简洁干净的体验而不觉单调。同样践行素雅简明的设计理念,设计师将厨房打造成兼具品味与体验感的现代空间。

卧室延续全屋风格,以米白与咖色为主色调,没有做过多的装饰,少许的点缀足以能衬托卧室一隅的温馨,简单的修饰饰搭配打造自然纯粹的感官感受,营造出舒缓、雅致、自在的空间氛围,诉说家的温暖。

床头饰面背景板立休闲区正中,乳白色床上用品置于其间,二者以整洁干净的外形创造清婉的空间印象,隐藏式灯带散发暖黄色柔和光源,复原小资家庭简约凝练的起居环境。

空间整体朴素温婉,优雅而不浮夸,延伸出恰到好处的暖色调,时尚、简约高级,演绎出新的都市生活美学。

木质的地板、无主灯的设计、加上一旁的办公区,三者相得益彰,互相呼应,共同打造出宁静和谐的舒适休憩氛围,也构成了一幅纯粹而富有质感的空间环境。

每个小女孩的心中都藏着一个公主梦,每一个父母也都想让自己的孩子成为最可爱的公主,粉色作为一种衬托和点缀色的出现,粉色系的墙面营造出一种温柔甜蜜的氛围,充满甜美、温柔,很有温暖自然的感觉。

这可能是很多小女孩更偏爱粉色的原因吧。不会感觉到压迫,也不会有视觉上的冲击感,做到符合儿童的纯真性格和美好的童真幻想。室内还划分了收纳区、学习区、休息区。


卧室是一个让人放松的地方,有人喜欢热闹、有人喜欢倾向简约清爽的环境,主人家的男孩子就是喜欢简约清爽的室内空间,而白色的基调恰恰令人放松,个性化的家居、艺术品给空间添足亮点。

男孩房以简约风为主,床头的收纳柜设计吸引眼球,既保障了空间不会那么拥挤、也达到了美观、收纳功能齐全。让原本较小的空间不再显得沉闷。


次卧以简约的线条为主,比例的把控下穿梭于硬包背景和床头造型之间,形成某种迷人的美感。整个空间在白墙和窗边各种光线的衬托下,散发着暖阳幸福的氛围,自在又舒适。

次卧衣柜虚实结合,个性化设计既可以收纳日常衣物,也可以摆上一些心仪的摆件,既舒适又富有趣味。

简单的线条,让人心情愉悦;在色彩上,既有浅灰的色调的沉稳,又有蓝色的灵动,木质屏风作为衬托和缓冲,使得总体显示出既沉稳又有几分优雅的平淡之美。
