本屋常住90后年轻夫俩妻,男主人从事材料供应的工作,女主人在外企负责产品销售,两人性格温和、热情,结婚两年有着共同的兴趣爱好,喜欢拼乐高、旅游、吃美食....女主人是颜控,对生活品质有着很高的要求,她希望这个家有现代的极简,又不失高级艺术感,喜欢清爽、实用、舒适的家居环境,要求家里一定要有一个特别的小景。 设计师将小景设施在了餐厅处,拱形的洞槽用以绿植和装饰画点缀,整个家都散发着生机与活力。

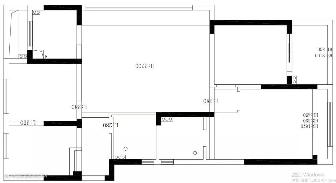
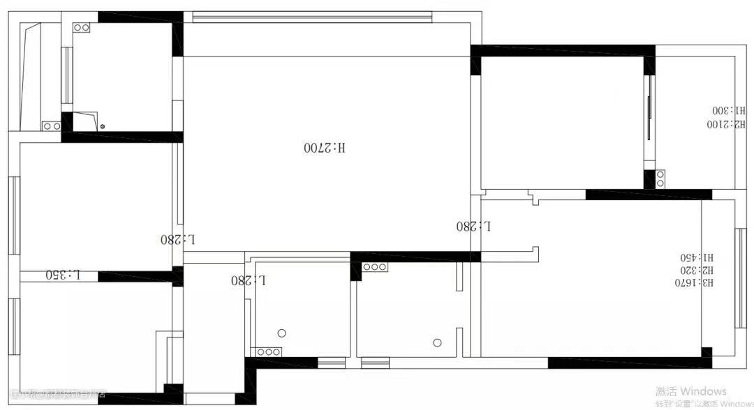
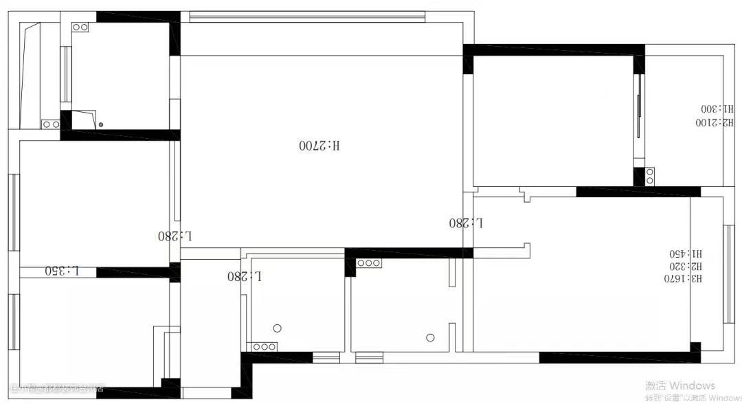
户型分析: 1.原户型客餐厅挤在一起,南北不通透; 2.厨房空间也比较局促,客厅空间采光很好; 3.主卫门直接对着床头,朝向不好。

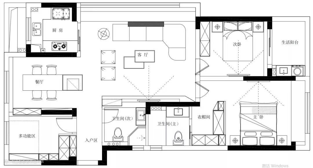
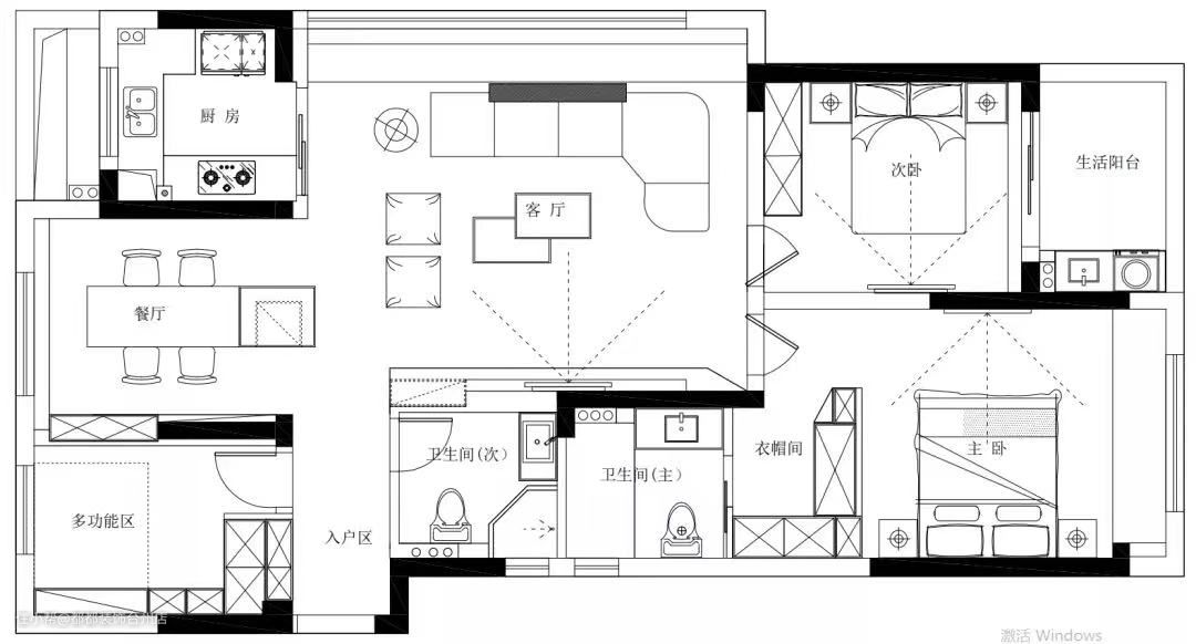
户型改造: 1.牺牲一个书房改成餐厅,客厅扩大,南北通透 更加明朗; 2.厨房L型布局,安装玻璃移门,开放和封闭灵活调控,使用便利; 3.在床和卫生间之间定制衣帽间,增加收纳的同时也化解了尴尬。


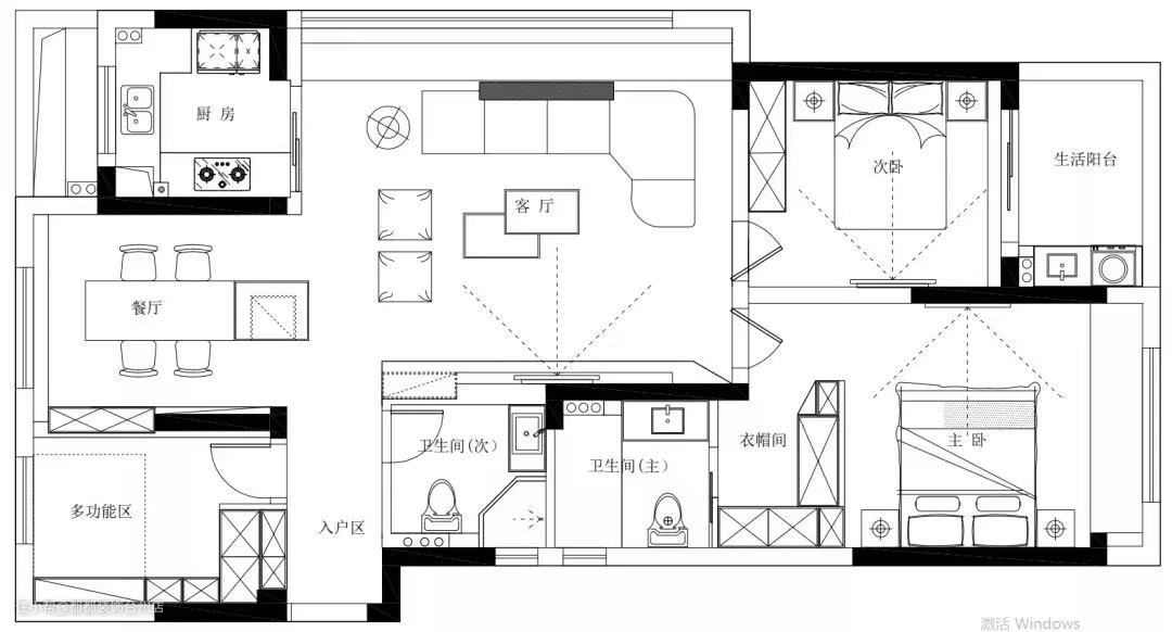
了解一个人的生活,从推门进入她的家开始,进出大门的白色玄关柜,清新整洁,可放置包包以及其他物品,全屋电表箱、弱电箱也藏在了这个空间里,灯带与柜体间自然形成一副波动起伏的光影画,搭配着银色小熊收纳摆件颇具趣味。


大面积的落地窗带来视野的宽广,室内外相融一体,阳光倾泻在奶牛色的空间里,将整个室内氤氲的愈加温馨欢快。


客厅主灯采用了圆环形水晶吊灯,烟灰色和透明色相结合,演绎着轻奢的格调,空灵又清透,沙发旁还搭配了一个钓鱼灯,独特的线条在客厅作为辅助光源,杂志时尚感马上就出来了。


客厅在布局上并未做太大的拆改,只是通过软装及色彩搭配,还有灯具的弧形元素来重新打造这个空间,轻风吹起窗帘,仿佛置身绘本里的童真城堡。


客厅为家人、朋友间增进感情的娱乐空间,布局采用主沙发+懒人沙发+茶几的组合形式,设计考虑到功能和美观性,所以选择了宽大的绒皮沙发增加空间舒适度,靠背可以灵活移动,躺靠都自由。



几采用玻璃台面+金属框架,充满着现代时尚的气息,为了避免与大理石瓷砖产生摩擦,特地在地面上铺上一张毛茸茸的地毯,再配些抱枕、坐垫,席地而坐真的超满足。

这个力量感十足的赛车乐高积木是夫妻俩一起完成的,也是属于两人美好的回忆,现在刚好可以在家展示,成就感满满。



传统的整面岩板电视背景墙总会感觉缺少新意, 于是张设计师在电视背后增加了白色柜体和木格栅,搭配竖排开放格和龟背竹盆栽,将这面收纳柜在视觉上的存在感降到了最低。



餐岛一体=餐桌+工作台+茶桌+小吧台+备餐区+蒸烤机,放在小户型家里妥妥就是一张百宝餐桌,既替代各种桌子功能,还带储物空间,友好地解决小户型客厅拥挤和收纳空间不足的问题。





餐桌直接是做了加长的处理,岛台的侧边装了轨道插座,吃火锅、ipad追剧或者用其他小家电都很方便。 餐厅旁的拱形凹槽是业主最喜欢的一处小景,翠绿的植物自由散开,作为家的一抹亮色融入其中,月球装饰画神秘又静寂,缔造出家的幸福日常。

小厨房干净整洁的秘密是橱柜做足了收纳空间,厨具用品都可以被整齐收纳在柜子里面,使得台面看起来空无一物,厨房整体看上去更加美观,厨具存取也很方便。 精致女孩就要把厨房繁重的家务交给机器去完成,真正做到解放双手,厨房设计之初早就预留了洗碗机的尺寸,整体简约的外观和高级黑的门板与厨房灰色的装修风格真的很搭。


主卧主卧室是一个完全开敞的大空间,就日落而眠,迎晨曦而醒,每天清晨的第一缕晨光总会温柔的将业主唤醒。



干净大气的空间里在传递着温润舒适的空间情绪,流畅的线条,辅以米白色与浅粉色,又展示着空间温馨舒适的韵味。


床尾靠近落地窗放置着亚克力化妆桌和几何形椅子,黑白色系摩登感十足!L型衣帽间很好的解决了浴室直接面对床头的尴尬。摩登感十足的超级自然。




次卧白色、浅蓝色形成次卧的主色调,温和的色调带来身心的放松与舒适,线条和体块有序排列,辅以高级灰的床品,在丰富空间层次的同时也让整个空间更加舒适宜居。

卫生间卫生间也延续了空间简约洁白的色彩基调,白灰的搭配,经典不过时,而移门的设计也很好的处理了洗漱区与淋浴区的隔断问题,墙面的白色墙砖做了细节设计,细腻的纹理,通透的质感,卫生间也可以有精致感。
