这是一套45平的公寓,业主用沪漂5年存下得钱买的。结果房子买来根本没法住,之前房子是一间破旧的中介办公室,墙皮开裂,瓷砖都发霉了。业主偶然看到我们前一段时间发的那个小公寓改造项目很喜欢,于是联系到我们帮她改造设计公寓。约了一个周末的下午我们在咖啡厅沟通了很多。业主原先一直租房子,终于在这个城市有了自己的小窝,不用很华丽简单就好。

经过与屋主的长时间沟通,设计师了解到他们对于房子的需求和想要改善的问题。我们总结下屋主的具体要求 1.房子虽小,基础功能全都要 2.需要一个看书的地方 3.希望空间有足够的采光 4.工期要短,一个月内入住 5.材料要安全

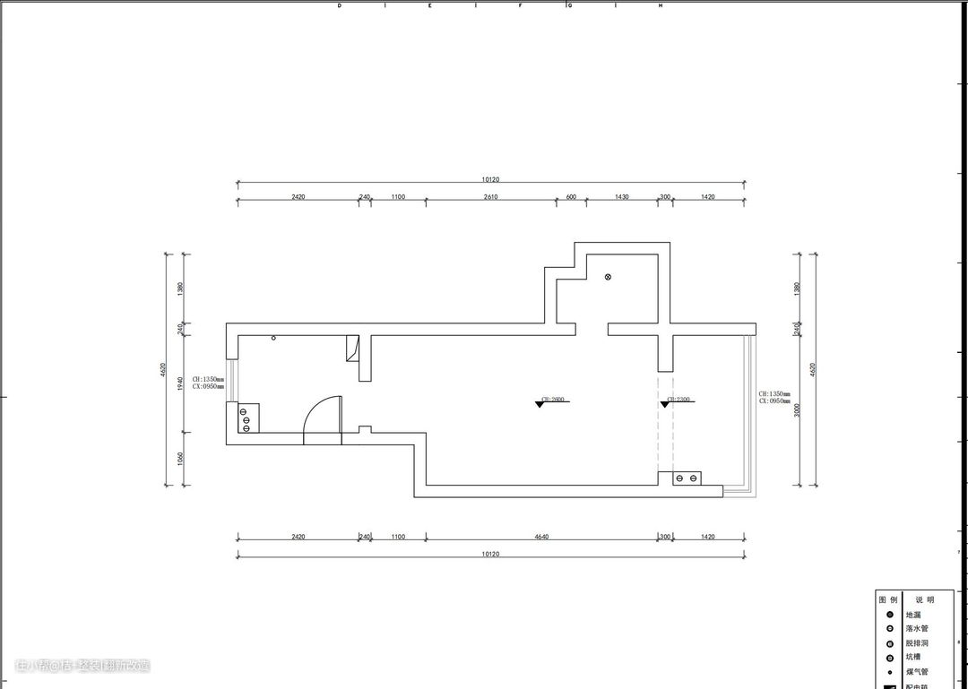
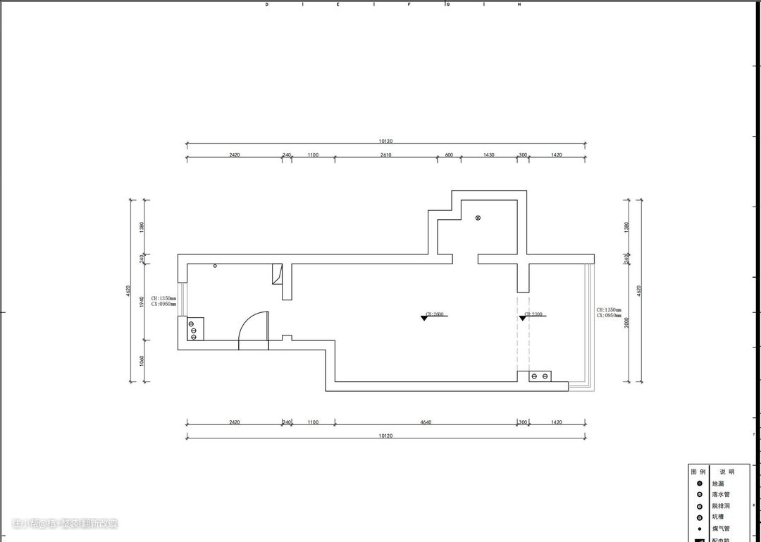
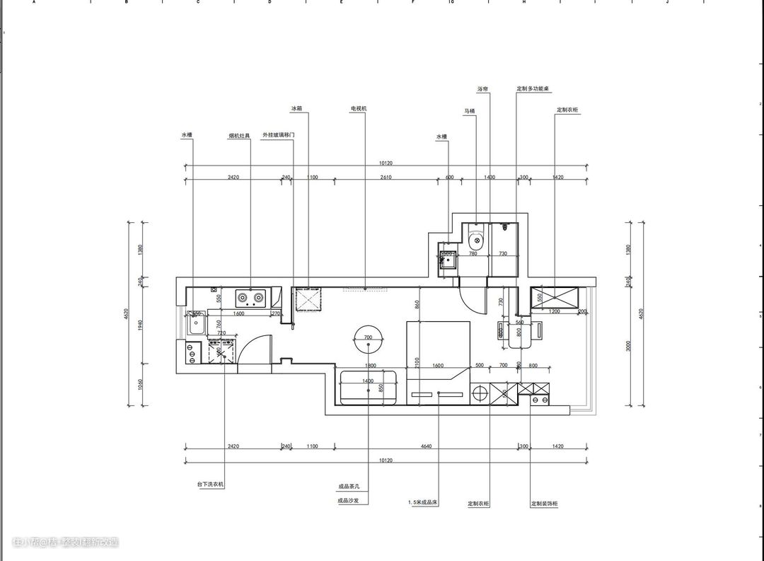
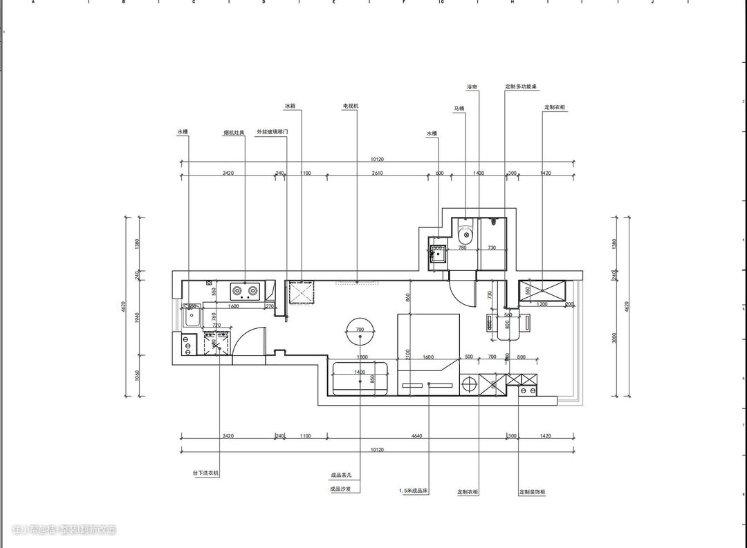
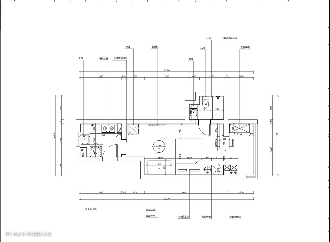
我们设计的首要目标在于满足屋主生活的基本需要以及个人风格喜好。在满足空间功能需求的前提下,运用设计语言,定制屋主独一无二的家。由于这个房子只需要满足一个人的居住需求,所以在保证空间利用率最大化的情况下,把一字型的区域分成厨房功能区,客厅区,卧室区,书房阳台区四个部分。
我们看一看28天完工的小房子长什么样子? 走进入户门就是u型的小厨房,全屋无主灯设计,利用线性灯带贯穿全屋,即提升温馨氛围感,也让人无形中跟着光的指引,将视线延伸至远方,让空间更显通透宽敞。原木色温润舒适,自带柔光感。

这个橱柜配色业主很满意,我们在定制家具之前,一定要先确定好自己想要的风格,然后根据自己喜欢的风格搭配相应的色调。我们设计师帮业主选择了「经典的胡桃木色➕轻奢灰」来搭配,落地效果温馨自然。 胡桃木色搭配米诺灰让整个厨房显得高级有层次。

1、「爱格H3700 胡桃木色」这款现代胡桃木纹花色,柔和的深色调结疤经典优雅,表面粗砺深压纹通过触感呈现,适合搭配浅灰色和白色,让厨房空间更加简约高级。 2、「德国瑞好 150803 超哑米诺灰」这款浅灰色花色,肤感质地,米诺灰色调高级感满满,颜色也比较百搭,是现代简约家装中常用的高级感灰色。

台面采用的高低台设计,洗菜、切菜、备菜在高台面,不用弯腰,灶台在低台面,炒菜不用高抬手,更加省力,这样更符合人体工程学,适用更舒适。

按照我们经验表明单槽真的洗锅洗不了、洗菜盆也放不下。我们选了大单槽,好清理无死角,合理的水槽让厨房的的烹饪事半功倍。 大单槽选购注意事项: 1确定好尺寸 装修中的宝子们,在橱柜定之前就要提前选好水槽、水龙头的型号,把具体的尺寸发给橱柜设计师,方便他们开好孔位尺寸;装修完的宝子,就要费神点了,要量好现有水槽的尺寸,找客服问清楚水槽是否与家里的尺寸相符。 2确定好自己对水槽的要求 我们选的是有沥水盆功能,还有就是洗锅的时候真的巨方便,终于可以容纳下一整个锅了 3.确定做台上盆、台中盆、台下盆 个人比较偏向做台中盆,因为台上盆容易藏脏东西,台下盆我又担心承重不行会倒,台中彭好打理不用担心承重的问题,后期换台盆比较方便。


将客厅餐厅连成一体,让原本狭窄阴暗的客餐空间,逐渐变得通透、大气,档次不止提升了一点点,看着就心生喜爱。


走进来就看到客厅和卧室,全屋延续的是无主灯设计。给大家分享下客厅无主灯,提升视觉空间,不担心吊顶太低会产生压抑感 。 射灯:客厅装三个防眩射灯36°7W/4000k,光线柔和不刺眼而且起到补光防止暗区作用。 磁吸轨道灯选预埋的吊顶前先买回来,吊顶的时候让师傅一起安装,轨道边距50cm,尺寸等于悬浮尺寸左右各扣50cm,左右对称2条轨道协调美观,光源每米轨道配个照明12W泛光灯做基础照明光源,泛光灯中间增加格栅灯聚光防眩照明点缀一下使轨道不那么单调有提升空间整体亮度。磁吸轨道灯光源可以自由搭配随时调整,软装家具入场后光源位置功率亮度必要的可以做适当调整。

谷仓门旁边一面顶天立地得镜子搭配流线灯带氛围感十足,让空间视觉变大。出门前照照镜子,开启美好的一天。

厨房面积本来不大,做推拉门的话有一定的厚度。为了节约厨房内部空间,我们选择了谷仓门。谷仓门的轨道是吊轨无下轨道,方便打扫。用的是长虹玻璃材质,目的是耐脏,厨房偷懒不想收拾台面乱七八糟时,直接关门,长虹玻璃基本隐形里面的杂乱。玻璃材质的质感会让空间更有通透感,让家显得更大。


双人位浅灰色沙发搭配几何图案抱枕,柔软舒适又节省空间,是小户型的最佳选择。充分运用原木元素,原木地板、餐桌、电视背景墙,同色系色调和谐又清新。

这样的家我愿称之为yyds一呆就是一整天,有越来越多人选择木饰面墙板装修,传统装修程序多,工期长,而且装修过程中不可避免会产生大量甲醛等有毒物质,为了身体不受其害,通风等待有毒物质消散是一定要做的。

业主想要快速住进来我们所以选择木饰面装修工期短,无需等待有毒物质消散,装修完毕即可入住。对于房屋改造,如果只在现有的基础上翻新,恐怕效果会不太理想。而如果全部重新装修的话,会很费时费钱如果采用木饰面墙板这些问题都不用担心!木饰面墙板采用扣板式拼装方式,对原墙面的施工要求不高,只要保持基层平整即可。轻松覆盖原来墙面的瑕疵和开裂问题。传统装修很难达到令人满意的效果。而用木饰面墙板装修能让你眼前一亮,装修效果出乎意料得好!你们看和之前对比起来是不是超棒!

流行的木饰面+栅格元素设计即时尚又温馨。奶茶色的家和他们真的太契合了,质感细腻、高级舒适。不管多累,回到家就可以立马被治愈了。主卧背景做的是木饰面格珊拼接,没有多余的色彩,也可以非常吸睛,原木色的床头柜和床架,真的太温柔了。






床头柜旁边是顶天立地的衣柜,收纳一个人的衣物完全可以满足。同色系的颜色,原木色搭配白色,干净清爽。

窗边放一颗四季青,一抹绿色让空间充满活力的生机。
小户型真的每一平方都不能浪费,为了充分利用空间把阳台作为了办公学习区。书桌区域的自然光线很好,整体来说把阳台设计成办公区,我觉得真的挺实用的。工作学习的同时还能舒展身心,累了看看窗外的风景心情也蛮治愈的。

利用墙体做了一个延深悬空书桌,黑色的圆柱桌腿搭配白色的桌面即实用又美观。

书桌的侧面的墙可以手绘哦,思考中突然有了灵感可以马上写在墙上,这点设计很喜欢即有趣也实用。



卫生间在书桌旁边,推开木门就是卫生间了。整体简约的设计,灰色的浴室柜搭配奶茶色花纹瓷砖。收纳能力一流,镜柜后面又三块地方可以收纳,深度足够们可以放下日常囤货。旁边的开放格放日常用的洗漱用品。


清新淡雅的原木风也可以做出高级感,满足所有功能的同时,还可以满足业主想要的温馨感。虽然是小小的单身公寓,但一个人的日子也可以温柔闪光。28天完成一个这么漂亮的小家,真的是不可思议。
桔装无忧团队
