屋主信息 职业:财务管理 年龄:80后 📝「个人简介」 房屋的主人是一个三口之家,一对80后夫妇,男屋主从事财务管理行业,女屋主是银行家,在线上看到我们其他的完工案例并到门店参观,说非常喜欢,于是我们有了愉快的合作。 ✍「前言」 经过初步沟通,我们了解到这套房子是精装房,男主人有收藏葡萄酒的爱好🍷而女主人说她喜欢简约奢侈风格的房子,所以希望主空间区域能尽量做成开放式的。

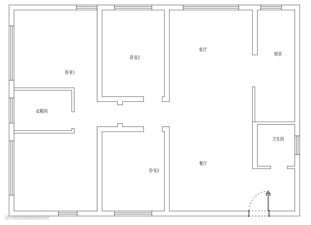
👆户型图

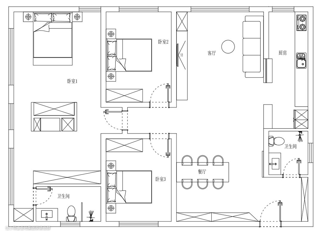
👆平面布置图 「改造方向」 根据业主的需求,我们在空间中使用大量无主灯光和大理石元素,为业主创造一个快乐舒适的家。 1、入口设储物柜,既能保证门廊整洁,又能满足侧柜和餐厅区域的储物需求; 2、客餐厅的整体设计确保了整个空间的采光统一; 3、主卧空间原来的衣帽间被拆除,改造成开放式套房设计,衣帽间空间被扩建; 4、主卫生间所对入口大厅方向改变,空间采用干湿分离设计。

客厅采光良好,我们将原有户型的阳台引入客厅,并将其改为落地窗设计,以增加客厅的空间,确保室内的透气性。

客厅的电视背景墙底部采用大理石,悬挂式设计,底部预留空间,打造储物落地柜,色系与背景墙面一致,营造出整体的干净大方。 👉为了突出空间的质感,底部和大理石边缘采用了线性光带设计,以丰富空间层次感。

另外,因为厨房空间位于沙发背景墙的后面⭐我们选择了玻璃隔断来分隔,增加了双空间的采光度。

客厅采用无主灯的空间整体设计,简单的天花板+筒灯的均匀分布,使空间氛围和层次感重叠,产生不同的美感。地面铺着鱼骨拼接的地板,纹理让空间富有动线感✅

在软装装饰方面,我们给屋主搭配了高档的黑色软皮沙发、千鸟格休闲沙发座椅、灰色地毯和圆形咖啡桌,整个空间大气雅致又富有质感。

在餐厅空间中,我们选择了酒柜+镜面的结合设计,在视觉上不仅能延长扩容视觉空间,还能极好的提升主空间的高雅格调。

全面立柜的收纳柜设计,内部具有超强的储物功能,一半选用透明玻璃柜门,另一半选择灰色磨砂质感饰面,存放酒具,还可存放餐厅内的各种杂物,装饰与实用性兼容,层次更丰富。 👉内部设有线性灯带,不禁将通透感融为其中,大有颜值。

男屋主最爱的酒柜 🍷

👆黑色岩板的餐桌,可容纳六个人用餐,配上深棕色的皮质座椅,黑咖两色时尚简约

我们特意在餐桌右侧墙面安置了一扇镜子,延长空间感,就餐的环境体验感轻盈自由,顶部挑选了个性化水晶吊灯,为就餐环境营造出浪漫氛围✨

厨房采用半开放式设计,L型+悬挂柜+落地柜的操作台面布局,备餐料理动线轻松便捷。 👉在空间中,我们还创建了一个小酒吧设计,不仅可以发挥空间分区的效果,还可以用作餐厅酒吧台使用,有了榨汁机和烤面包机,简单的早餐就可以在这个空间里进行了,顶部配备了坠感线性灯具,现代美学满分。

天花板与吊柜之间用采用了原木护墙板,与白色无拉手的挂柜结合,整体面干净简约。 👉落地柜呼应护墙板,也选用了原木柜体,并保证了厨房的收纳存储。白色岩石板的台面,也便于屋主日常的清洁和打扫。

卧室依旧采用无主灯的设计,优质的自然采光,加上筒灯和射灯💡,再搭配床头的吊灯,打造出极其丰富的光源层次感,氛围拉满。

主卧我们拆除了空间墙,将衣帽间与卧室区以电视背景墙为隔断分区开,使整个空间大了起来☺

电视墙背景墙的一侧是一面全身镜,不过这里主要是为了提高采光度和避免墙体笨重而设计的。

因此在采光方面,我们选用了超大落地窗、硬包床头板以及无主灯的设计,以射灯+吊灯满足照明,再搭配金属、漆面黑元素,让整个空间更有质感,营造出舒适浪漫的睡眠环境💤

卧室床头的窗体特意安装了百叶窗,阳光穿过窗叶的缝隙,留下层次的光影,和房屋的温馨合为一体,轻柔又舒适。

整体的色调为大地色系,沉稳高贵,和外头的主空间是保持一致的。

从衣帽间到卧室,两边都预留了空间,留白感达到了扩容空间视野的效果👀

床尾采用原木护壁板+嵌入式电视柜,并做了镂空设计嵌入线性光带,在细节上凸显精致,减少压抑厚重感✅

👆梳妆台设置在电视背景墙的背面,既节省空间,又能动线归一

次卧是给屋主的孩子使用,因此更注重空间的功能性。 👉空间以深色调为主,床头的背景墙采用灰色印花样式,与书桌定制做成一体设计。

书桌上方的立柜统一全屋的柜体,做成无手把设计,带来简洁饰面,可供孩子存放书籍和其他杂物。✅另外,特意在上层开放架定制做了一个线性灯带加格栅元素设计,屋内的设计感更强,也能体现出精致美学质感。

整个空间以浅灰色为主,干湿分离设计以半透明玻璃门做隔断。采用方形墙砖,大气耐用。结合无主灯的设计,空间低调舒适。 👉在浴室橱柜中,我们选择白色柜体+黑色台面搭配,这经典的配色不论怎么样都看不腻为了保证空间的存储,我们为屋主定制了具有超强收纳的浴室镜,屋主的护肤品可以存放在内,也能避免受潮的影响。

🎤「设计师の采访环节」 Q1:装修过程花了多长时间? A1:五个月前,这栋房子是精装房,早期的拆除工作耗费了大量精力。为了追求质感,后期对家具进行了定制,也需要一定时间准备。 - Q2:整个装修设计阶段最大的挑战是什么? A2:主卧空间墙面的拆除和重建。✊对施工团队都有很大的专业挑战,要保证达到好的后期落地效果,设计师和监理以及施工师傅们都需要严格把控和细心工作。 - Q3:在设计过程中,你做了什么来满足客户的个性化需求? A3:1、考虑到业主的需求,空间内采用大量的玻璃+灯带设计,💡打造高档墙面; 2、客餐厅的整体设计既能保证空间的合理动线,又能满足空间的和谐性; 3、主卧空间的墙壁被移除,以半开放式空间,为业主设计了一个步入式衣帽间,美观和实用性并存,极好的满足了屋主收纳的需求。
