房子是业主购置的二手房,建筑面积85㎡,虽位于一层,但南北通透,自然采光、通风也都很不错,还赠送了一个53㎡的地下室。

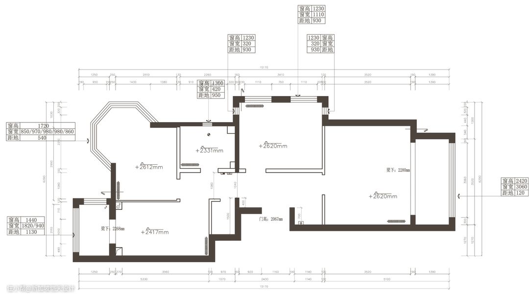
▲一层 原始户型图

▲一层 改造后平面布置图 ○ 一层改造重点: 1. 改变儿童房门洞位置,进门增设通体鞋柜。 2. 将原带弧形阳台卧室改为客餐厅,并将厨房打开。 3. 进门左右两侧暗室,分别改为淋浴房和楼梯间。 4. 布置三分离卫生间,日常使用更加高效便捷。

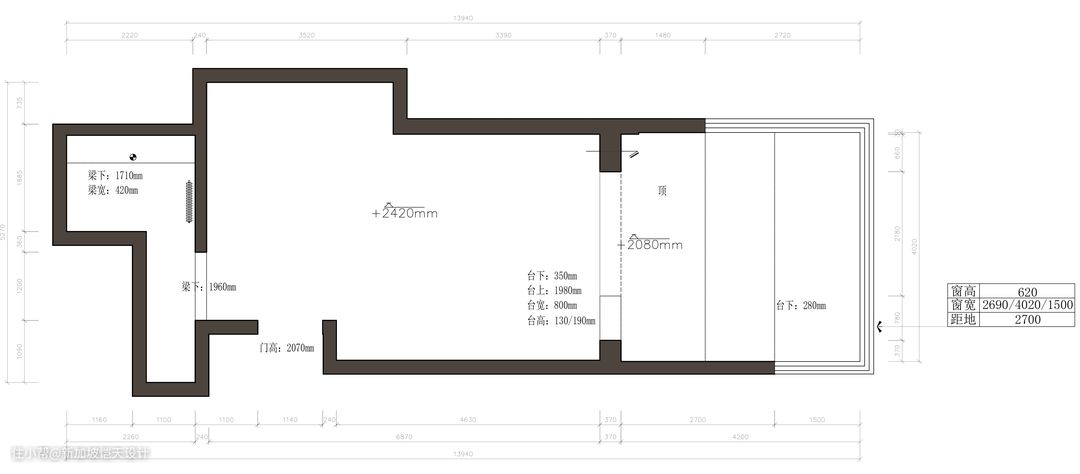
▲负一层 原始户型图

▲负一层 改造后平面布置图 ○ 负一层改造重点: 1. 利用采光井,布置孩子玩耍区、洗衣区。 2. 重新划分室内空间,除了主卧、阳光书房,还布置了大量收纳空间。


▲玄关改造前 原户型的入户是一个狭窄的走廊,缺乏储物空间;两侧的暗室比较鸡肋,由于空间受限,只能做一组柜体,收纳力及空间利用率都不高。

▲玄关改造后

▲改造前这里是卧室空间 原始布局,客餐厅与厨房相隔较远。与厨房相邻的卧室,由于空间有限且自带弧形窗,空间利用率较低。

为了缩短动线、拥有更好的视线,将客厅与原带弧形窗的卧室位置进行了对调。 另一侧,将厨房打开,打破墙体带来的空间界限之后,布置LDK一体式设计,这也是当下年轻人最喜欢的互动模式,彼此独立又相互扩展。

为了整体布局更开阔、舒服,客厅没有布置茶几,一张科技布沙发床,平时是放松休闲的沙发,偶尔亲友留宿时则秒变2.0*1.5m的休息床,场景模式随时切换,于小空间里制造更多可能。

餐厅临弧形落地窗而设,并顺势做了U形卡座式沙发,最大化利用空间、节省空间,也可容纳更多亲友同时用餐。 非用餐时段,餐厅则随时承载阅读和轻办公的功能。亲友小聚,喝茶、聊天,也具备了更灵活、更围合的互动空间。

摒弃常见电视柜,临近厨房做了一个进深300mm的薄款电视柜,满足收纳需求的同时,也不影响整体的开阔感。

▲厨房改造前 原一字型长条厨房,一方面空间利用率低,另一方面也不能满足和客餐厅间的交流。

将原封闭厨房打开,并重新规划布局,I型橱柜变U型,并增设了一个长1600mm的岛台,大大增加了操作空间和储物空间。

大面积浅色系,难免是显得索然无味,奢石墙砖、大理石、原木等多元素的呈现,整体更沉稳大气,视觉感也更加丰富。

中西厨分区,并将炒菜区布置在阳台,提高空间利用率的同时,也尽可能地降低了开放式厨房带来的油烟问题。

岛台还可以兼具简餐区、阅读区、吧台使用,面向客餐厅一侧做了200mm的内嵌进深,方便坐吧台椅时放腿。

赠送的53㎡半地下室,自然采光、通风都不错,只用来储物难免有些浪费。 设计师将空间重新划分,增设套房主卧、书房、楼梯、洗衣区等,还格外给两个孩子安排了玩耍区和攀岩区。

业主一家人都喜欢读书,家里的藏书也很多,布置了整面书墙,也能从小培养两个孩子的阅读兴趣。 这里既是业主办公、亲子阅读空间,又是自我放松的空间。 书房临近大面积天井,自然采光很不错,结合主卧大面积长虹玻璃推拉门,大大增加了空间的开阔感。

玻璃栏杆增强了通透性,消除楼梯空间狭窄的视觉感受,也让原本采光不佳的楼梯得到自然光线补充。 楼梯下方也没有浪费,设计了实用的收纳区。

天井处特意打造了一个个性十足的攀岩区,迎合两个孩子活泼好动的天性。

洗衣区布置在了天井的一角,并布置了折叠晾衣架,晾晒衣物更加方便,平时不使用时也可直接收起来,不占用空间。

▲主卧改造前

主卧延续了整体简约又实用的设计风格,两人的衣物较多,除了床一侧长2900mm的通顶柜,床尾还布置了大量收纳空间。 护墙板与衣柜门一体式定制,拉伸整体纵深感,空间更显整洁大气。

通往地下室的防盗门,也被“藏”进了收纳柜里,晚上两人也可直接从这里回家,避免打扰老人和孩子休息。 一体式床头柜和衣柜的设计,让柜门开关闭合更加便捷,兼顾颜值、实用性及开阔性。


▲儿童房改造前

考虑到长辈上下楼不方便,同时也为了他们在使用的过程中更舒适和安全,便将老人房、儿童房布置在了一楼。 儿童房门由卫生间一侧移至父母房一侧,不仅增设了入户收纳,老人照顾孩子也更加方便。

儿童房仅8㎡左右,上下床,解决了二胎家庭生活空间的局促。宇宙蓝+白色的运用,给两个男孩营造出温馨有趣的童年氛围。 错落有致的上下床设计不显压抑,给足这里足够的呼吸感,满足两个小朋友阅读、娱乐、睡眠三合一需求。

儿童房里,无论宇宙蓝的点缀,还是宇航员壁灯、大象椅的加入,都遵循了儿童的心理喜好,轻松且童趣。

将一层带阳台的卧室留作了父母房,整体以白色和原木色为基调,温馨舒适。收纳柜由室内延伸至阳台,补充收纳空间,空间也更具延伸性和整体感。 阳台做了弧形门洞设计,也给这里增添一丝柔美感与结构感。

▲卫生间改造前 原客卫不足3㎡,难免有些拥挤。 重新规划客卫空间,原区域改为盥洗区和马桶区,并采用一门到顶长虹玻璃推拉门做隔断,小空间更通透、开阔。

拱形门洞,打造空间层次感,且其形态、色调,与餐厅交相呼应,一眼望去更和谐、整体。

原卫生间对面低利率较低的小储物间,则改为独立淋浴房,扩大卫生间可用面积,各区域各自独立,大大提升了利用率,也方便了生活。
| 餐厅灯:岛刻 | 沙发床:大行家居旗舰店 |宇航员壁灯:MOFAS墨菲斯艺术家居 |上下床:松堡王国 | 镜子:LOOK家居馆 | 吊灯:喜物HEYHOO
