We're sorry but react app doesn't work properly without JavaScript enabled. Please enable it to continue.
访问APP
目录
01 方案解析
02 客厅
03 餐厅
04 厨房
05 主卧
06 次卧
客厅
餐厅
主卧
次卧
厨房
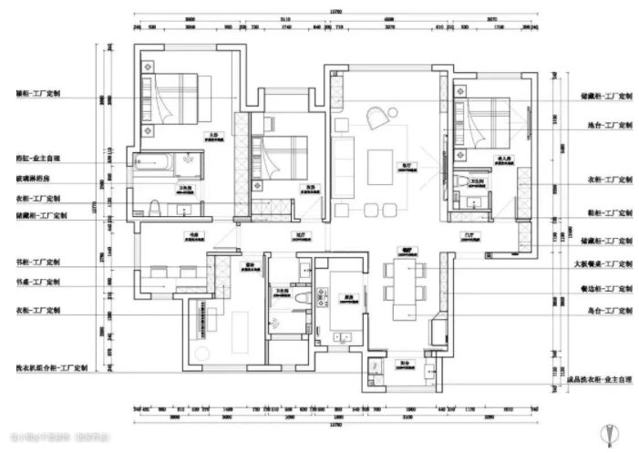
方案解析
实景案例 | 192㎡轻法式:甜而不腻治愈风满满,好温暖!
千思装饰(张家界店)
关注
户型
四居
风格
法式风
面积
192㎡
位置
长沙市
方式
全包
预算
32万
方案解析
客厅
餐厅
厨房
主卧
次卧
相关标签
别墅装修实例
复式楼装修
三室一厅装修
小户型装修
轻奢风格装修
中式装修风格
新中式风格装修
美式家装
120平三室两厅简约装修
小户型30平米装修
小户型60平米装修
65平小户型装修