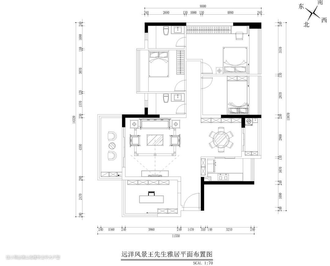
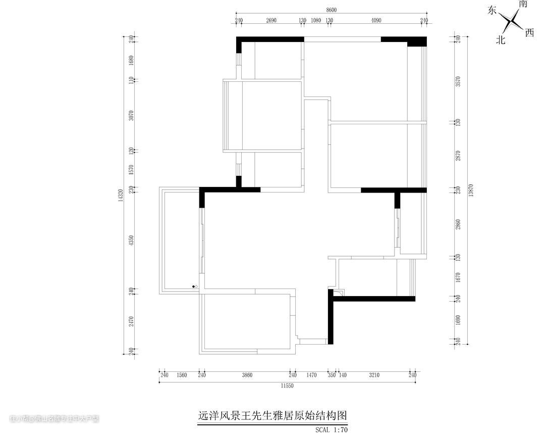
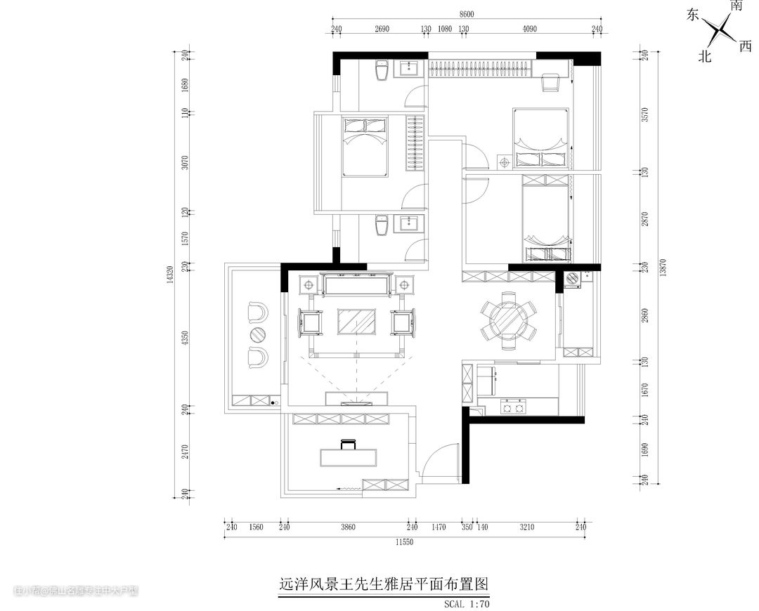
原始结构: 1、本案原屋结构优秀,无需做过大的拆建; 2、业主诉求是希望孩子有独立的学习空间,采光和动线重新调整。 设计理念: 在设计师看来,新时代的背景下,希望通过环境氛围创造都市诗意栖居的生活空间,用禅意风格解放车水马龙的喧嚣。回归柴米油盐酱醋茶,琴棋书画诗酒花的雅静栖居状态。透过人、空间、自然三方互动,由近及远的视觉引向,打造出空间自然气度,虽身处繁华,却心中有诗意。

改造优化: 1、玄关不做隔断处理,进门视线触达客厅,清晰了解家庭动态; 2、书房放在玄关旁,与起居空间适当远离,不受打扰。 3、设计衔接的同时,在卧室可客厅都具备足够收纳位置,满足大小成员需求。

东方文化讲究含蓄内敛,常以屏风或端景将后空间隔断,本案基于传统内涵,由于两个孩子较小,能了解到他们安全动态才是关键点。融合现代自由交互逻辑,玄关客厅互通,入门便将整体格局一览眼底。

全屋整体感很强,先是用相近灯光色调瓷砖铺设,再大面积留白墙砖使其更通透,当天花射灯映射形成局部光晕时,不仅氛围感足,还增添温馨平衡冷峻。

山水作为贯穿建筑的索引,被大幅用在背景墙、沙发等硬装装饰中,无论从客厅何处看,山水形态身临其境。

相比白墙的质朴,全屋墙体做了艺术涂料处理,降低光折射,层次交叠与各材质相融,近看有如鹅绒雪,感受四时于此。

原木沙发线条简化,镂空或圆弧边角减少中式的厚重呆板,橙色沙发是聚焦视点。

遵循自然与人居共生原则,加入光影,客餐厅间用过道分隔将餐厨划分围合。古人讲究“方圆”技法哲学,在餐食范式上,如餐桌,类似和谐端正、团圆等美好寓意便应用于此。

偏沉稳色系加入金属边柜门更显轻奢,在满足采光下,优雅孔雀蓝+浅蓝色纱帘除了装饰用途,适当遮挡也让光感柔和。

餐桌餐边柜与客厅主调一致才不会量感失衡,想最大限度利用收纳空间,选择多功能的家具美观实用,置物、藏酒、展示一体兼具。

L型设置操作灵活,玻璃移门有效阻隔油烟或形成独立一隅,是开放闭合的自由形式,选用原木橱柜门板,强调空间艺术属性,但日常也要保持干燥整洁,才能历久如新。

隐藏灯和壁灯营造氛围,“官帽”式床头、天花角花线条等颇有雅致韵味。主卧没有完全“中式化”,设计师通过对王先生一家教师职业考量,重新提炼保留现代元素,恰好的布局设计更相契合。

位置有限怎么规划?试试书桌衣柜转角拼接节省面积,剩余空间也是给孩子的想象。

设计师为每个成员卧室定制个性展现,女孩房满墙藕粉色,充溢少女心,而局部豆绿色窗帘点缀会更显跳跃。

玄关转入书房是一幅“荷塘画卷”,室内又是一番景致。书香门第,“书”的容纳之所不可少,书桌在中央,后侧一面墙便是书架。

转角两面是270°观景窗,基于本案中层高度,有种亭台的视感。这里是学习工作共通地,采光通风都要求舒适怡人。

在居者一家看来,更多交互时光是给予客餐厅主区的,卫生间固然重要,保持干净整洁,一切从简便好。

主卫是深蓝色柜不脱离卧室主调,公卫瓷砖有通透感,如此素雅白色与大多风格百搭。

