这套房子是十几年前装修的,装修元素还是当时比较流行的“猪肝红”、美式水晶灯、天花板边缘花纹、防盗网阳台等,这些放到现在真的有些老土了!而且房子户型结构是异形的,不方正,装修设计的难度应该不小。思前想后,为了给孩子一个更好的居家环境,我还是决定重新装修一遍吧。 我是一位单亲爸爸,带着两个娃,哥哥在上小学,妹妹在上幼儿园。我中意的装修风格是清新、百搭的现代风,这样的装修效果不那么容易翻车,看着也耐看,即使许多年过去后也不会觉得家里丑。同时,我希望给两个孩子打造一个书香环境,有助于他们的学习和成长。

装修需求: ①房子的整体色调都比较暗沉,太多“猪肝红”了,想换成现代风比较流行的浅色调和白色 ②因为从阳台看到外面,楼距很小,所以客厅的采光很差,显得家里都没点明亮的感觉 ③以前客厅是传统的电视布局,为了给孩子们提供一个书香环境,想在客厅里设计个开放书房 ④以前厨房和餐厅是分开的,我现在比较追求餐厨一体化的布局,想加深一家人的互动,但我同时也担心油烟的问题 ⑤主卫和客卫的装置都很难清理,很容易沾上水垢,且当时没有用墙体遮挡水管,有时会漏水 ⑥主卧想划分3个明显的分区:休息区、办公区和衣柜区 ⑦两个次卧是两个孩子的房间,想根据他们的兴趣意愿来设计房间 设计亮点: ①把木地板和“猪肝红”家具都换掉,改成灰色地板砖,家具以白色为主,搭配浅绿色、卡其色、米色融入其中,使视觉效果看起来舒服、清新 ②客厅旁的窗户拆掉部分墙体,做弧形落地窗的处理,大大增加采光。餐厅旁的阳台拆掉玻璃门,纳入餐厅的布局中,把容易积灰的防盗网换成推拉窗,放置洗衣机和烘衣机来解决洗衣晾晒的问题 ③客厅分成电视区和阅读区,用沙发做分割。阅读区做开放式书房的设计 ④打掉厨房的部分墙体,用玻璃门围起来避免油烟大时扩散出去,做成半开放厨房的布局。把冰箱放在餐厅里,并定制餐边柜 ⑤主卫和客卫的水管都用墙体隐藏起来,并重新做封天花板的处理。洗手池换成容易清理的台下盆+镜柜的设计 ⑥主卧分成3区:L型衣柜的更衣区、书桌+开放格的办公区以及床+弧形落地窗 ⑦次卧是哥哥的房间,把床头墙涂上浅蓝色,设计太空墙饰和飞机图案的灯饰。儿童房是妹妹的房间,把四周的墙涂成浅绿色,衣柜和抽屉的把手设计成云朵的形状


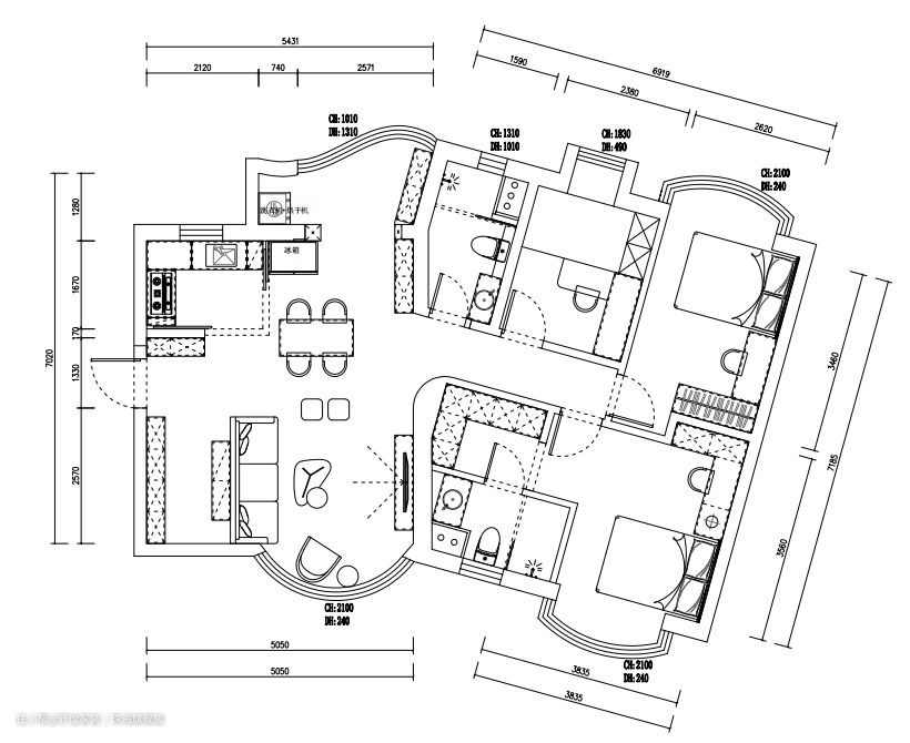
原来的玄关就一个矮鞋柜,现在定制了通顶玄关柜。玄关和客厅的转角处原来是电视柜,现在改成了开放式书房。

进门的玄关处把原来的矮鞋柜改成了通顶玄关柜,采用镂空+上下封闭柜的设计。相比于之前的矮鞋柜,这样的设计可以方便进门后随手放置钥匙、口罩等贴身物品在镂空处,柜子底下预留了10cm的空间,便于直接把常用的鞋子踢到柜子底下。不仅提高了收纳能力,还方便了物品归类。

玄关和客厅的转角处的墙壁上挂了时钟,整个公共区的开关也安装在这里。上方的天花板安装了射灯和摄像头,不仅可以监控到家门安全的问题,还能监控到家里只有孩子时,有没有偷偷看电视,还是在乖乖看书。

原来的客厅靠门处是电视区+玄关矮鞋柜,还放了冰箱。现在的客厅靠门处是开放式书房+沙发+通顶玄关柜,打破了传统的以电视为中心的客厅布局。

原来的客厅阳台采光很差,会客区由笨重的开放格收纳柜+实木长凳+玻璃茶几+沙发组成,空间划分比较乱,没有空出来的过道。 现在的客厅做了弧形落地窗处理,采光大大提高,由简单的电视柜+小型大理石茶几+L型卡其色沙发组成,预留了较开阔的过道空间,分区层次清晰。

现在的整个客厅的地面铲掉了之前的容易开裂的木制地板,铺上了透亮、防滑的灰色抛光砖,耐磨、不易褪色褪光,是常用的公共区地板砖。 天花板做了凹凸型吊顶处理,采用明装射灯+2个分区长灯带+吊顶边缘的线性灯的无主灯设计,使客厅的每个角落都能得到充分的照明,不再是以前的昏沉,感觉客厅明亮了很多。 客厅的窗户做了弧形落地窗设计,采光面积明显增大。平时我会拉上白色的轻纱,在确保采光的同时可以挡住外面破烂的旧楼房,避免我的视野受伤。


整个客厅以沙发为中心,分割了电视区和阅读区,并留出了2条长长的过道,平时来去走动方便多了。 虽然户型结构上客餐厅是相连的,但之前的装修感觉客餐厅之间的布局比较错乱,没有亲近感。现在两边的分区功能突出了,显得客餐厅一体化明显加强了。整个公共区的视野开阔了不少!


窗边的客厅是电视区,56寸的电视机做了壁挂处理,节约了柜子的收纳空间,不用再看到一堆电线,视觉舒适了不少。深咖啡色的矮柜采用抽屉+玻璃柜的设计,平时的杂物拿取也很方便。 空调旁的墙壁还做了与矮柜同色系的橡木制墙饰,形成了简洁却不简单的电视墙设计。相比于之前通顶开放格大柜子,现在的设计轻盈了很多。


考虑到平时父母会常来看孩子,所以选择了L型的卡其色沙发,躺着坐着都很舒服。相比于之前的“猪肝红”实木长凳和绿色单体沙发,这样的沙发布局不仅更加舒服,还能方便一家人共同看电视。 茶几挑了个耐用的大理石矮桌,简单又耐用,也不会占用过道的空间。

沙发后就是开放式书房了,因为空间有限,放不下书桌,但我们3个人的房间都有自己的书桌,也没有关系。于是我听从了设计师的建议,放置了一张与电视柜同款的高柜,给沙发一个靠背,坐下去有一种“靠山”的感觉。


阅读区定制了一个L型通顶柜,因为客厅的灰尘比较多,为了防止书籍积灰,我选择了封闭柜的设计。不仅用来存放书籍,还可以收纳全家的各种杂物,镂空处用来放置wifi路由器。这样的开放式书房设计更符合我家的实际需求。

沙发旁的墙壁做了深咖啡色的木制墙饰,镶嵌了一个带灯的装饰。深咖色搭配橙色,适当的跳色会显得客厅比较灵动,没有那么冷清。

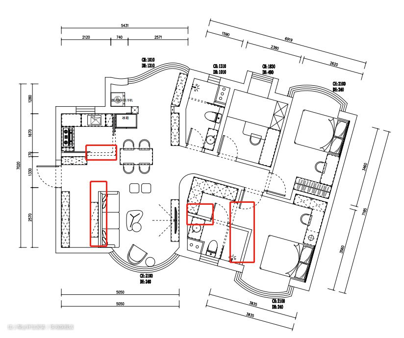
原来的厨房只留了一个门通向餐厅,现在是把大部分墙体都拆除了,用玻璃门围起来,做成半开放餐厨一体化的设计。

原来餐厅旁有生活阳台用于洗衣晾晒,现在玻璃门拆除了,把阳台的大部分都纳入餐厅的布局中。原来生活阳台的防盗网真的很容易积灰,现在改成简单的推拉窗。

原来生活阳台用于洗衣晾晒和堆放杂物,现在用洗衣机和烘衣机解决洗衣的问题。


我一直都很向往开放式厨房的布局,显得很有家庭烟火气,做饭吃饭的过程可以增进互动,但房子的户型结构不支持。所以设计师建议拆除厨房的多余墙体,做半开放的餐厨一体化。 考虑到油烟问题、冰箱的摆放问题,厨房还是用玻璃门围了起来,但从视觉上看会扩大一些。冰箱原本是摆在玄关的,很别扭的布置,现在放到了厨房门口,更加方便了。 餐厅和客厅采用同一个吊顶,天花板边缘都安装了线性灯,餐桌摆得离客厅更近了,实现了客餐厅一体化的布局。

我选择长方形白色岩板的餐桌,搭配橙色软座,桌面上方悬挂了2根s形的暖白灯,整个就餐氛围比以前更加温馨了,让人也更有食欲。


靠墙定制了一个白色通顶的餐边柜,采用了封闭柜+玻璃柜+镂空的组合,方便各种不常用的餐具和食物的归类,镂空处用来放微波炉和烤肉机。我还预留了插座,方便一家人打火锅、吃烤肉。 以前的生活阳台玻璃门虽然拆掉了,但是门框结构还保留着。我在窗边还定制了与餐边柜同款的通顶收纳柜,用于收纳各种杂物,不会像以前那样堆满了垃圾。

洗衣机、烘衣机就放在窗边,以后就不用晾晒衣服了,可以增加室内的通风和采光,居住环境舒服了很多。

以前的厨房昏暗、照明不足,橱柜很容易弄脏,根本无法给人做饭的幸福感。现在拆除了多余墙体的厨房后,还做了无主灯设计,厨房变亮了。厨房的各种装置都是为降低清洁难度而选购的,以后我进厨房的意愿会大大提高。

厨房依旧采用了L型布局,橱柜以黑色为主,不那么容易显脏。橱柜能把各种管道收藏起来,还能把消毒碗柜、电烤箱内嵌进去。 天花板重新做了封顶处理,解决了漏水问题,还能支持内嵌筒灯的安装。我觉得内嵌筒灯很实用,灯具不容易积灰,造型简单,是无主灯设计的优选。 因为厨房面积小,橱柜又内嵌了各种家电,所以餐具和食物的收纳我都放到了白色吊柜里。

水槽设在玻璃门边,上面有筒灯增加照明。水槽采用了单槽+两侧沥水架的结构,洗菜真的方便了很多。水龙头选用了抽拉式的,随时可以清洗柜台。

我喜欢煲汤,所以双灶台是必须的。为了防止油烟飘到客厅,也为了保持厨房的整洁,我选用了侧吸式抽烟机,现在我在厨房炒菜,孩子们在客厅也不会抱怨气味问题了。

以前的房间过道很粗糙,就安装了一盏吸顶灯,照明效果一般。地面的木地板铺向跟客厅的相比,一横一竖,看起来就很丑。 现在的过道天花板采用内嵌线性灯+内嵌筒灯,整个过道都很亮。地板也是铺了跟客厅一样的灰色抛光砖。

以前的主卧的家具比较普通,光线昏暗。现在的主卧定制了更实用的家具,窗户改造后采光更好了。

以前的主卫设计很容易显脏,各种水管露在外面,导致卫生问题得不到保障。我当时一时图爽还买了浴缸,现在觉得很不实用,还不如淋浴好用。

进门处定制了一个L型的亮面灰色的通顶衣柜,采用了隐形免拉手的设计,布局简洁便利,足够收纳我们3人的床上用品和大件衣物了。在定制衣柜的时候,设计师还优化了天花板上横梁的尴尬之处,有效地利用了空间。

主卧的大窗户做了窗型优化,整个弧形落地窗的采光比之前的更好了。我安装了墨绿色布艺+白色轻纱的双层窗帘,不管窗外光线如何,都能调整到合适的室内亮度。 主卧的床头墙刷成了浅绿色,还搭配了造型时钟和现代画做装饰,形成清新简约的墙面效果。

床头柜旁布置了L型的转角办公区,办公桌搭配壁挂开放格,平时晚上在家加班也有一个安静的工作氛围。

主卫的马桶管道藏在了墙壁里,不仅防臭,还能减少卫生死角,可以节约很多时间。 洗手池选用了台下盆和大理石纹的台面,平时可以直接用手把积水清到水池里。大理石纹的质地,既耐磨又不容易沾上水垢。 我选用了智能镜柜,拥有照镜子、收纳、增加洗漱区的照明等多种作用。以前我都懒得照镜子,现在喜欢得不得了。

我现在觉得淋浴更实用、省时,直接在淋浴区安装了浴霸,用一块磨砂玻璃做半隔断,处理了干湿分离的问题。

以前次卧放的还是儿子小时候用的儿童床,书桌也很小,柜子因为开放格多都积灰了。现在放了更适合他的1.3m的床,定制了衣柜和书桌。


儿子的次卧是以太空为主题设计的,床头墙刷了浅蓝色,搭配了太空漫画的装饰灯。天花板的主灯也是飞机形状的,抽屉和衣柜的把手是星星形状的。 这里的窗户也是设计了和主卧同款的弧形落地窗,搭配同色的双层窗帘。床靠窗边摆放,儿子说现在的睡眠环境比以前好很多了。


衣柜摆放的位置有横梁,定制时师傅们花了不少心思,总算定制出和书架融为一体、优化了尴尬的墙体结构的衣柜了。 书架和书桌是一体化定制的,书架离桌面有50cm,用壁挂的方式安装在墙上,方便儿子平时拿取书本。书架底部内嵌了长条灯,保证了他做作业时的亮度。 儿童房

以前儿童房的床边放了开放格,影响睡觉和拿取物品。现在的儿童房参考榻榻米的结构定制了各种家具,空间利用更合理了。


儿童房的几面墙都刷上浅绿色,柜子都是以粉色为主,把手设计成云朵的形状,给女儿一个少女心的环境。床是靠窗边摆放的,飘窗边还安装了墨绿色的窗帘,平时女儿可以坐在飘窗上看着外面的街区。 因为儿童房的面积较小,所以参考了榻榻米的结构定制了各种家具。床头处的定制矮柜可以充当床头柜使用,增加了收纳空间。

为了有足够的收纳空间来保存书籍,利用了垂直空间定制了壁挂的收纳柜,同时也方便她做作业的时候拿取课本。书架、书桌和衣柜都融为一体,把空间利用扩大化,布局比之前整洁了不少。


客卫和主卫的布局差不多,用磨砂玻璃做了半隔断的干湿分离。天花板安装了内嵌方块灯+通风管的组合,即使没有窗也能保证空气流通。 客卫的户型结构本来不够方正,为了显得空间扩大化,我选购的镜子覆盖了马桶和洗手池的上方的整个墙壁。为了增加收纳量,洗手池延长了一部分到马桶上方,方便如厕时拿取物品。
