

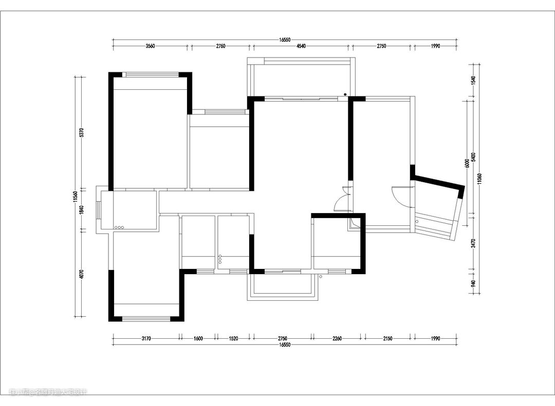
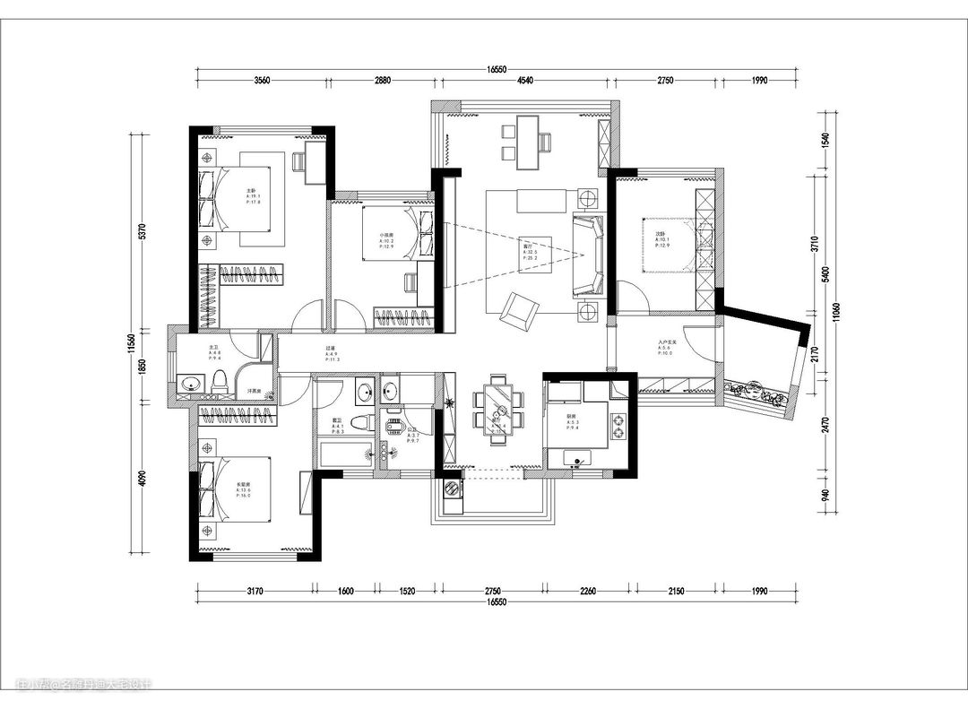
从生活中,到生活中去,是处理和解决生活中的问题,升华生活品质的一种方式追求宽敞明亮的空间设计,强调结构的完整,无需过多的装修装饰,在搭配中体现整体协调。无主灯设计,极大增加空间上的视觉感。 注重大小色块间的组合,地域性的后期配饰融入设计风格之中。简约,不简单走进现代简约风格家具。现代人面临着城市的喧嚣和污染,激烈的竞争压力,还有忙碌的工作和紧张的生活。因而,更加向往清新自然,随意的居室环境。





无主灯的设计,线性灯光让空间更有层次,打破客厅和阳台的连接,增大使用面积,可以尽情享受家庭互动时光,设计师结合现代简约的风格基调,合理的运用留白,用米白浅色延伸作为基调,恰当运用木质屏风作为点缀,使其空间不会显得过分的冷感,舒适自如且温馨。 在家具的选款上,主人偏爱皮革的质感,与大理石互相融合,通过大理石纹理与物件加持,冷暖感中和。 客厅每个物品都有清晰可见的线条,尽显简约且富有质感,不管是茶几还是沙发,都在诠释属于自己的物语,既可以让每一个元素独立出来,又可以让整个客厅形成整体,互相呼应。 如果用一个词形容客厅区的氛围,细腻温柔大抵是较为贴近的形容。没有过多花哨的色彩,自然色大理石搭配浅色皮质沙发,每一寸,无不尽显业主的品味与高级感。 简约大方的空间,整体线条感很强,天花做成无主灯的设计,将“现代化”的概念贯穿始终。 整个空间围绕着“简约设计、干净利落的线条、柔和的氛围”为灵感,通过色彩与材质的运用,保证室内的温暖格调与生活气息。 理性的框架与艺术感性的互相碰撞,构建出和谐统一的当代美学秩序。在静穆的色彩中,拥舒心的时光入怀,而家的意味也因心的触动而逐渐展开。



餐厅延续客厅总体的设计风格,客餐厅一体设计,简约主灯设计,加上四张暖色调的餐椅,配置大理石的餐桌,并与客厅风格形成呼应,相互融合无论是用餐还是工作,亦或是家庭的手作时间都能随意切换,设计精简,一应俱全。 与客厅风格相同,家具选款无异保持调性,以客餐间过道为中轴线,划分出不同的生活功能区,模糊场区边界,达到规整有序的既视感。 皮质弧形餐椅符合人体学设计,给用餐带来更舒适体验。大理石的餐桌干净整洁,自带高级感。桌上的鲜花作为点缀,给整个空间增添几分分活泼浪漫。 圆形为主题的吊灯突出餐厅中心点,日常的用餐还是休闲互动,方形餐桌的可操作度都给更多生活形式增添灵动性。


厨房的橱柜都采用了吊柜+地柜,虽然比不上豪华厨房带中岛柜的那种,但其实我们对厨房的需求没有那么高,用起来还是挺便捷的。L型的橱柜能够比较好的内嵌进洗碗机、消毒柜,操作的台面空间也更大,妥妥的治愈系厨房。 封闭式厨房搭配动线合一设计,简易与便利互相结合的空间规划,为生活的舒适度再添一分。厨房上方做了一排橱柜,既满足烹饪、收纳功能的同时亦能保持整洁统一。 厨房动线区分水槽、灶台、等几大部分。既方便几人一起分工烹调,分工合作出一桌饭菜,能又让房屋增添一丝温馨的气息,让业主有自由展现厨艺的空间,在这里可以大显身手,給家人做一桌丰盛的晚宴,一家人其乐融融。




卧室是作为居者精神释放的场所,是繁华到静谧的无缝切换的地方,因此需要适应不同成员个性和习惯。主卧调性基本不变,温润原木地板铺设,以蓝+粉床品提升质感。墙面选用墙板拼接,颇有感觉。当阳光穿透仿若被温柔包裹,弱化光感强度,心情别提多舒坦。 以大面积白为主调,将思想、空间设计、物件还原为简单的形式呈现,唤醒白的张力,给居住一个简约大方、宁静住所。 主卧一室素雅柔和,中性沉稳的色调,既不古板也不跳跃,舒缓疲于都市节奏的身心。 整体色调围绕着白色调,清雅舒适,木质墙板鱼灰色格栅的组合形成层次感,开放格的设计突出了传统衣柜的单一,给人视野明朗开阔的同时,也颇具趣味性,巧妙的给睡眠区建立起安全感! 视线转换背景墙后,是给主人的衣帽间,衣柜搭配墙面同色,玻璃柜间隔,衣物拿取变得游刃有余,而面延伸处设置梳妆台给予女主人使用。


次卧整体简洁素雅,亦休闲亦待客,功能多变,每个空间独立却互通,呈现着生活美好场景。卧室无意于奢华,而是注重氛围感,设计师预留了较多空间的留白,方便客人舒缓心情,使得心情愉悦,洁与净在这片空间中得到了极致的交融。 卧室的功能从未有太多的变化,它一直都是睡眠和休息以及存放衣物的主要地方,是一个居室中最个人化的空间所在。 每一个精心设计的卧室就是一首动人优美的旋律,值得回味。然而卧室的设计并非一定需要多姿多彩的色调和层出不穷的造型来营造气氛,大方简洁以及淡雅而又极富现代感的简约主义已经是越来越受到每一个人称赞、欣赏、喜爱了。


卫生间没有着重笔墨,意在极简的态度,洗手池下层收纳位与客厅卧室调性一致,无边框等长梳妆镜、线性灯与台面,极细的线条体块,减轻视觉量感。 清冽静谧,卸下疲惫,整个空间用大理石通铺,白色与灰色瓷砖互相拼接,再划出一隅作为干湿分离区,简单的处理就能展现主人的思想内涵。 卫生间作为家居生活中留滞时间较多的空间,懂生活的人会注意造型的任何一个细节,除了在满足业主基本的洗漱和沐浴之类的用途之外,有质感的卫生间也能够给业主开启一天好心情。
