

业主是一对新婚夫妇,男业主更为尊重妻子的想法。因此,这套房子无论是从风格、配色、硬装细节还是软装,都由妻子挑 选。她是一个很文静又特别有主见的人,希望打造一个温馨舒适,简约大气,同时能兼顾实用性的家。 设计思路 1.设计师根据业主的要求,首先在配色上,建议业主选择温柔纯净的颜色,能让整个空间明亮通透; 2.其次,硬装上,因为这套户型层高不是特别高,所以设计师建议采用更简约美观的无主灯设计,让整个空间看起来更大、更开阔。



设计亮点
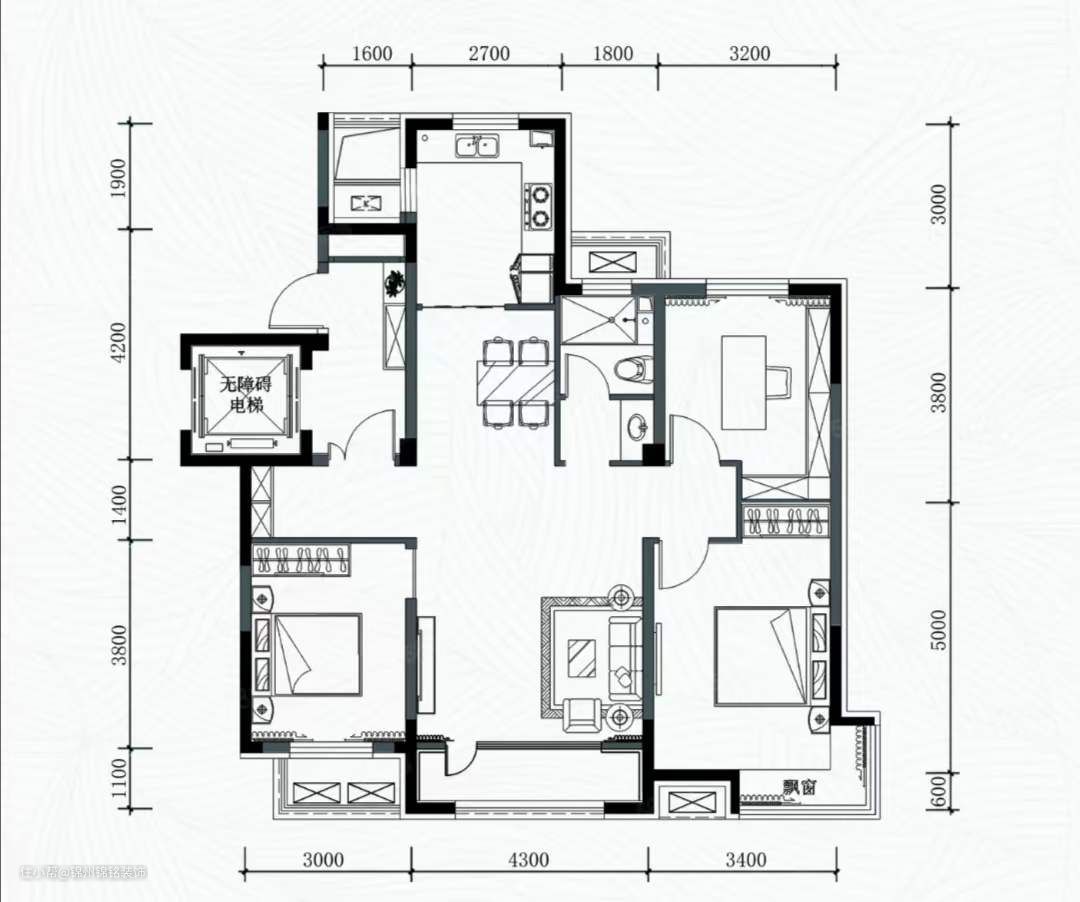
阳台打通,封落地窗,瓷砖通铺到阳台,拆除推拉门,打通了阳台,扩大阳台门洞,瞬间客厅更了一倍,大玻璃让阳台更通透,采光也好了!无主灯设计+大白墙,无主灯极简又高级,墙面就是白色乳胶漆,视觉上更显大!白色很耐看很显亮。亮光砖通铺,选择合适美缝。无主灯铺亮光砖 好打理太显大 美缝和瓷砖颜色越相似越好,远看没有缝隙是一个整体。



设计亮点
厨房台面是细颗粒石英石台面。U型厨房布局,做菜动线流畅,按照洗一切一炒装来布置。能上墙就用免打孔上墙,方便收纳!油壶比较重还是建议用台面式收纳置物架!水槽下方可以用来储物,柜门也不要浪费统统收纳起来!
软装搭配
橱柜柜体是大理石,柜门是欧松板,亮面的柜门, 好看还实用。L型的轨道门,打开是开放式,关上是一个普通的三联动玻璃门。黑白灰的色系搭配,白色的铝百叶帘非常好打理,免打孔的几分钟就安装好啦!厨房瞬间又好看了!



设计亮点
大飘窗延伸空间更显大,阳光透过百叶帘暖暖的也太治愈了全方位卧室。太空漫步简单的双眼皮吊顶+窗帘盒中央空调+整墙衣柜简约设计。黑色皮床颜值很绝实木床架结实无异味好打理也很百搭。



设计亮点
淋浴房做了拉槽,做了超白玻璃推拉的款式。做了一个三联动淋浴房 不留卫生间死角做下水墙排。浴室柜是悬空的,这样打扫卫生的时候底部就可以打扫到,这样也避免了浴室柜落地,环境潮湿,长期会发霉的问题!
软装搭配
换了断桥铝窗户,贴上磨砂玻璃贴就好了,简单好清理,窗台也可以放点洗发水沐浴露,磨砂玻璃贴起到遮挡作用的同时还不失美观。
