

装修前
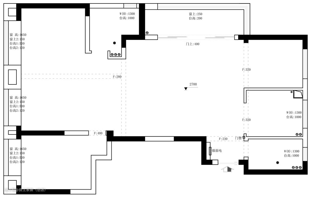
本期这套案例的屋主比较喜欢横厅布局,但原户型的横向尺寸无法满足这样的布局需求。 设计师通过对硬装布局的巧妙改动后,实现了客餐厅公共区域的横厅构图。 同时打通阳台,视野得到了拓宽,采光也得到了升级,全屋实现敞亮开阔的姿态。 黑白灰的配色加上丰富的灯光系统配置,让这个高级感满满的现代家,简约自由温度……









设计亮点
考虑到原户型的横向尺寸不太足,设计师将北向的厨房和书房空间各向北压缩了25公分,释放出更多的空间给到客餐厅,从而满足了屋主钟情的横厅布局。采用黑白灰的配色、利落的线条与留白、无主灯的设计等,低调质感的家具点缀其中,一同营造出空间的现代简约格调。将阳台空间打通并入客厅,超大落地窗将自然阳光收入室内,客餐厅整个公共区域变得更加宽敞通透,横厅布局的优势最大化展现出来。极简电视墙设计,采用纯白色墙面将电视机内嵌,黑白配色经典不过时。黑色的电视柜采用钢板打造,部分做成开放格和格栅造型,使空间不显沉闷单调。过道连接各个空间的同时,兼具收纳的作用。沿着墙体设计一组很长的储物柜,开合有序的柜体设计既能作为餐边柜使用,也是客厅收纳的主力。




设计亮点
为了保证厨房空间的开阔度,厨房往书房方向扩了30公分,同时将书房改成开放式,设置一排书柜,靠墙摆放钢琴,也增加了空间交互感和敞亮度。岛台+餐桌一体化的设计,进一步增强了空间的整体性与便利性。方形的岛台拥有多功能属性,也是餐厅氛围的加分项。


设计亮点
厨房采用了灰色系配色方案,简约耐看不易过时。上下双层柜体释放出大容量的储物空间,保证烹饪空间的整洁有序。




设计亮点
主卧延续简洁利落的布局模式,在配色上则没有采用冷峻的黑白灰,而是选用了柔和温润的奶棕色系,配以木质地板,营造出温馨怡人的睡眠空间。为了缓解衣帽间过道到睡眠区的原本局促的空间,将主卫入门朝向进行了调整,并设计成钻石型门洞。同时朝向睡眠区的墙体上做了椭圆形隔断,以玻璃砖替代石墙,采光得以互通共享,也提升了空间的设计感。





设计亮点
次卧充分利用床头区域,从大衣柜柜体延伸出一字型书桌,让空间设计更显灵活,悬空式的桌面设计轻巧易打理,也增加了视觉上的轻盈感。另一个次卧空间温馨怡然,适当的留白、为暖煦的阳光,给人以通畅的空间呼吸感,让人心生向往。
