
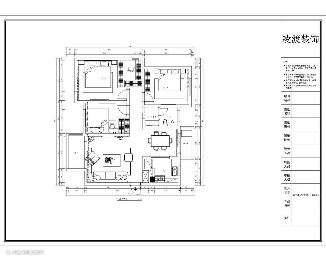
户型解析: 120平的户型,业主一家五口居住一起。面积还算比较平整。客厅两侧的阳台相对,光线充足。但业主不用太多的空间,最好每处都能利用起来但是不要杂乱无章,要拥有流动线。

设计方案: 1、入户正对客厅,右侧放置柜子作为鞋子收纳,正好内嵌空间利用。两面相对的开放式阳台做了推拉门封闭式阳台,小小空间温馨大家,留有客厅与餐厅区域。 2、原本开放式厨房为避免油烟味,做了推拉门设计封闭起来。厨房内L型设计布局,冰箱内嵌。 3、主卧里用高柜打造出一个书房,漫步在全是知识的海洋被书包围着的感觉就会很棒。打造儿童房为了正常拥有大衣柜和书桌,放置书桌衣柜一体化高柜。打造学习空间

客厅: 单眼皮吊灯旁线灯围绕一圈,加以墙体修饰营造氛围感。黄色电视背景墙加上金属线条的装饰围绕着电视处,高大尚感就来了,悬浮电视柜,更易清理卫生,桌面上摆着陶瓷艺术品,增添趣味。欧式大吊灯加上奶油色软装沙发让客厅的艺术感又得以利用,给人舒适轻松的家。


和客厅相呼应的金属线条装饰奶油黄背景墙,一整个大餐桌,一家子其乐融融坐在一起吃饭,家庭氛围感拉满,面向太阳的升起,暖阳又惬意。


灰白的色彩搭配,让厨房的光线正正好,L型布局设计,洗、切、烹分布均匀。集成灶的使用会使下厨更为方便。冰箱内嵌入内不占用更多空间,留活动范围。


卧室里利用金属线条隔断拼接成床透高级背景,壁画装饰背景板。两侧的墙挂灯,增加氛围感的同时也可作为小夜灯使用。墙侧的嵌入式衣柜为卧室减少了占用空间增加收纳空间。


卫生间干区外岩板台面+陶瓷台盆打造出的洗手台,既好看又不用担心问题的发生。整个墙面用着白色瓷砖通铺,墙体打造壁龛更增加收纳空间。卫生间湿区分布,整体也是白色瓷砖通铺加上主灯的照射让卫生间更加明亮。



