
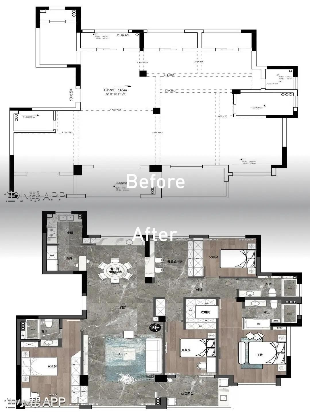
装修前
新居为夫妻俩,父母、以及一儿一女三代人共同居住。业主希望在固有的框架中,能获得足够的活动空间。在这里,不仅能感受家的温暖,也能让生活在这里的每一个家庭成员都能内心自在,倍感舒适与放松。
装修后
❶ 将生活阳台纳入客厅使用,扩大使用面积 ❷ 将与主卧临近的次卧改造为衣帽间,并纳入主卧使用,改造为同时拥有衣帽间、卫生间的大套房使用 ❸ 原始储物阳台并入中厨,扩大使用面积 ❹ 书房做了开放式的布局,增强与公区的互动性








设计亮点
扩大后的客厅视觉平坦开阔,流通与互动一体成型。优雅的大理石、温润的木饰面,不同的墙面材质,凸显空间的层次与魅力。周正优雅的米色皮质沙发,时尚肌理的圆形茶几,一盏金属大落地灯,低调内敛的精致氛围扑面而来,描摹现代风的格调与生活。





设计亮点
餐厅为开放式布局,延续客厅的格调。自然清雅的大理石、质感舒适的皮革、温馨浪漫的吊灯,营造品味非凡的用餐情调,定制餐厅边柜,充当属于两人的咖啡吧台,这样贴近生活的居家设计让心情倍感惬意,是获取幸福的重要途径,也是设计师传递给居住者的重要概念。



设计亮点
中西厨互不打扰,发挥各自的价值。空间的连通性,让不同的功能区域在视觉上形成串联与穿透,餐厅的柔和韵律为厨房形成一处视角端景。移动式的矮柜,定制的到顶储物柜为居所带来足够的储物空间,与原始储物阳台合并后的厨房拥有由外界引入的丰沛光线。




设计亮点
空间的现代造型更为节制,材质与家具进行融合搭配。改造过后的空间同时拥有睡眠区、衣帽区以及卫生间三个区域,相对公共空间的多元节奏,这里则是更沉稳的低音部分。卫生间与睡眠区相隔的玻璃隔断,强调空间的趣味、延伸感,并为其蕴含出包含生命力的对话空间。


设计亮点
简练的线条描摹木质的温润,打造静谧优雅的休憩空间。整体空间面积较小,电视背景做了整排的定制柜,满足了储物的需求。



设计亮点
作为公共空间中的缓冲地带,开放式的书房以延展视觉和氛围呈现。胡桃木书桌、原木画板、轻奢背景书柜糅杂出多种感官体验。在游走与停留之间,具象与抽象进行多元叙述。




设计亮点
烟灰色、钢灰色、亮白色、魅影黑组合拼贴出清爽纯净的色块空间。多种元素融合呼应,得以焕发出新的能量。


设计亮点
极简利落,鱼肚白石材铺陈内敛优雅,匠心的玻璃运用营造出良好的空间秩序。

设计亮点
阳台延续了整体设计的优雅品味,深浅有度的灰色为空间注入温柔恬静氛围。
