

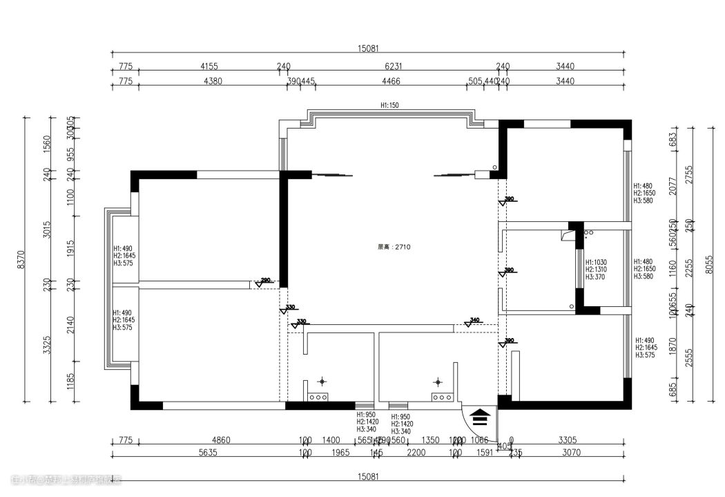
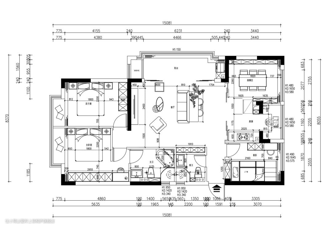
本案是一个128㎡的大平层,业主是一个情感细腻的人,比较活泼喜欢吃,喜欢旅游,了解到业主比较喜欢简洁有质感的家,所以最后敲定了现代简约的装修风格,在她与家人的参考下为她家量身定制了家具设计方案,打造舒适简约的家!




客厅风格选择比较中性的冷色调,以最为经典的现代轻奢风为主要设计风格,将皮革、金属、大理石等元素结合和谐相处,呈现出的效果也符合预期效果。 大横厅的布局在视觉上产生扩大空间的效果,超大的落地窗增强了客厅光线,客厅阳台休息区域在这个空间内成为一个整体,但是又按照功能各自分离,让一家人互动沟通更加轻松自在。 从沙发后方的休息区域能看到整个客厅空间,同色系的家具清晰且过渡自然,电视背景墙大理石让电视墙看起来更富有层次感。 客厅一侧墙体定制了嵌入式柜子,通顶的结构不容易积灰光面的岩板台面便于日后的清扫,同时也为客厅区域增加了更多的收纳空间,中空的置物台可以摆放一些平常用的小物品,考虑到卫生的问题所以利用了灰色的玻璃柜门防灰。

餐厅与客厅休息区域的整个色系都灰色为主,同系列的吊灯与整体空间遥相呼应,营造出更加轻松温馨的用餐氛围,因为空间为方正所以建议业主选用了长方形餐桌,不占用多余的位置又能容纳多人用餐,皮质的餐椅搭配白色的大理石桌面视觉上通透清爽又干净。 后方嵌入式的柜体,通顶的结构不容易积灰光面的岩板台面便于日后的清扫,可以将收藏的酒品放置在内,兼顾了实用与展示功能。

厨房五脏俱全,L型的布局,动线合理,木质的柜门与白色的台面搭配清爽的配色让业主下厨时也感到轻松愉快。 厨房的收纳方面上吊柜与地柜、抽屉的结合大大提升了厨房的收纳使用价值,业主采用的是内嵌式的洗碗机,因为厨房空间有限不想牺牲掉现有的收纳空间所以选用的内嵌式的洗碗机,使用起来非常便捷解放双手,虽然容量很小但是一家人足够了。

卧室延续了公共区域的风格,以灰白色为主,因为室内比较偏暗所以选用了藕粉色的床品作为点缀,靠背与墙面乳胶漆颜色一致为室内增添了更多灵动感和优雅感。


次卧为儿童房,整体采用自然的原木材质,整体质感显得轻松而又舒适自在。上下双床设计,满足家庭成员的日常居住所需。

次卧为儿童房,整体采用自然的原木材质,整体质感显得轻松而又舒适自在。上下双床设计,满足家庭成员的日常居住所需。
