









设计亮点
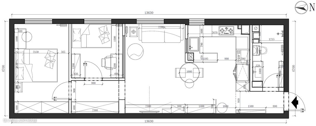
原始户型最大的问题是采光不理想。虽然有东向的4个窗户,但都有1米高的窗台,进光量不足。此外,屋主对储物也有很高的需求。看设计师如何施法。 1、增大面宽,相互借光。 A、开放式厨房。厨房变为开放式,客厅与厨房打通,面宽从3米变为6.2米。 B、厨房开窗。这面墙靠着主下水管道,不能移动,而且还要挂燃气炉(需要靠窗),所以得以保留。设计师给这面墙开窗,这样不但能借光,还能在备餐时与家人交流。 C、次卧开窗。次卧给偶尔来的客人住,平时做书房,所以也开了一面2.1米宽的窗户,与客厅和厨房相互借光,将面宽进一步加大到8.9米。这个宽度足能放一辆厢式载货车。 2、门让一让,柜子更好放 A、卫生间门让一让,后面放薄柜。 原始卫生间门往中间移动,把门后到墙的距离从原来的13公分,变成25公分,这样就能放下一组 1.5米长,25公分进深 的薄柜,打造女屋主的面膜专属囤货区。门也换成了长虹玻璃金属门,相较于传统木门,没有门套,不会再吃门后的靠墙距离。 B、主卧门让一让,后面放两组衣柜。 (1)主卧变方正。主卧门移到与次卧隔墙平齐,将原来的“刀把形”房间,变成方形。 (2)压缩次卧,走廊加宽。原来走廊1.1米宽,仅做过道很浪费,加宽到1.65米,这样能放下门和一组标准深度的衣柜。 (3)主卧门后放衣柜。主卧门位移,在门后,走廊和主卧内,分别布置两组标准衣柜(进深60公分)。 C、次卧门让一让,两边好布置。 次卧门移到中间,这样门后一边放书桌(1.5米宽,60公分宽),一边放衣柜(1.4米长,55公分进深),布局更合理。







设计亮点
玄关看似简单,但功能完备。 存鞋:进门左手边,一个1.5米宽的成品鞋柜,4层,足够收纳2人平时穿的鞋。 换鞋:鞋柜旁边是一个小巧的换鞋凳。 挂衣:与鞋柜对着的就是衣柜,高2.4米,宽70公分,分为上下两层,上面挂衣,下面放穿不到的鞋子。 这个玄关衣柜其实是橱柜的一部分。 高柜要嵌入冰箱,进深达到72公分,如果按照常规布置,橱柜侧面看起来会很堵。但如果将最把头的高柜,从侧面使用,面向门厅,当作衣柜,这样不但补全了门厅的功能,而且从各个方向看,都很美观。 从里面看向玄关,这个衣柜侧面也很nice。
软装搭配
法式元素点缀。门厅远离光源,因此采用浅色调。屋主喜欢法式,从进门就能感受到它的存在:换衣镜,墨绿色墙漆、长虹玻璃屏风和地面方格砖。 菱形方格砖有一种复古的美感,配合一圈波打线,标识这是门厅区域。墨绿色墙漆用来平衡个性的穿衣镜带来的视觉不均衡感。玻璃屏风透光而不透视,避免进门一览无余。







设计亮点
厨房整体也是浅色调。橱柜柜门选用了奶白色,四周凹边款,配金色的拉手,稍显奢华。相较于反弹器柜门,这种拉手款更可靠。墙砖选用了订制出口系的暖灰色小条砖,尺寸为7.3*30公分,每一片花色都不一样,很有质感。 贴砖省钱法。在厨房,能看到的地方贴好一些的砖,被橱柜遮挡住的地方,用一般的砖(商家也给起了个好听的名字,叫隐蔽砖。),这是通用的厨房贴砖法。 可不能小看这个差价,以这个厨房为例,铺贴面积是20平米,如果全用小条砖(每平160元),那砖就是3200元,这还没算贴小砖瓦工师傅收费也高,但如果只在裸露的地方贴这款小砖,那就是6平米,砖钱948元+隐蔽砖840元(60元一平,30*60公分的规格)=1788元,能省接近一半呢。 中岛台。厨房增加了中岛台,长度1.1米,宽度44公分,内部是方正的箱体,可以放锅一类的大件。岛台高度与其他柜体一致,都是88公分。2公分厚的台面连通起来,覆盖所有地柜,看起来很整体。 家政区。高柜区域,嵌入两台洗衣机作为家政区,这样下班回家做饭时也能把衣服洗了,家务动线最为节省。



设计亮点
空调内机放厨房。得益于开放式厨房,中央空调的内机可以放在厨房顶部,不会影响客餐厅的高度。 房子的层高是2.67米。市面上最小的空调内机,长70公分,宽45公分,厚度是20公分,那么吊顶的高度最少也要做25公分(留5公分给安装空间和吊顶龙骨)。 本身厨房也必须要吊顶,藏油烟机的管道,也需要至少25公分的厚度,把中央空调内机放进去,一举两得。
软装搭配
餐厅紧挨中岛台,餐桌椅都选用了复古样式,致敬轻法式。吊灯与吊顶,是呼应的,都有弧形元素。整个客餐厅+厨房的地面,通贴了60*120cm的灰色哑光砖,同色砖缝处理。









设计亮点
次卧的黑框玻璃,用的铁艺方管(2.5*5cm)做外框,夹长虹玻璃(5+5毫米双层夹胶玻璃),在玻璃上贴半圆造型(1.5*1.5cm)。开窗尺寸:长2米,高1米。 厨房的窗户,用铁艺方管(2*4cm)做外框,顶部做半圆造型。两扇平开窗,打开可以与客厅的家人交流,同时也能通风换气。 新建弧形墙洞,兜住走廊储物柜。柜子宽度2.3米,进深60公分,储物量为3.54立方。
软装搭配
法式元素:厨房和次卧开窗,都用了半圆造型;中岛台上方的壁灯,餐厅和客厅吊灯;石膏灯盘,这些都是法式元素的点缀。






设计亮点
主卧的法式味道更浓一些,体现在墙上的石膏线条,衣柜门把手、壁灯和床头造型。 主卧和次卧,都铺贴了实木复合地板,人字形铺,单片尺寸:50.8*127*1.5cm。 主卧衣柜,宽度2.7米,高度2.5米,储物容积:4.4立方米。分为上下两部分,下部分柜门高频开合,配拉手;上部分低频,配反弹器。




设计亮点
次卧为多功能,平时做书房,父母来了变卧室,所以配了推拉床。 次卧的隔窗,是不能打开的,只能透光,配了实木百叶帘,有人临时居住时,放下来增加私密性。






设计亮点
卫生间色调主打温馨,融入墨绿色来形成对比。壁龛是双向使用的,两面开洞,一面朝向淋浴区,另一面朝向马桶。 卫生间门后,屋主的专属面膜存储柜。 淋浴区地面,留了一圈4公分宽排水槽。洗澡的时候,大量水会先流到四周的槽里,再奔向地漏,而不会聚集在脚下,很干净。这样的地面需要由石材厂家去加工成成品,再运到现场安装。这样1平米见方的地面,3000元以内能搞定。 卫生间选了一面主题墙,铺贴了7.3*30公分的绿色手工小砖,是进门的第一视觉焦点,配合顶部预留的暗藏灯带,黄色的光撒在砖上,颜色会发生变化:由绿色变为黄绿,很漂亮。 -end- 案例介绍完毕
软装搭配
设计机构丨JORYA玖雅 施工丨玖雅工程团队 材料丨玖雅材料搭配师 摄影师丨查苏 编辑丨玖雅文丰 设计面积丨60 ㎡ 房屋位置丨北京海淀学院南路
