设计亮点

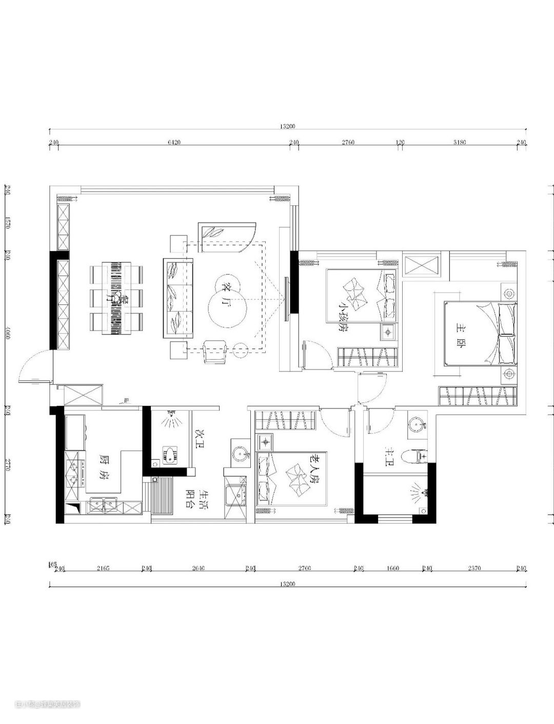
平面布置图 本案以现代简约风为主,追求现代与潮流,注重居室空间布局与功能使用的完美结合,让稳重内敛的气质与优雅精致的格调并置融合,着力展现雅致空间的艺术感染力,打造简约舒适的居住场所。
玄关

简约的玄关柜,成为进门处的第一处收纳区,定制的浅咖色玄关柜底部抬高,方便进出门收纳换鞋,中间镂空设计,随手摆放小物品,方便实用,搭配嵌入式感应灯带让整个空间轻盈优雅起来。
客厅



设计亮点
客餐厅采用横厅设计,涂刷白色乳胶漆浅灰色瓷砖,空间视觉效果显大,圆形吊灯加上金色边框,展现出简约又高级的质感,沙发背后采用木质餐桌,自然有活力,靠墙一面做全墙灰色餐边柜增加收纳空间,浅灰色无拉手柜门简约大气,整体看起来开阔整洁,超大落地窗选用白色纱帘,垂感轻盈飘逸,线条优雅,层次丰富,明亮的光线,宽阔的视野,赋予美好的想象。
厨房

设计亮点
厨房顶部选择铝扣板吊顶加上浅灰色瓷砖,整体宽敞明亮,白色无拉手吊柜简洁大方,地柜浅咖色柜门加上黑色线条点缀,高级耐看,嵌入式电器节省空间,给人精致舒适的烹饪环境。
主卧

设计亮点
主卧涂刷奶油色乳胶漆,整体空间清透又显温馨,石膏线吊顶搭配云朵形状圆形吊灯,整体搭配和谐统一,简单温柔,深棕色窗帘搭配白纱,充满质感。
次卧

设计亮点
次卧整体黑白灰色调,通铺浅灰色瓷砖,简约耐看,旁边定制白色衣柜+床头柜一体设计,方便实用,搭配黑色线条拉手,简约的设计充满高级感。
卫生间

设计亮点
卫生间选用长虹玻璃搭配黑色边框隔断空间,达成干湿分离,灰色悬空浴室柜底部悬空位置可以摆放物品收纳,方便打理的同时空间利用率高,开合式镜柜收纳整齐,拿取方便,搭配灯带设计简约耐看。
