



装修后
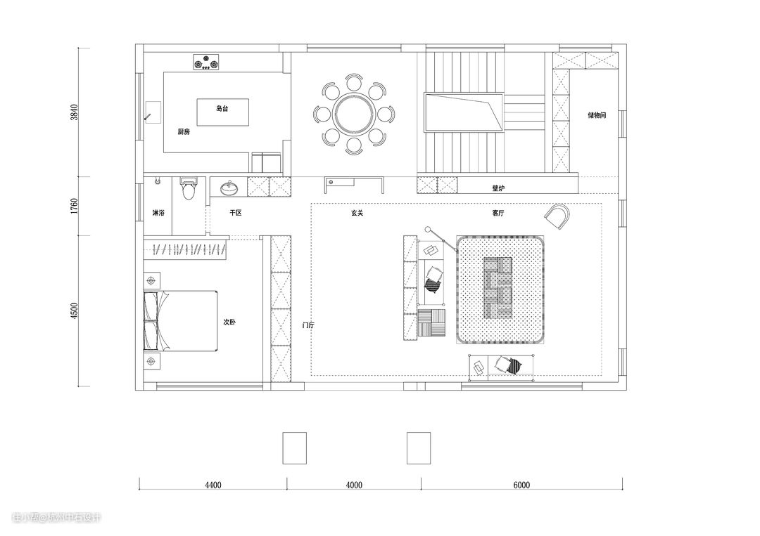
1、玄关位于客厅和卧室中间空间,封闭后没有直接的自然采光,我们设计了开放式玄关。 2、一楼只有一个卫生间,利用公共区域增加客卫台盆区,进行了干湿分区。 3、主卧设计了一个衣帽间,解决了卫生间门直对床问题,同时改善主卧狭长布局。 4、规划设计加入华为全屋智能1+2+N解决方案,紧跟智能家居趋势,打造高品质的居住环境。


设计亮点
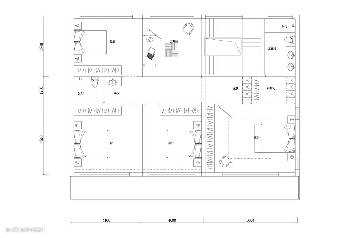
华为全屋智能解决方案 ,1+2+N(1个智能主机+2个核心交互 +N个子系统)覆盖家中各个角落,轻松解决全屋智能。 只能中控屏S2 + 智慧生活 App,可以伴随系统算法的升级与机械学习不断进化,实现“让房子越住越智能”。不再是单个的智能产品,而是以全屋灯光、电动窗帘、监控安防、网络覆盖、影音系统、背景音乐等十个子系统来打造全屋整体的智能解决方案。 全屋智能最先需要解决的就是信号覆盖问题,特别对于别墅,网络的全覆盖是很难稳定,华为将PLC电力线载波技术用于全屋智能,可以通过每个灯、窗帘上的线进行通讯,实现家中“有电就有网”的超稳定链接。


设计亮点
玄关侧边悬空造型和几何开放格相结合,承担着收纳鞋子衣物,增加空间利用性,根据生活习惯细致的划分。玄关正对部分采用了玻璃砖隔断阻挡部分视线,避免一眼直观餐厅,同时没有做完全的封闭隔断,保证了空间的采光性,通透又好看。
软装搭配
入户玄关区放置了智能主机,智能主机是华为全屋智能的“大脑”,是接收指令并指挥全屋设备打造相应场景的重要角色,连接 384 个智能化设备,别墅也能轻松覆盖无忧。采用高级铝合金一体化冲压无缝成型,阳极氧化工艺的表面处理技术。全屋 Wi-Fi 6+,全屋无死角覆盖,断网也可以轻松使用。 智能家居方便日常生活的第一步就是智能门锁的选择,屋主选择了华为智能门锁pro 。别墅的门厅位置容易受外面天气的影响,曝光和视线昏暗的情况常有,AI 3D人脸识别2.0解锁准确又方便,特别是回家手上有快递的时候,人脸识别轻松解锁开门,同时关门能自动上锁。 1080P 高清猫眼,150° 超大广角,离家时随时可以通过手机远程查看门外画面,异常逗留智能抓拍直接上传云端,安全感十足的同时智能化也让生活更加便捷和高效了。






设计亮点
本案是在杭州郊区的一栋两层自建别墅。本案屋主是一对年轻的夫妻,夫妻双方都是互联网的工作者,日常的工作比较忙碌,快节奏的生活中,“松弛感”成了奢侈品,回到家想要更便捷的、更舒适。因此屋主理想的家优先考虑的就是智能家居,我们推荐了华为全屋智能解决方案,轻松解决全屋智能。 屋主想要舒适,开敞通透,与自然环境融为一体的舒适家居环境。和多数年轻业主一样,他们爱好广泛,旅行、烹饪、绘画都是可以让生活快乐起来的发条。因为有着自己独特的艺术审美,整体风格上融合了原木、法式、现代多重元素,空间装饰丰富而多元,舒适而又温馨。
软装搭配
华为全屋智能智能中控屏S2全面屏的设计,铝合金一体后壳,造型简约,搭配墙面磁吸支座高级感满满。还可移动,还可以个性化定制场景~呼唤“小艺管家”也可控制全屋智能设备,孩子和长辈也能快速便捷的使用,贴心“管家”24小时随叫随到。 客厅电视选用的华为智慧屏S3 pro ,4K+120Hz的高刷无边框的大屏,流畅度和稳定性也是一流。4K 旗舰主芯 + AI 视觉芯片,通过Al技术加持不同声道的极致体验,立体声环绕感更沉浸,在家也能享受影院的效果。客厅边落地窗的采光比较好,光线也比较强,AG 防眩技术减弱光线照射屏幕对画面的干扰。 首款通过德国莱茵 TÜV Youth Care 认证,为以后家里孩子考虑,全面呵护儿童健康成长。通过摄像头捕捉屏幕前人物,可以进行坐姿和距离提示,培养孩子良好观影习惯。同时可远程控制,有效防止孩子观看时间过长。 不仅是宅家观影,华为智慧屏S3 pro还可以搭配健身还是唱K、玩游戏多功能,在忙碌的生活中寻找最舒服的节奏。


设计亮点
大理石的圆桌柔和同时省空间,围绕着圆桌形成的洄游动线。餐厅顶部呼应做了内凹圆形吊顶,搭配蚕丝吊灯的优雅浪漫。楼梯一旁放置了成品的餐边柜,也可供屋主他们摆放咖啡机,也能做水吧台使用。

设计亮点
厨房设计成U型布局,居中设置大岛台,延展操作台面,上面能用餐,下面可以做收纳。奶油色瓷砖不仅颜值高也使整个厨房显大且通透,橱柜用了回字形柜门+金属拉手,丰富层次的同时还很有精致的复古感。

设计亮点
卫生间是明亮干净,简单温馨的奶油色色调,用干湿分离设计简洁大方,玻璃移门做隔断,视觉上通透不压抑。干区的浴室柜右侧做了一组到顶的收纳柜,可以放置日常生活用品。

设计亮点
客卧整体色彩比较沉静,让身心都放空下来,更容易轻松入眠。背景墙搭配了PU线条进行修饰,床品和窗帘都选的是很温馨的低饱和度的颜色,打造简洁舒适的居住体验。




设计亮点
二楼楼梯旁边的一块公共区域,用到了小型沙发,懒人椅坐垫围坐到一起形成开放的休闲状态。一侧墙壁还有半墙窗户,采光和观景都超有氛围,可以作为阅读角、休息区。
软装搭配
晚上通过二楼的休闲区需要反复来回开关灯,华为全屋智能 AI 超感传感器能精准人体位置感知,智能开启灯光,同时可以做到灯随人而开,无人空间时自动熄灯。当人不在空间里时,照明、冷暖、影音等耗电系统会自动关闭,对于别墅来说是高效节能的。 小区域支持自定义场景联动,华为Al超感传感器可以基于人体呼吸胸腔毫米级微动,当感知到家里有人熟睡时,会自动开启夜灯模式,不打扰家人睡眠休息。 搭配智能 MINI,机身非常小巧且有内置电池,不用布线就可以随处放置,随处贴,随处控。可以用智能中控屏 S2上设置好场景后,智能MINI轻轻一按,可以一键直达自己喜欢的场景。

设计亮点
屋主的孩子还没有出生,考虑到儿童房也是需要“成长”的,我们硬装没有过多的设计,放置了一些活动的成品家具,灵活摆放来预留出成长可变空间。
软装搭配
华为全屋智能AI超感传感器在夜晚孩子起床去卫生间的时候,它能主动开启夜灯模式,引导孩子进入卫生间,AI超感传感器能够精准感知房间的人体存在状态,当孩子离开之后就会主动关灯。让儿童起夜更加安全,让家长多一份放心。



设计亮点
主卧与衣帽间、主卫形成套间。床尾整墙的衣柜,卧室满满的收纳空间。主卧简洁的装饰糅合人字拼木地板后,清爽中增添温润。暖色调的应用营造出柔软宜人的空间感,视觉的协调不仅是简约的、素雅的格调,也体现了屋主的放松,舒适的家居居住状态。

设计亮点
主卫通透的玻璃隔断和亮面的大镜面来增强卫生间的空间感,双台盆原木色浴室柜让人眼前一亮,抽屉和大台面空间的设计,让卫生间的日常收纳更自由,整体简约精致又不失高级感。 智能家居不再是单一的功能,华为所打造的全方位、沉浸式的场景体验,才是真正的全屋智能!提高居家幸福度和归家的仪式感,未来的科技不再是遥不可及,而是融入生活的舒适化。 #未来家智造计划
