
装修前
业主一家三代同堂,孩子上大学了,夫妻俩决定把位于成都市中心老小区的一套套三房子重新装修出来,提升一下生活质量。 男主人经营着一家企业,平时工作繁忙,希望回到家能得到放松,同时为家里增添更好的设备,保障家人的舒适度;女主人爱好时尚,喜欢家里有设计感。 老旧二手房的改造,更重要的是功能的提升,在基装中加入更高质量的设备设施,给家人更舒适的居家体验。 通过深入沟通,我们用浅色调营造明亮宽敞空间感,用简约而富有线条感的造型,来丰富细节,为家人提供温馨的环境。
装修后
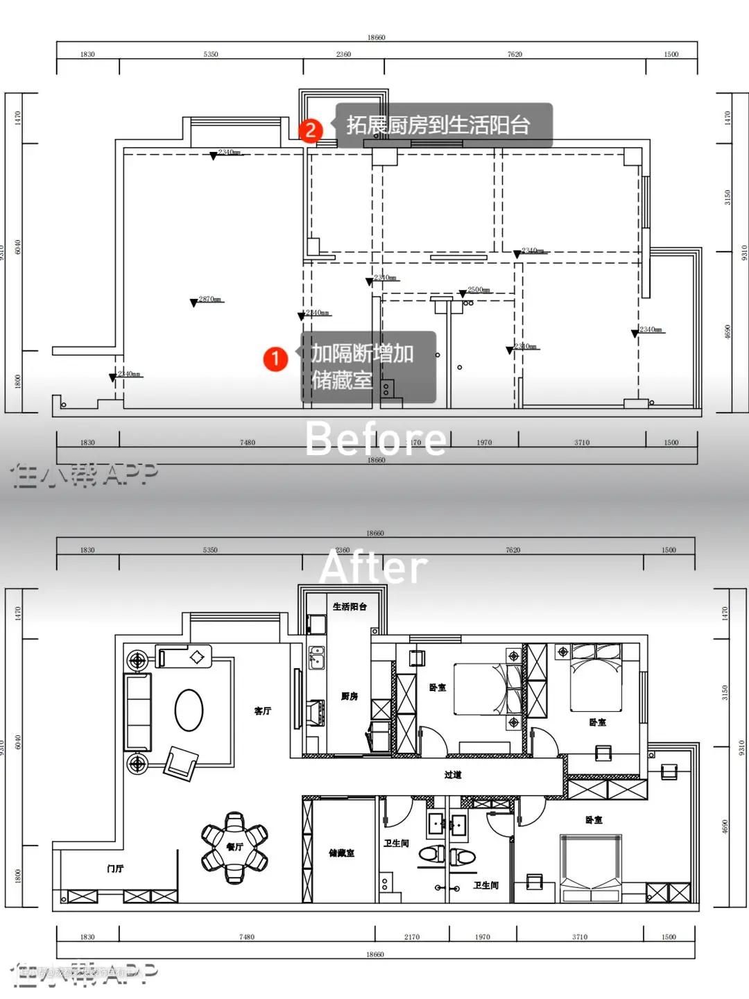
原户型邻侧双面采光,采光通风效果不错,为拓展厨房面积、增加储物空间,我们做了以下整改: 1.将餐厅区域用柜体隔出一个储藏室,集中收纳杂物,满足一家人的储物需要; 2.厨房和生活阳台之间的隔断打通,拓展厨房空间。


设计亮点
原门厅走廊长度1830mm,为增加收纳,将玄关柜长度拓展一倍,在门厅和餐厅之间用展示柜做屏风,起到遮挡视线的作用。也让入户仪式感倍增。 玄关柜做三段分区,靠近门口位置做挂衣区加矮柜,方便坐着换鞋。 中间柱头同色硬包,挂穿衣镜让空间更显明亮。 到屏风区域做鞋柜,无拉手的柜门,到顶设计,嵌入灯带,让墙面变得层次丰富。 转角开放格,用长虹玻璃作背板,透光不透影,为空间增添了轻奢气质。
软装搭配
开放格中摆放精美的收藏品,为入户空间提供了精致感与美观度。






设计亮点
通往卧室区域的走道垭口,做成拱形,让空间更显高挑修长。客厅和餐厅分布在走廊两侧,对称布局的电视墙和餐边柜,和谐又协调。 客餐厅顶面用黑色磁吸轨道灯装饰,在浅色主调中勾勒出鲜明的线条,起到链接功能空间的视觉效果,让家更美观。 沙发墙上方吊顶中嵌入空调设备,打造四季如春的体验感。
软装搭配
四座直排沙发与一个单椅,做围合布局,营造更温馨的沟通氛围。 绿植点缀空间,丰富空间色彩层次感,带来生机与活力。





设计亮点
餐厅被玄关屏风和餐边柜围合,成为一个半开放空间,就餐更有仪式感。 餐厅顶面边吊吊顶里嵌入射灯,丰富墙面光影效果;原始顶中用线型灯带加上一排射灯,多层次烘托氛围感。 餐边柜也做了分区设计,深色玻璃门展示柜、开放格和无拉手柜门抽屉,相组合,既满足不同的收纳和展示需求,又丰富了墙面表情,为空间增添灵动活跃的气质。
软装搭配
圆形餐桌搭配撞色软椅,整体如花朵造型,寓意幸福生活如花开放。 墙面悬挂装饰画,让空间的色调更为丰富,更显设计感与个性化。



设计亮点
厨房用双开玻璃门和走廊相隔,白色细边框的吊轨玻璃门,无地轨更显空间通透;客餐厅的大地砖对缝铺贴到厨房,整体性更好。 厨房内打通厨房和生活阳台,阳台的下水管用植物装饰遮盖,获得更宽敞明亮的家务空间。 厨房配色以白色为主,搭配黑色烟机灶具和家电设备,对比鲜明,科技感十足。
软装搭配
阳台处管道用麻绳和绿植藤条缠绕,不仅遮挡住丑陋的管道,还起到了很好的装饰作用。




设计亮点
卧室地面铺设原木色木地板,与整屋简约风格相搭配。 卧室顶面用满吊顶,墙角做弧线造型,用柔和的线条为空间增添温馨氛围。 床头背景墙被嵌入吊顶中的灯带渲染,让卧室的光影效果更温馨浪漫。 卧室到主卫的墙面用玻璃做隔断,空间更显通透。 主卧阳台区域做定制柜,增加收纳空间,白色到顶柜门与墙面一体,延伸到床头节省了床头柜空间,同时兼顾墙面的装饰性。
软装搭配
摆放暖色调的装饰画,与整体色调一致,营造温馨又具有艺术性的空间氛围。 床头摆放一盏小台灯,为夜晚的照明赋能,方便日常使用。



设计亮点
卫生间淋浴区和马桶区之间用玻璃隔断相隔,保障空间感又起到隔水作用。 浅灰色瓷砖通铺地面和墙面,顶面用防水石膏板代替传统铝扣板,嵌入射灯,天花板平整又美观。 浴室柜用一体成型的陶瓷盆作台面,表面无缝更方便打扫卫生。
