



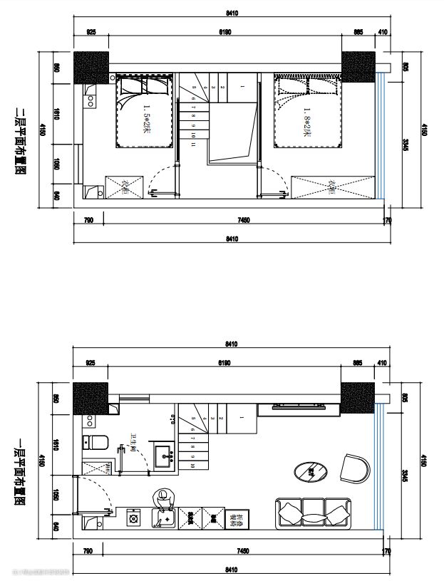
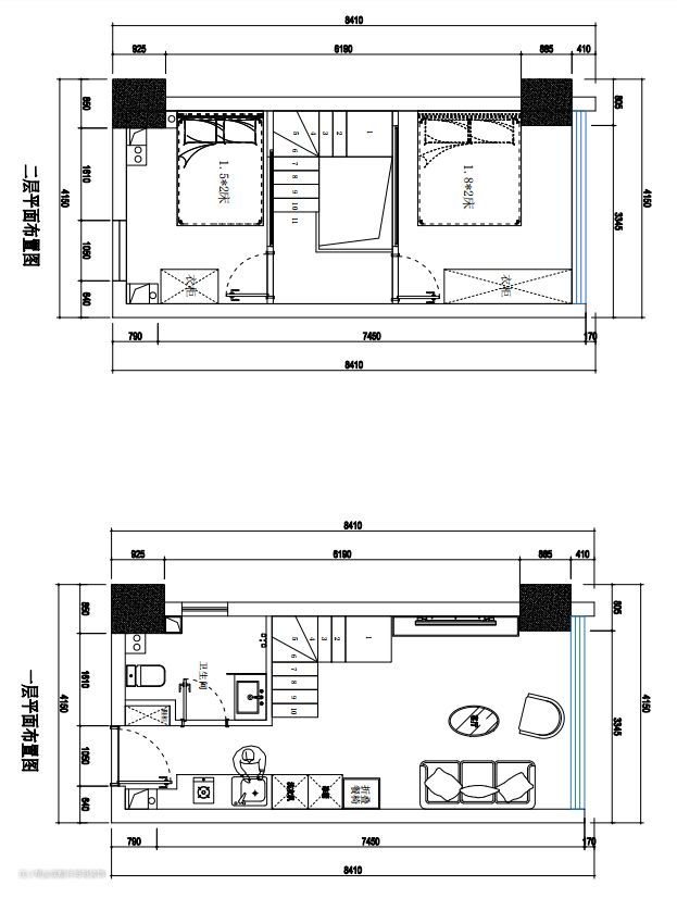
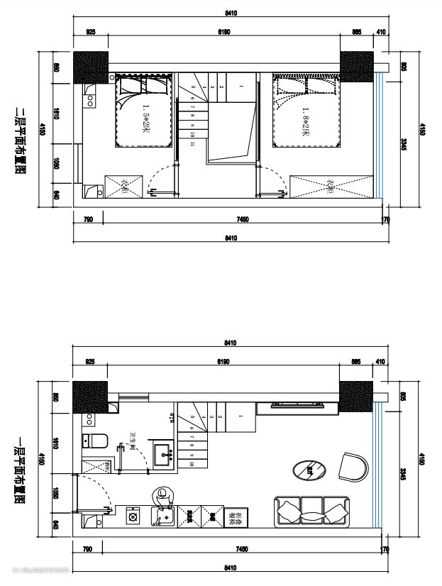
本案loft公寓案例是位于成都新都区•源上湾映江南,建筑面积41m²,套内面积30多平米,层高4.2米,净空高度4.05米。长宽尺寸是8.41m*4.15m,拥有两面窗户采光通风,一面是整个全景落地窗户,另一面是小区域的窗户,可以满足卫生间和次卧室有采光和通风的效果,整体来说原始结构和现场实勘情况不错。 ❤装修前,就是一个空的房间,二楼隔层未搭建。 屋主想要保留两个卧室,希望室内不要暗淡压抑➡所以二楼隔层选择了中间挑空设计,钢结构镂空两边搭建,既能满足来两房的要求,又能让公寓空间感通透明亮。 ❤装修后,两个卧室,两层楼空间。 设计师按照屋主要求loft公寓拥有两个卧室,室内采光足够,层高带来的压抑感也有效解决。 ❣现在和我一起看看这套loft各个空间吧👇👇👇








设计亮点
本套loft公寓采用中间部分挑空的设计,没有满搭建,那样会显得压抑,生活舒适性也会差很多。所以对于4米左右层高的公寓来说,挑空设计往往是较好的选择。而对于部分loft屋主来说,二楼既要保留两个卧室,又要挑空,这需要满足前提条件:公寓长宽尺寸至少是3米*8米,这要才能拥有不大不小的挑空区域,室内空间设计才有意义。 另外,设计挑空区域,会搭配各式各样的灯饰,有经济实惠的吸顶灯、有浪漫温馨的水晶灯、还有各类造型万千、个性化十足的其他灯饰。







设计亮点
这套公寓楼梯最终选用L形楼梯连接一二楼,楼梯下方两侧都做了储物柜,将有限空间有效利用起来,整个房间也会更加整洁干净。 楼梯:木地板踏步+高分子扶手 楼梯踏步材质多样化,比较普遍的是木地板、瓷砖、大理石 公寓楼梯扶手常见的是:高分子扶手、实木玻璃扶手,当然也有橡木扶手、欧式风格扶手等等。 楼梯是钢结构楼梯搭建,花纹钢板+槽钢的搭配,后期做木基层再铺贴木地板,侧边呢石膏板封平,再刷腻子乳胶漆。 楼梯下方空间使用方法:空着什么都不做、做满满的储物柜、安装门做储物间、造景等等。



设计亮点
一楼入户空间,是镂空搭建的其中一边,阁楼下方布局是:左厨房+右鞋柜+卫生间+楼梯,功能布局合理齐全。



设计亮点
首先,一楼入户玄关,安装了通顶式的鞋柜,中间镂空35公分,方便放置包包、钥匙等物品。上方和底部多格化的储物可以满足日常收纳。颜色选用简约白,与整体风格相得益彰。 另一边柜子是楼梯侧边空间,为室内增加了不少储物空间。



设计亮点
厨房,在一楼,整体一字形布局,一整排吊柜+地柜+嵌入式洗衣机,门板天蓝色高光板,色调简约干净,很舒适~~








设计亮点
客厅在一楼另一边搭建的阁楼下方,开放式设计,拥有窗户,室内采光效果真的超赞。一面墙做电视区,另一面放置沙发,整个房间墙面涂刷简约白乳胶漆,简单利落。一楼是整体铺贴瓷砖,使用年限更长久,视觉上也更耐看。






设计亮点
二楼主卧,选择在靠窗的位置,采光效果很赞,拥有1米8休憩区+床头柜+通顶式衣柜,基本功能完全满足。卧室侧边没有选择砌墙,而是全景玻璃推拉窗,可以很好的改善室内采光通透感效果,让次卧室和一楼也能享受不错的采光感。






设计亮点
二楼次卧,在里面的位置,拥有一扇小的窗户增加采光,基本功能和主卧一样可以满足。卧室侧边同样推拉窗设计,房间的采光感超喜欢~~







设计亮点
二楼过道,保留一米的宽度,侧边扶手和楼梯扶手一致,高分子扶手设计,经济实惠又耐看。二楼整体木地板铺贴,自然干净,舒适感更好。




设计亮点
卫生间在一楼,里面空间:悬空浴室柜+淋浴区+马桶区,墙砖、地砖铺满,防水做了两遍,整体防水防潮效果很好。
