3D全屋

方案解析
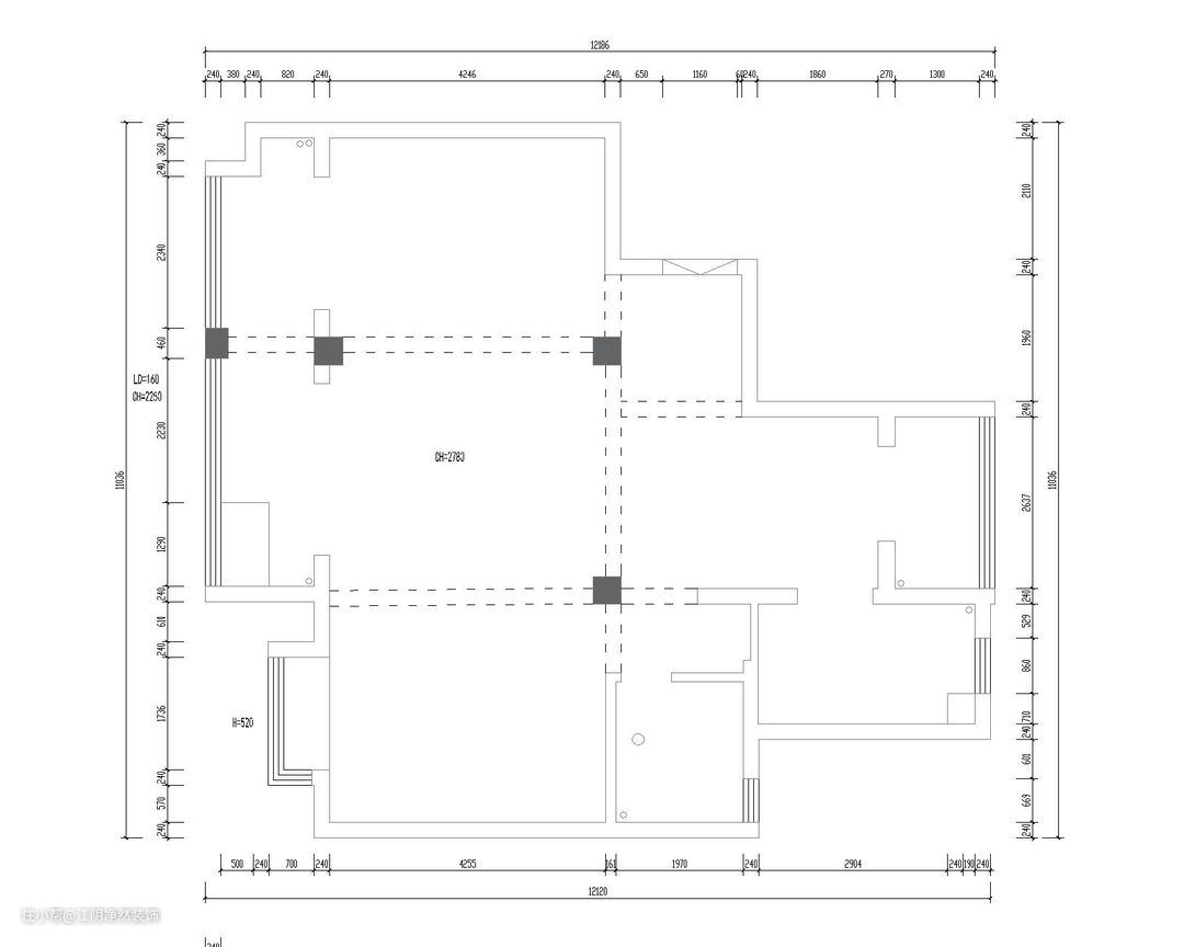
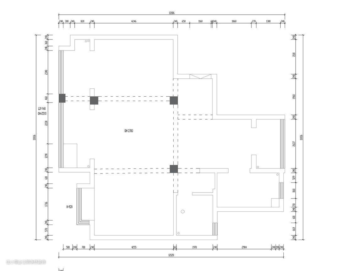
原始户型最大的问题就是餐厅狭小,阳台两边承重墙不能敲。我们设计时把厨房那边的非承重墙打掉,做开放式厨房,增加餐厅的空间,同时把冰箱移到在阳台的高柜里,与承重柱齐平。

玄关

进门玄关左手边是挂衣区加上下柜的组合,沿着墙体做了一个转角的延伸,餐边柜和鞋柜相连。
餐厅

为了开通天然气,特地做了折叠移门,平时只要收好移门,就是一个宽敞的开放式厨房了。
客厅

用木饰面包裹承重柱,用玻璃屏风做隔断,既美观又保护隐私。
厨房

阳台A

洗手台+电器高柜,重复利用小阳台空间。
主卧

次卧

阳台B

卫生间

