
装修前
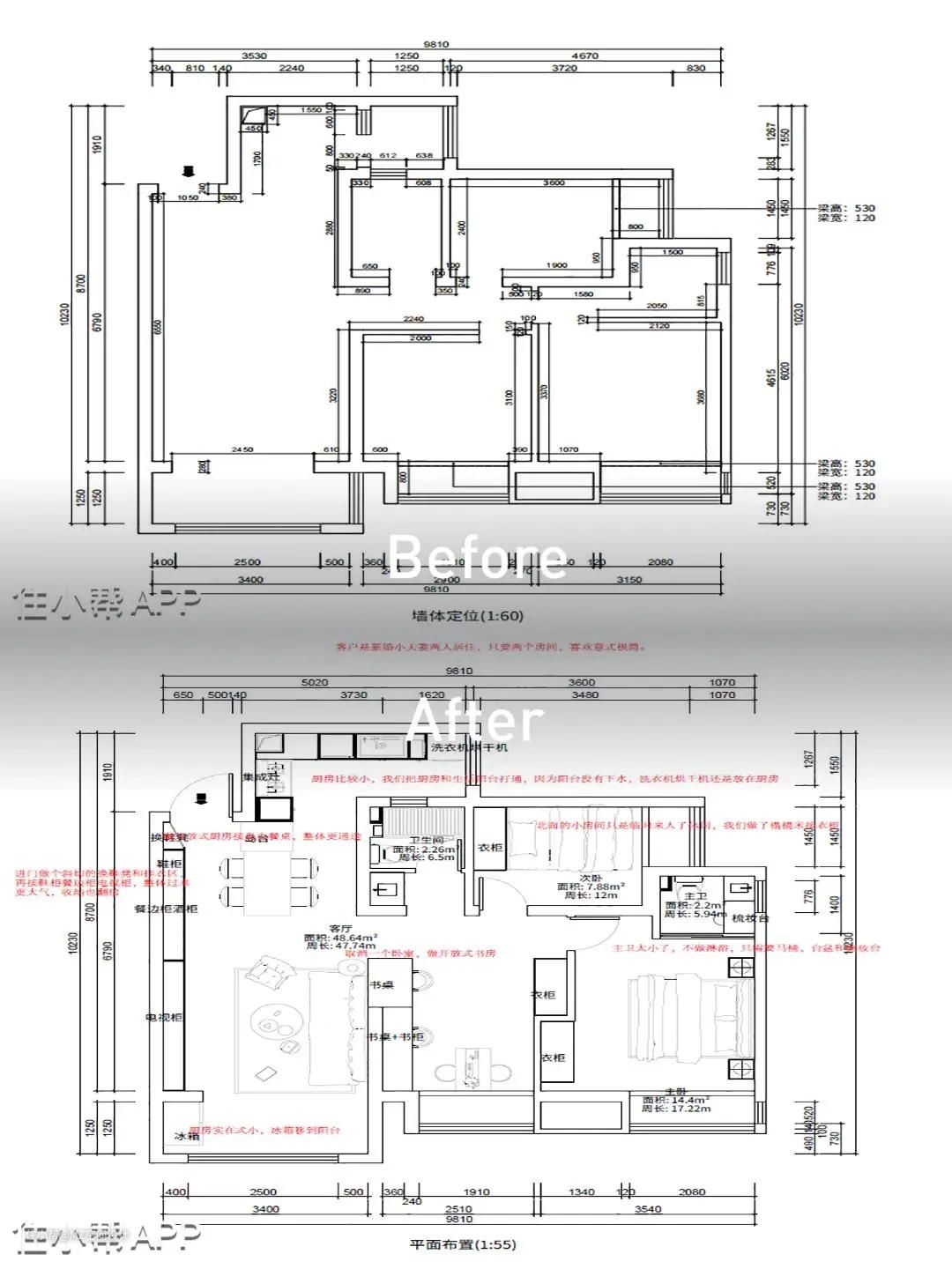
客户式新婚小夫妻,就两人居住,只需要两个房间,喜欢意式极简。原来户型的厨房太小了,生活阳台也就一点点很是鸡肋。主卫也是很小,做不了淋浴。进门的位置比较挤,鞋柜做不了。
装修后
我们把厨房和生活阳台打通了,冰箱也移到了外面,煤气灶也选择集成灶,这样厨房可以更加的宽敞。因为阳台没有下水的,洗衣机和烘干机就只能放厨房了,冰箱也就移到了阳台。平时也不烧饭,厨房做开放式厨房接岛台餐桌,整体更加的通透,客餐厅的互动性也更好。客户想要一个开放式的书房,我们取消了南面的卧室,挨着承重墙做了悬浮书桌,整体也是木饰面包过来做,更加整体大气。北面的小房间比较小,平时一般也没有人来,就只需要一张小床和衣柜,我们选择了榻榻米床头接衣柜,增加收纳。主卫拆墙做移门,不用淋浴,改为马桶台盆接梳妆台,方便日常使用。主卧的墙体拆除做S墙,里外都是做衣柜,增加收纳。阳台拆除非承重墙的部分,和沙发背景做一整面的木饰面。









设计亮点
客厅和阳台整体打通,只留下承重墙的部分。进门一整排柜子一直延申到阳台,整体收纳翻倍,整体大气。南面的次卧不要了,改为开放式书房,挨着沙发的一截是个承重墙,书桌做悬浮书桌,整体木饰面包过来,整体更大气。





设计亮点
开放式厨房接岛台餐桌,整体更通透大气。





设计亮点
厨房和生活阳台打通,做开放式厨房。因为客厅阳台没有下水,洗衣机和烘干机还是只能放厨房了,冰箱移到外面阳台去,这样厨房就比较宽敞了。





设计亮点
主卧做S墙,里外都是做衣柜,增加收纳。


设计亮点
北面的小房间比较小,一般也没人来,做榻榻米,床头接衣柜,增加收纳。







设计亮点
主卫的墙体拆除做移门,本身也比较小,不需要淋浴了,改为马桶台盆接梳妆台,方便日常使用。



设计亮点
阳台和客厅整个打通,沙发背景做一整面的木饰面装饰。
