

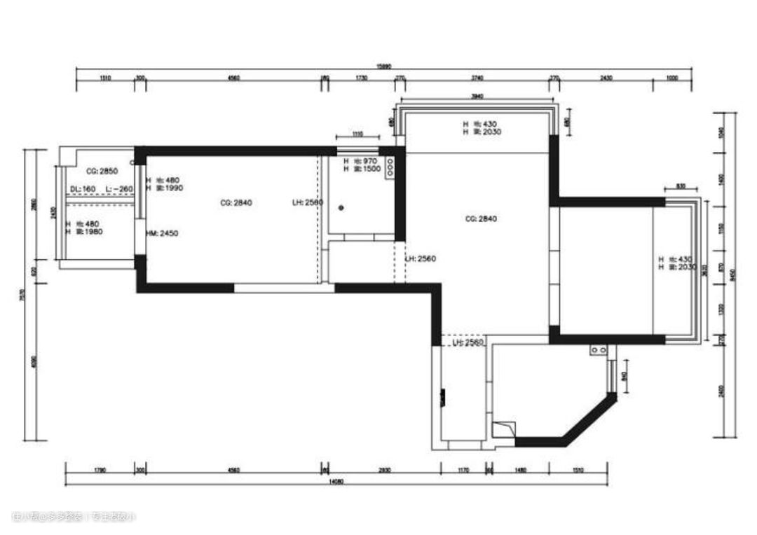
装修前
今天这套案例是一个三口之家的住宅,建筑面积为80平米,屋主很喜欢奶油风的色调和复古的设计元素,因此在本案设计中以新古典主义结合奶油色系碰撞出新的火花,喜欢这种风格的朋友可以参考哦!
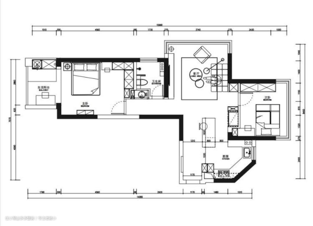
装修后
在空间上要求具有开放性,空间整体互动性要强,有充足的活动空间,设计师对原始房屋进行针对性拆改,让阳台、客厅、餐厅、书房成为一个空间整体但又不影响单个空间的功能性。

设计亮点
入户一排玄关柜连接室内与室外,这一缓冲空间,被有序的收纳巧妙安放,空间自由灵活,还保证了客厅隐私性。柜体中部开放格,随手扔手机、钥匙、纸巾等杂物,木与白的搭配,干净清爽治愈。门口换鞋区,铺设一块黄麻地毯,既美观,又防止了带入灰尘,舒适感提高了不少。




设计亮点
大道至简,简单的高级感,往往更能打动居住者,放弃复杂的装饰、技巧,保持空间的简单直接,让生活成为空间的主角。 步入室内,通透大气布局的客厅映入眼帘,客厅取消茶几,保留宽敞奢阔的无遮挡活动空间,狗狗们可以畅快奔跑,也避免老人摔倒磕碰的安全隐患。 没有花哨的色彩,以简单的奶油系配色,哑光大板砖,灰色皮质沙发,温柔了整个空间,构建了客厅的高级感;整面围合电视背景柜,收纳量称霸全场,确保公共区整体的干净整洁。 玻璃展示藏露结合,提高设计层次;沙发背景无装饰,适当的留白,给家更多想象的空间;拱形门洞走廊造型,营造温柔舒适的家居氛围。




设计亮点
餐厅、厨房、客厅,三者是完全打开的状态;彼此之间简单分隔,又相互流通,给家居生活最好的流动性,也给家人提供更好的互动交流空间。 靠墙安排简易却有格调的方形桌椅,岩板桌面,搭配几把木餐椅,轻易将居者拉进餐厅的暖意氛围里,让人想到鸡蛋的香,榨橙汁的甜,以及浓郁的生活气息。


设计亮点
厨房与客厅移门隔断,可以让屋主边做饭,边与家人互动;偶尔友人相聚,也可一起闲谈聊天。 二字型橱柜布局,提高空间收纳美学,也可延展厨房台面,操作空间更充裕,让生活有更多的可变性。




设计亮点
主卧,给业主夫妻最温暖舒适的私人休息空间,杏色奶茶主调,配色简洁大方,用业主的话来说,虽然很简单,但是很舒适。 对于居住者而言,卧室的简单是视觉感官的干净舒适;而对于设计师而言,高级的简单,是精准搭配设计的必然结果。 床头时尚大方,橘色猫头鹰壁灯的精心挑选,家具的排列分布,配色简单,又不至于寡淡,一丝一毫,都是设计师的小心思。

设计亮点
卫生间干湿三分离设计,洗漱区外移公区,更符合屋主一家的需求。水磨石的湿区带着点小个性,墙上还装了一个扶手,方便老人抓握,壁龛设计也增添了不少储藏空间。
