
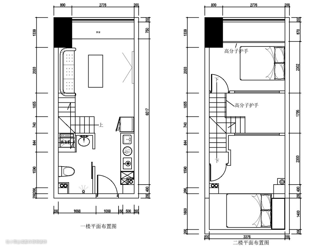
🔶🔸🔸🔶本案例位于成都成华区·龙湖梵城,建筑面积40m²,套内面积29m²,是一套长度为7.8米、宽度为3.7米,层高4.2米、净空层高4.05米的loft公寓,烟道在进门右侧,整个户型是一个长方形,即将打造两房两层楼的栖居空间,往下看继续揭秘 👇👇 ❣屋主要求保留两个卧室,窗边挑空不要满搭遮住窗户,喜欢现代简约风,后期自己住不出租,所有储物、空间细节上需要设计到位。根据屋主的设计想法和需求,设计师给出以下3点建议: (1):首先要留两个房间的话,阁楼钢结构搭建方案要选择满搭建还是镂空搭建,由于这套净空层高只有4.05米,为了不让空间感压抑,所以钢结构选择镂空两边搭建的方式,靠窗的区域挑空上去,阁楼没有延伸搭建; (2):楼梯,选择了Y字形楼梯,分别通往二楼主次卧,两个卧室的私密性更好,互不干扰; (3):空间布局上,决定常规化布局➡一楼客餐厨卫+二楼主次卧,功能全面,动静分明。






设计亮点
这套loft公寓中间挑空4米多的高度,两边设立生活空间,再搭配好看的吊灯,氛围感简单温馨、舒适~~







设计亮点
本套loft公寓Y字形楼梯连接一二楼,楼梯下方做储物,Y形楼梯侧边还可以和空间一起利用,很实用的一套楼梯设计方案。



设计亮点
入户空间,靠门左侧阁楼下方,包含厨房、鞋柜、卫生间三个功能区,满足日常空间使用,实用又方便~~






设计亮点
厨房在一楼进门右侧,和入户玄关柜在一边,一字形布局,一整排吊柜+一整排地柜,储物收纳功能超赞👍屋主选购了侧吸式抽油烟机,水盆是台中盆,旁边还有单开门的冰箱,柜门选择高光板材质,好看又耐用~~




设计亮点
客厅在一楼,开放式格局,沙发区、电视区、茶几区,功能全面。客厅电视背景墙选择和窗帘同色的乳胶漆,与整个空间风格完美契合,毫无违和感。 另外,飘窗台可以改造成日常休憩区,喝茶看风景都挺好~~靠窗位置并没有搭建阁楼,而是挑空上去,这样一二楼空间通透感感会很好,生活舒适性也提高了~~




设计亮点
二楼主卧室靠窗位置设计,摆放了1米5的床、成品衣柜,卧室侧边不砌墙,而是安装了全景玻璃隔断,靠窗位置挑空式加装了高分子扶手,基本功能满足,空间感也不错~~







设计亮点
二楼次卧室侧边同样是玻璃隔断,这样整个室内的采光效果会很好。榻榻米形式的床,做了台阶,可以有效节省层高,还拥有衣物放置的区域,空间有效利用了起来。






设计亮点
卫生间,在一楼进门左侧,新砌的卫生间墙体,拥有淋浴区、马桶区(墙排式马桶)、洗衣区、盥洗台,面积不大,但五脏俱全~~
