


装修前
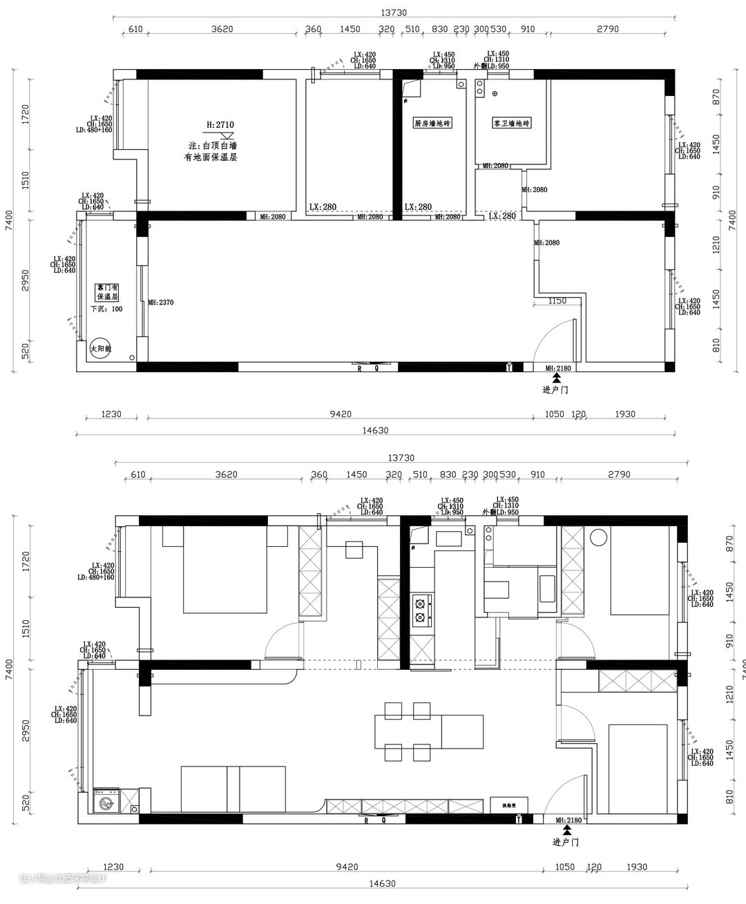
①主卧次不分明,功能分区不明确 ②竖厅导致室内采光稍差 ③厨卫小且窄 ④室内门相对集中
装修后
①客餐厅一体化 ②优化室内动线,更改室内门 ③厨卫适当借地,吊轨门开关不占地 ④主卧门外设开放式衣帽间兼书房




设计亮点
客厅阳台纳入室内,门洞局部改成了弧形,窗前只装了纱帘,即便拉上也不会过分影响室内的采光,整个客厅层高2.7m,局部吊顶30cm,对出风口做了加长处理,同奶油色系家具稍加布置,小角落也有了精致感。 不被定义的客厅不是单纯为了会客,而是为家人休闲提供了更多的可能,适当调整沙发方向,就解锁了另一种模式,偶尔还能根据自己的喜好任意调整。 考虑到家里有小孩,女主人舍弃了电视机,而是用投影满足日常需求,沙发墙做造型,长4.08m,连着餐边柜边角专门做了弧形过渡,均是师傅现场用石膏板打底做的。




设计亮点
从这个角度可以看到,入户即是餐厅,但为了保证进出的收纳需求,餐边柜和玄关柜一体化,才有了眼前的整洁清爽。 一侧高柜到顶,距离入户门宽度有1.54m,镜面上墙增加使用的便利性,柜体用的是莫干山生态板,柜门是混油的无把手设计,内部隔板可灵活调整,适应不同的鞋子高度,实用性毋庸置疑。 旁边就是岛台餐桌,岛台长800×宽1000×高935mm,一侧是双开柜门,另外一侧是抽屉,拿取便利,餐桌长1600mm,是可伸缩款的,逢年过节的聚会也会更便利,错层处装轨道插座,吃个火锅充下手机都没问题。


设计亮点
厨房拆除非承重隔墙,借矮柜适当外扩,用玻璃代替墙体,增加了视觉上的通透感,窄框吊轨门开关不占地,其内U型布局,橱柜顺墙延伸,移动动线流畅自然。



设计亮点
小次卧改成了开放式衣帽间,非承重墙面局部镂空,加上吊灯做点缀更显精致,门洞宽1.27m,高2.4m,临近的镂空处宽40cm。 开放式书房内高柜宽度为50cm,内部壁橱式收纳,靠窗前悬空柜长1.77m,收纳以抽屉为主,拿取便利,窗前装横状百叶帘,遇上天气好的时候在室内光影更美。



设计亮点
主卧床头背景墙整个长4710mm,乳胶漆做半墙,高度为1100mm,跟大部分家庭不同,用布帘代替柜门,深度为550mm,其上还专门留出了80mm宽的窗帘盒,细节相当到位。 床头不对称设计,一侧矮柜+吊灯,另外一侧是现场打的悬空柜,尺寸长60×高18cm,床头两侧记得提前预留好插座哟。

设计亮点
卫生间墙地砖对缝处理,双层悬空洗漱台收纳有藏有露,一体式的台面整体性和美观性都没得说,加上黑色的隐藏式水龙头,质感更上了一个档次,就连花洒都是精挑细选,专门选了带有置物台的,风暖装在干区……面积不大但细节周到!
