
装修后
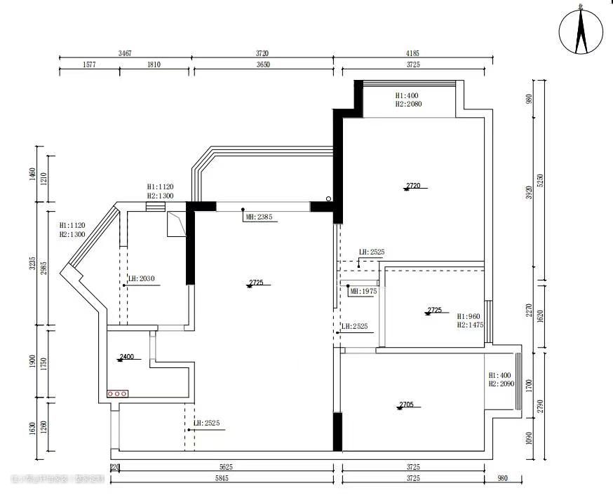
方案解析: 住了十几年的89平老房子重新装修,大体格局不改动,业主希望改变小户型窄小的问题,实现空间最大利用。设计师通过合理的空间布局、简单的线条语言和色彩搭配,勾勒出简单、舒适、自然的居家环境。 业主需求: 1.想要简单实用的装修 2.卧室通铺木地板,其余空间铺地砖 3.家里人比较多,想要提高用卫效率 4.厨房格局不规则,想要做到最大利用 改造思路: 1.全屋采用简单的软装线条,打造现代简约的装修风格 2.卧室铺木地板,营造温馨舒适的休息环境,客餐厅厨房铺地砖,方便日常清洁 3.拆除原本的卫生间格局,将洗手台外置,用墙隔断,大大提高用卫效率 4.厨房适应原有的格局,靠墙定制橱柜,呈四边形格局





设计亮点
单眼皮吊顶,主灯设计,在家居设计中,单眼皮吊顶和主灯的选择都是至关重要的元素。不仅能够提升家居的美观度,还能够创造出温馨舒适的氛围。 阳台客厅连通后,白色窗帘和杏色窗帘都是很好的选择,白色窗帘显得明亮简洁,可以让整个空间显得更加宽敞明亮。而杏色窗帘则显得温馨舒适,让整个空间更加舒适温暖。 三人位咖啡色皮质沙发和木质沙发背景,搭配同色系的茶几和一个白色大理石小茶几,增加了视觉上的和谐感。一张黄色单人小孩椅,非常的吸引人眼球。 整面大理石花纹电视背景墙,同样是大理石材质的一字型收纳柜,上方可摆放孩童的玩具,收纳功能满足。 站在客厅回望,客餐厅一体化设计,将客厅与餐厅合二为一,形成一个宽敞的公共空间。这种设计能有效提高空间利用率,使得整体空间更加协调美观。还可以加强互动性,提高舒适度~



设计亮点
依旧是主灯设计,明亮的灯光照下来,可以灵活调整灯光,打造一个舒适的用餐空间。餐边柜采用大理石材质,美观防水耐磨不易变形,还非常方便日常清理。 餐边柜中间挖空三分之一柜体,做为开放收纳区,电器、日常用品通通收纳,实现空间的整洁美观。 圆脚大理石半圆台面餐桌,搭配四张撞色搭配餐椅,少量金属元素加入,空间层层递进,体现空间的设计感和层次感。

设计亮点
厨房客厅仅一墙之隔,客餐厨动线十分流畅,呈现三角分布,空间分布更加合理化。 厨房空间十分窄小且格局分布不规则,于是适应空间特点靠墙定制四边形橱柜,让下厨动线更加顺畅,同时空间得到最优化利用。 琳琅满目的厨房用具和用品摆放在置物台上,石英石台面看起来十分美观整洁,集成吊顶灯和窗台自然光线,让小空间不在压抑,营造轻松的下厨环境~

设计亮点
边吊单眼皮加小筒灯,同样是杏色白色的窗帘,营造简约舒适的休憩环境。深浅不一的木地板满铺,有股清新自然的气息~ 中间对称的浅灰色床头,清晰的肌理体现高级感。舍弃床头柜,单边安装防护栏,保证孩子休憩时的安全性。浅粉色的乳胶漆背景墙,带着一丝童真。 下吊50cm安装嵌入电器,到顶的衣柜和吊顶之间贴合,卫生死角减少,右边挖空部分做挂钩,柜子同时满足多种收纳需求。



设计亮点
大儿童房无吊顶主灯设计,主要是通过采用金属边环形灯为空间提供照明,从而营造出一种温馨、舒适的氛围。 床头背景墙做悬挂收纳柜,满足孩子的收纳需求,梳妆桌代替了床头柜的功能,能够满足孩子的日常生活和学习需求,既实用又美观,非常适合孩子的成长环境。 窗户采用窗帘盒设计,可以有效地保护窗帘不受雨水和阳光的侵蚀,方便进行维护和清洁,同时能够增加窗户的美观度,使整个室内空间更加协调。 小儿童房定制了到顶收纳柜连接床呈L型格局,深色系的软装搭配,更加有质感。依然是定制不同形式的柜子,实现孩童不同的存储需求。
设计亮点
浴室柜、马桶、淋浴区在同一条线上,实现了三分离,设置了门槛石,将三个功能区明确的划分出来,实现空间合理分布。 浴室柜单独外置,洗手柜和镜柜半开放设计,共同为空间提供多种收纳,为淋浴空间缓解了储存压力。洗手盆安装在台面下方,水槽与台面齐平,视觉效果更好,清洁起来也更方便! 洗手台一侧还定制了到顶的收纳柜,中间空置部分做开放收纳格,平时的洗漱用品全部收入囊中。少量金属元素,提升了卫浴空间的质感。
