

装修后
【设计师:夏禹】本案业主为95后年轻夫妻,曾出国留学,现定居广州,这套房子是他们的婚房。男女业主需求比较明确,希望享受简单舒适的生活状态。业主喜欢法式复古的装修风格,但不喜欢太复杂的线条角花。 设计师选择轻法式风格,摒弃过于复杂浮夸的装饰,利用简约精致的法式线条,以墨绿色与胡桃木色作为主要基调,营造出浪漫复古的氛围和电影质感。 设计亮点: 一层: 1.采用开放式厨房设计,打通厨房和生活阳台,结合外侧的水吧倒台,形成了一个更加完整的操作动线。 2.公卫面积较小,取消淋浴区,同时将洗手台外置,优化如厕体验。 3.改变楼梯位置和形态,拆除阳台推拉门,从而在视觉上扩宽客厅空间。 二层: 改变主卧门洞位置,打通二层空间,扩大主卧面积,也能保障睡眠区的私密性。



设计亮点
原本通往二层的楼梯相对闭塞,设计师将楼梯调整为正对客厅区域,从而在视觉上扩宽客厅空间,搭配爱奥尼克柱式,让楼梯动线区域成为整个空间的一个亮点。 胡桃木面板的弧面设计有一定的视觉遮挡作用,而背后的置物架也是作为展示的空间,让这个角落如同复古电影一般将艺术气息定格。电视背景墙精致的雕花线条,与鱼骨拼木地板彰显浪漫的法式风情。吊顶做弧角处理,石膏装饰线条勾勒出复古浪漫,营造出独特的艺术氛围。 拆除原本休闲阳台的推拉门,利用拱形垭口连接客厅与阳台空间,空间过渡更流畅自然。同时利用地台将阳台休闲区抬高,形成错落有致的空间层次。
软装搭配
客厅沙发选择更休闲圆润的造型,形成以沙发为中心的环形动线,打造更加通透舒适的客厅空间。


设计亮点
餐厅与厨房利用岛台分隔,保持空间的独立性和连通性。岛台既可以作为西厨区,作为甜品、轻食制作的空间,也是就餐空间的延伸,可以作为吧台享受更丰富的生活场景。 业主对胡桃木情有独钟,墨绿色与胡桃木的结合,给整个空间镀上一层复古电影滤镜,身处其中,便成为了电影中的主角。


设计亮点
原本厨房空间较为狭小,打通厨房和生活阳台,让厨房空间不再局促,厨房的采光和通风也得到提升。 由于业主习惯使用电磁炉的烹饪方式,平时在家烹饪的次数也比较少,因此采用开放式厨房设计,结合外侧的水吧岛台,U型布局形成了一个更加完整的操作动线,也让客餐厨之间具有更强的互动性。 采用白色方块花砖拼接木地板,方便清洁打扫的同时,地面层次感更丰富,也赋予空间更复古摩登的气质。



设计亮点
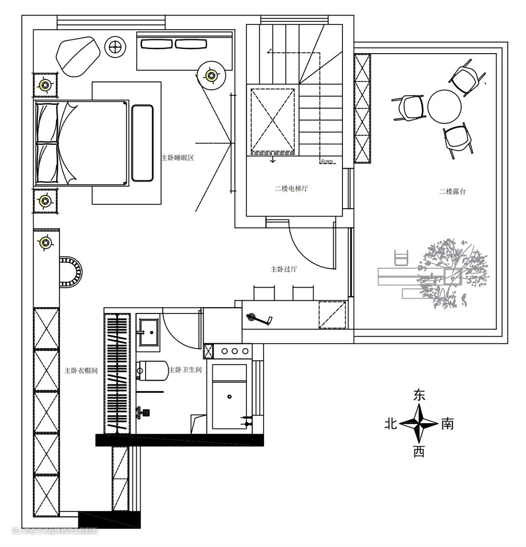
二层整个空间作为夫妻独享的区域,业主希望有宽敞舒适的卧室、学习办公区以及衣帽间。将二层区域打通形成一个宽敞、通透的大主卧,整体色系以暖白色调为主,散发出温柔恬淡的气息。背景墙与吊顶精致简约的线条,将法式的浪漫和优雅表现得淋漓尽致。 改变门洞位置后,主卧拥有更舒展的背景墙,有足够的空间设置投影屏幕,让睡眠区也成为专属观影空间,两个人的闲暇时光有了更多的选择。 将衣帽间与卧室打通,让业主拥有更宽敞舒适的衣帽间。白色的衣柜搭配小巧的拉手,凸显法式的精致。 衣帽间与睡眠区之间设置办公学习区,并利用玻璃作为隔断,隔而不断保持通透感和独立性。过厅设计了另一个办公区域,让两位业主都可以拥有独立的办公学习空间。



设计亮点
主卫淋浴间墙面选择花草图案的花砖,与简约的黑白主色调形成反差,碰撞出绝美的复古格调。靠窗一侧增设浴缸,给生活加一点情调,将喧嚣隔绝在窗外,独享一方宁静惬意。旁边设置浴室柜和壁龛,根据户型结构合理利用空间,绝不浪费每一寸空间。 公卫取消淋浴区只保留马桶区,在墙上设计壁龛,充分利用墙面空间。同时将洗手台外置,并增设洗衣区,即使有人使用马桶区也不影响其他功能区的使用,生活更便捷高效。而拱形门洞的设计,让空间轮廓更柔美,空间过渡更流畅和舒展。

设计亮点
次卧将飘窗的一部分改造为书桌,提高整体空间的利用率,也让学习、阅读的区域拥有更充足的光线。

设计亮点
将一层其中一间次卧作为书房,吊柜与悬浮式书桌的设计增加空间的轻盈灵动感,浅色调配色让空间的呼吸感和通透感更为突出。


设计亮点
二层露台是属于业主的秘密花园,利用木质元素增加自然粗犷的质感,卡座设计可以提供充足的座位,给业主和亲友们一个舒适自在的聚会空间。 另一侧靠墙设置洗手台,聚餐时清洗食材、餐具更便捷,也为露台提供所需的收纳空间。
软装搭配
选择带有藤编元素的椅子,散发出独特的自然美感,透气舒适的同时也更经久耐用。
