

装修前
我们的设计理念源于生活与艺术的交融。每位屋主都有独特的个性和审美,我们致力于打造出真正反映他们生活方式的家。我们不受流行束缚,以实用性和舒适度为设计核心,与屋主深入沟通,了解他们的生活习惯和喜好,以“量身打造”的方式为他们设计最适合的家。 在本案的木材选择与搭配上,我们根据屋主对现代简约风格的偏好,挑选了纹理简洁、线条干净的木材,以浅木色放大空间感,深色调木材则用于突出视觉焦点。我们严格控制木色和木纹的种类,确保整体空间既清爽又不失温度。
装修后
本案成功地将现代简约风格与屋主的个性需求融为一体。不同木色和木纹的巧妙搭配,为空间增添了丰富的视觉层次。浅木色与深色调的和谐共存,使得空间既宽敞明亮又不失沉稳与质感。 整个空间的设计既体现了我们对艺术和生活的深刻理解,也充分满足了屋主的个性化需求。









设计亮点
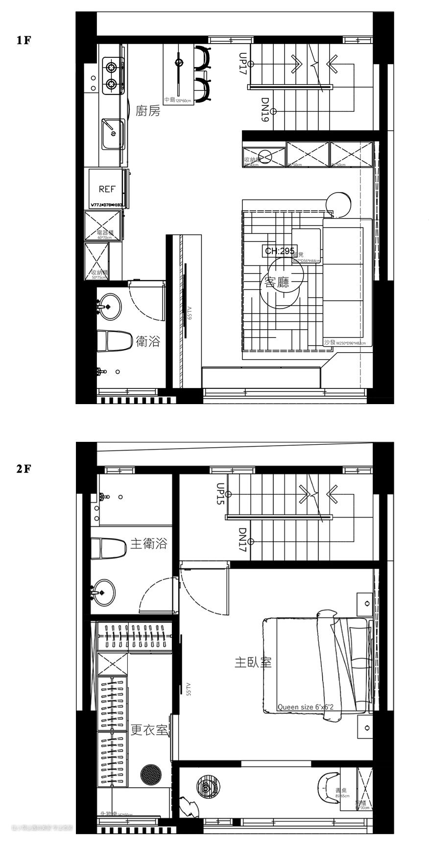
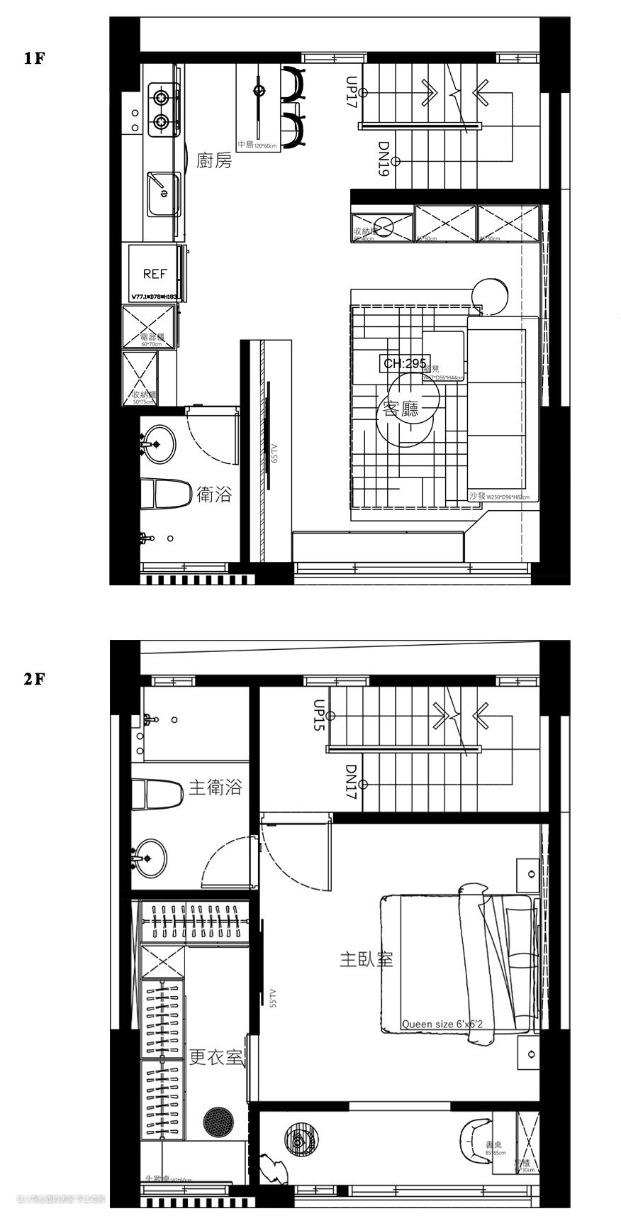
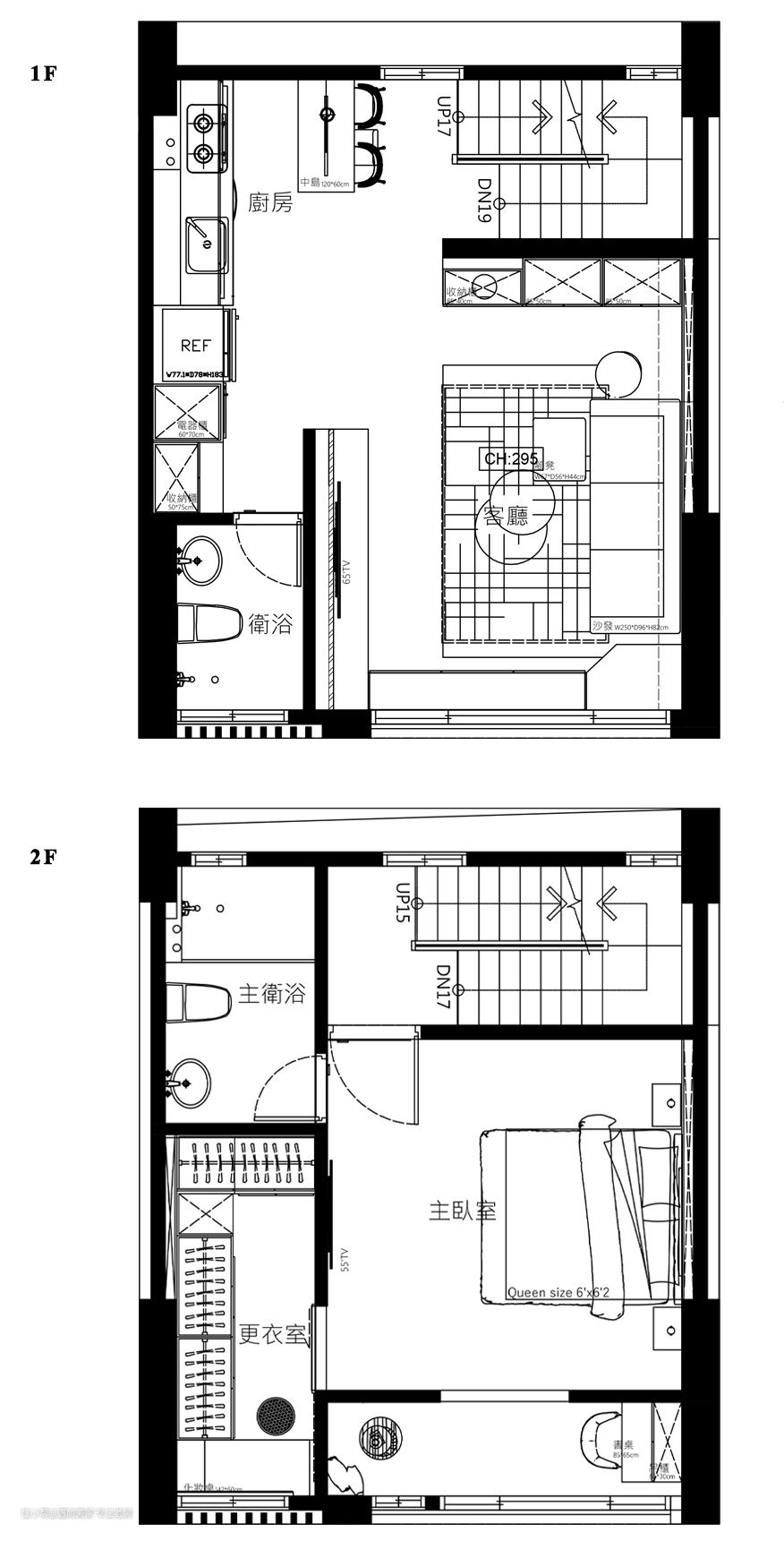
自然光与纯白墙面的巧妙结合,凸显出木质的淡雅气息,为室内空间增添了一抹温暖而宁静的色调,营造出朴实幸福的家居氛围。 电视机柜与窗边卧榻的连贯设计,不仅拓展了收纳空间,还丰富了客厅的使用场景,让空间更具功能性和灵活性。无论是周末的亲友聚会还是平日的休闲休息,都能得到充分的满足。 斜面收边柜体的设计巧妙地将沙发与卧榻连接起来,既考虑了风水因素,为屋主提供了摆放招财摆件的空间,又作为猫跳台的最后一阶,实现了空间的多重利用。 在有限的40㎡空间内,设计师巧妙地利用梁位走向和天花高低作为隐性界线,成功界定了客厅与餐厨区域,既满足了屋主好客又爱下厨的生活方式,又保持了空间的开放感和通透性。
软装搭配
在整体淡雅色调的基础上,通过软装的搭配为空间增添层次感和温馨感。选择质地柔软的沙发和抱枕,以及色彩柔和的地毯和窗帘,营造出舒适宜人的家居环境。 卧榻和沙发的选用也应注重舒适性和实用性,既能满足多人聚会的需要,又能保证日常休息的舒适度。同时,通过搭配不同材质的靠背和坐垫,提升整体的触感和视觉效果。 在收纳方面,利用柜体和储物盒等家具,将杂物有序地收纳起来,保持空间的整洁和美观。同时,利用墙面空间,安装一些实用的挂钩和置物架,方便日常物品的取用。

设计亮点
冰箱与电器柜井然有序地靠墙而立,巧妙地安置在通往卫浴的过道上。它们位于电视墙的隐蔽后方,成功地将各类电器巧妙隐藏,使得公共区域保持了一种简洁而雅致的美感。
软装搭配
对于餐厨区域,选择了简约而实用的餐桌和餐椅,以及具有储物功能的厨房柜体。在色彩搭配上,与整体空间保持一致,营造出和谐统一的视觉效果。同时,通过添加一些绿植和装饰画等元素,为餐厨区域增添生机和活力。






设计亮点
床头墙简洁设计:为了满足屋主对于床头墙不做任何造型的诉求,设计师巧妙地运用了深黑色家具,通过跳色手法成功捕捉视觉焦点,为空间带来稳定感,有助于心绪的沉淀,从而营造出宁静舒适的睡眠环境。 半开放书房规划:考虑到屋主希望在卧室内增加工作空间,同时避免打扰到伴侣休息,设计师精心规划了一个半开放书房。通过砌起一道隔间,既保留了采光,又成功区划出工作区域,实现了工作与休息的和谐共存。 隔墙两侧功能布局:书桌与阅读卧榻分别藏于隔墙两侧,不仅提升了空间的隐私感,还充分利用了采光窗的篇幅,为生活留下了更多余裕。设计师还在门洞四周贴附了ㄇ字木皮框,既增强了场域的立体感,又起到了框景作用,使这片日光更加聚焦,营造出澄明通透的氛围。 大容量更衣室规划:根据屋主的需求,设计师在卫浴与书房之间规划了一个大容量的更衣室。通过编排置顶高柜和在转角处设置开放柜,女主人的衣物和包包都能各得其所,满足了收纳需求。 百叶门缓解压迫感:为了避免柜体造成的压迫感,更衣室采用了百叶门作为门板,打破了封闭式的独立格局,增强了空间的通透感。这不仅使内部的自然光和空气得以流通,还淡化了房内层层隔间的局促感,为整个空间增添了景深层次。
软装搭配
深黑色家具点缀:在简洁的床头墙设计中,深黑色家具成为点睛之笔,与整体空间色调形成对比,营造出低调而奢华的氛围。 书房与卧榻的舒适配置:书房区域配置了舒适的书桌和椅子,便于屋主工作;卧榻则选用柔软舒适的材质,为阅读或小憩提供便利。 百叶门的材质选择:更衣室的百叶门不仅具有通风透气的功能,其材质和颜色也与整体空间相协调,提升了空间的质感。 照明与窗帘的搭配:考虑到卧室的采光需求,可以选用柔和的照明灯具,营造温馨的氛围;窗帘则可以选择遮光性能好的材质,保证良好的睡眠环境。 配饰与细节处理:在空间中适当添加一些配饰,如画作、绿植等,可以增添生活气息;同时,注意细节处理,如门洞四周的ㄇ字木皮框,既提升了空间的美感,又增强了实用性。

设计亮点
黑白与金色的经典搭配:浴室的设计采用了黑白相间的瓷砖,这是现代家居中常见的经典配色方案,不仅显得时尚,还能带来清晰、整洁的视觉体验。金色装饰元素的加入,如金色的水龙头和淋浴头,则为整个空间增添了一丝奢华感,提升了整体的质感。
软装搭配
黑色储物柜与整体风格的协调:黑色储物柜不仅与墙壁和地板的黑白瓷砖相协调,还与金色的淋浴间装饰形成了鲜明的对比,使得整个空间在色彩上更加丰富、有层次感。
