

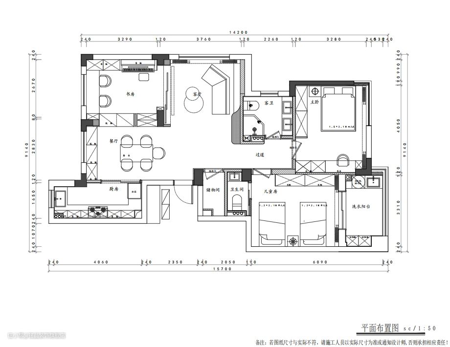
项目地址 / Address:运新花苑 设计施工 / Co :铭品装饰 风格 / Style:现代简约 项目面积 / Area:106㎡ 高明的设计,是让不大的家,也能装下许多天马星空的想法。 本案屋主是二娃家庭,夫妻两参观完邻居家后,感觉他们一板一眼的装修十分无趣。屋主想要的家,是每个角落都充满吸引力,动线畅通开放,方便照顾两个小朋友。






设计亮点
推开大门,视野被低饱和度的奶油色占据,柔光砖地面搭配无主灯吊顶,说不尽的温柔与缱绻。 公区的设想,是四通八达、灵活有趣的共享空间。从玄关→客厅→书房→厨房,形成完整的洄游动线。打破传统布局结构,抛弃电视、茶几后,公区尺度得到1.5倍提升。大人坐在沙发上喝茶聊天,小朋友们在空地和猫猫玩耍,互不打扰,随意自在。 沙发背后利用实木与壁龛打造不规则书架,隔板厚度故意有所区别,看上去更富有艺术感。圆弧拐角处装了壁炉,若下雨天打开,一定显得家里特别温暖。




设计亮点
自然光经过亚麻百叶帘的过滤, 给餐厅蒙上一层家独有的暖意。米黄桌面,胡桃木桌腿,手工编织的餐椅,搭配兰铃吊灯,营造贴近自然的惬意质朴。 窗台下定制了一组餐边柜,兼具收纳和西厨功能。屋主煮完咖啡、切完水果,在水槽一冲很方便。


设计亮点
关于书房和餐厅之间的隔断,其实我们做了好几稿设计,最终决定用储物+吧台的形式来做联动。 大人在厨房或餐厅忙碌,一抬头就能照看到两个小朋友。想给他们送点水果零食,放在吧台就可以。





设计亮点
卧室沿用同色号艺术漆,干净纯粹如云端之上的世界,放松治愈,令人想在这里一夜好眠。 看似简约的设计中,藏着无数精致细节。吊顶边缘呈现波浪样式折叠,柔化整体氛围。床柱和靠背造型,显得室内不那么单调。

设计亮点
卫生间采用了奶油色艺术涂料,地面选用奶油色瓷砖,达到空间的一抹色效果。浴室柜用了原木色,更显温馨自然,两层抽屉满足日常收纳需求,镜子区做了镜柜,还可以放一些洗护用品,减少台面的杂乱感。淋浴区做了移门,减少水渍的外散。


设计亮点
餐厅与书房的连通,实现了业主做家务的同时照顾孩子的心愿,在色彩上,整屋墙面采用了奶油色艺术涂料,地面选用奶油色瓷砖,达到空间的一抹色效果,营造通透明快的视觉效果。 书房与客厅之间的墙体用吊轨联动门替代,增加室内采光面,并形成多场景互动模式。
软装搭配
除了一体式书桌,和专属钢琴位外,余下空间都做成柜子,毕竟所有妈妈都懂,两个小朋友的书籍和玩具真的很多。
