



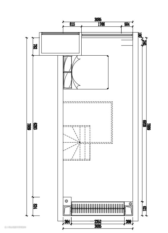
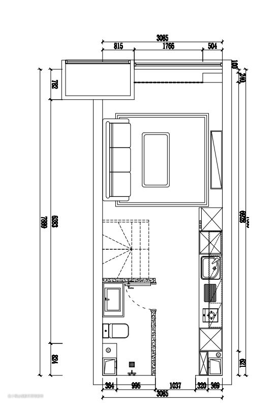
🔹🔸🔸🔹 本套案例位于成都双流区·保利和光逸境——公寓楼盘,套内长宽尺寸是3.085米*7.889米,层高是4.05米,原始结构就是一个空空的长方体,需要新砌墙体+构筑二层结构。 屋主要求整体保留两个卧室,空间感要好,避免太过于压抑,室内储物功能要全面考虑,风格上尽量简约大方。 1️⃣装修前:搭建选择钢混结构,楼梯是U形钢结构楼梯,中间部分挑空设计 2️⃣装修后:公寓都是先搭建后砌墙加水电,逐步是其他施工步骤,以确保最后的硬装完工效果。





设计亮点
这套loft公寓建面36平,套内24平,钢结构搭建后拥有两个房间两层楼空间,功能设计上合理、清晰、全面。




设计亮点
公寓中间保留挑空设计,长宽是2米多乘以1米多,这样的尺寸规划让空间感看上去更显大,还搭配了氛围感吊灯,简约又温馨。




设计亮点
公寓楼梯是U形楼梯搭建而成,铺贴木地板+实木玻璃扶手+梯下储物间,占地面积1.5米*1.5米,节省空间的同时又十分实用。



设计亮点
入户进门,左侧卫生间+右侧厨房和鞋柜,钢结构搭建的阁楼下方面积虽然不大,但空间上功能全面合理。





设计亮点
客厅,设计在阁楼搭建下方靠窗位置位置,开放式,楼梯旁边放置沙发,对面是电视墙,无主灯,安装错落有致的筒灯,简约又好看。



设计亮点
厨房,一字形开放式设计,一整排吊柜+地柜,中间是做饭的区域,日常操作方便又实用。



设计亮点
主卧,设计在二楼靠窗位置,全屋通铺木地板,可以摆放1米8的床和床头柜,卧室侧边安装半高实木玻璃扶手,室内空间通透感更好。



设计亮点
次卧,设计在最里侧,一整排嵌入式通顶式柜体,也可以作为多功能房间,实用性很强。



设计亮点
二楼过道,宽度有80公分,和卧室一起侧边安装玻璃护栏,这样设计可以很好地降低空间压抑感。



