
装修后
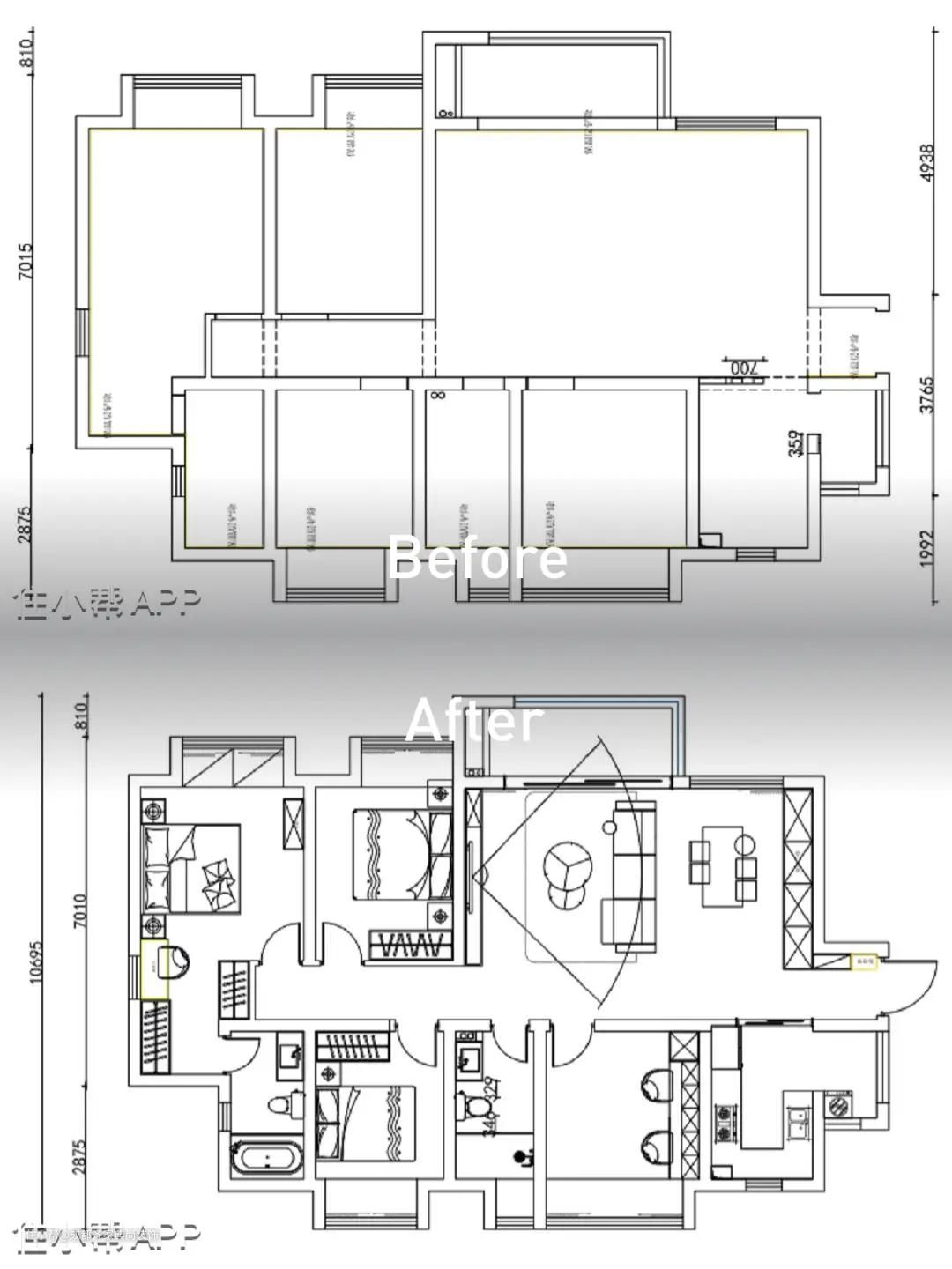
业主是一对年轻的新婚夫妻,非常喜欢这样简单干净的原木风,所以从一开始就想着设定成这样的风格。 通过对户型的设计,保留了客厅阳台的功能,因为客厅面积足够大,所以女主人想保留阳台的功能,这样也能在阳台上打造属于自己的小天地。 然后将厨房的位置与生活阳台打通,这样扩大了厨房的使用面积,u型厨房的设计再加上多出来的生活阳台的位置,大大增加了厨房的储物空间。



设计亮点
因为客厅是横厅设计,所以可利用性很高。 整体木地板通铺,让空间更有一致性。在搭配原木的沙发茶几和电视柜,整个空间又通透又干净。 白色布艺的沙发让客厅显得更加的柔和舒适,角落和茶几的绿植的点缀让空间更加生动有趣。



设计亮点
餐厅设计在客厅沙发背后,整体是客餐厅一体的设计,让一进门的这个大空间显得更加的通透。 为了整体的风格统一,所以也搭配的是原木的餐桌椅。再搭配了原木色的岛台设计,增加了餐厅的实用性,让用餐也能成为一种乐趣和兴致。 靠墙设计了整排到顶的餐边柜,这样就大大增加了这个区域的储物收纳面积,可以将一些常用的小家电放置在台面上,这样又方便又不会显得杂乱。

设计亮点
u型设计的厨房,让厨房有足够的操作面积和收纳空间。 白色的吊柜让厨房与客餐厅色彩层次有一定的区分,原木色的地柜又让家里的一致性有了很好的延伸。


设计亮点
主卧的设计很简单,因为女主人就喜欢这样干净舒适的环境。 亮点是在卧室的一角设计了u型的衣柜,呈现出一种步入式衣帽间的感觉,不仅有足够的衣物收纳空间,也能给人一种换脱衣帽的仪式感。 床头柜与梳妆台一体的设计,让整体有一种延伸的感觉。梳妆台刚好设计在窗边,这样在梳化的时候看看窗外,心情也有不一样的感觉吧。

设计亮点
将其中一间次卧设计成书房,同样搭配了原木色的书桌。 独立按摩椅的设置,让人在学习工作的期间也能得到很好的放松。

设计亮点
在主卧设计了浴缸,这是女主人特意要求的。因为女主人非常喜欢泡澡,她觉得泡澡是缓解压力很好的方法,泡澡后会让人觉得特别的放松。 整体没有太复杂的设计,黑色五金的搭配成为整个空间的一个亮点。

设计亮点
因为客厅面积比较大,所以保留了阳台的功能。 在阳台上种种自己喜欢的花草,这何尝不是一种生活情趣呢~
