

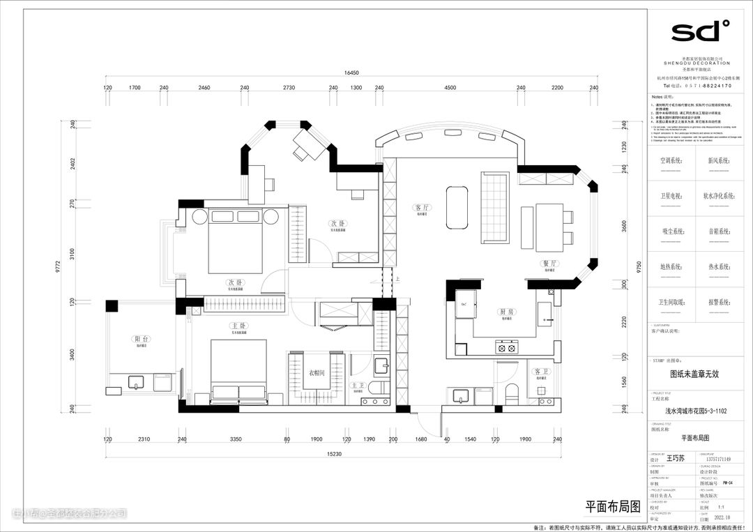
●本案居者: 幸福的一家三口。对于理想家的期待,是有颜有品、温馨自在。 ●居者需求: →改善层高偏低的bug。 →创造互动型家居环境。 →巧妙规划,变大餐厅。 ●设计亮点: →浅色系+局部吊顶,有效减缓层高低的压抑。 →LDKB布局+动静分区,呈现出高互动家居。 →餐厅设计成开放式,实现空间的放大效果。 →阳台纳入室内,定制休闲区,杜绝空间浪费。




设计亮点
基于居者对温馨自在生活图景的追求,设计师以木质的温润感渲染温暖的家居情态,又着意添了几笔牛乳白的雅致与清爽。于是,舒适、明朗、自然,纷至沓来。
软装搭配
作为一家三口的居住空间,家庭成员的互动日常都会在此徐徐展开。 设计师大胆将阳台纳入室内,又取消了客厅与厨房、餐厅间的非承重墙,形成采光无敌、通透满分的LDKB布局;飘窗式收纳区铺上了柔软的垫子,可收纳、可休息,搭配仙气飘飘的白色纱帘,成为室内一道绝美的风景线。


设计亮点
质朴的木、雅致的白,交上了治愈系家居的满分答卷,只一眼便能卸下周身疲累,重拾满满元气。
软装搭配
原餐厅略显局促,开放式布局减少墙体的阻隔,视野变得开阔许多,一家人沐浴在阳光下,围坐着大快朵颐,心情也明媚了许多。

设计亮点
延用原木+白的色系搭配,让整体空间高度呼应,质感更强;依据空间走向规划U型布局,加之嵌入式家电,最大化提高厨房的储物力。


设计亮点
主卧坚持实用主义,特意将临近的储藏间纳入其中,形成了“卧室、衣帽间、卫生间、家政阳台”为一体的套房体系,舒适度100%,日常生活更高效便捷。





设计亮点
预留给小朋友的次卧连着一个异形阳台,原本这块空间有些鸡肋,设计师别出心裁地在此处规划了成集休闲、娱乐、学习为一体的多功能区,寓教于乐,为孩子的童年生活添上丰富多彩的一笔。
