

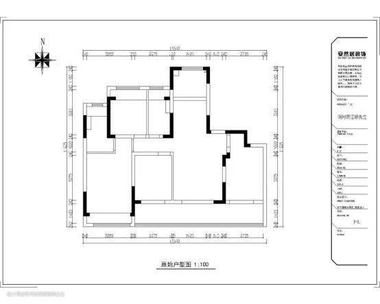
装修前
♥我们先来看一下原始户型交付痛点: 1️⃣.对于四室,一家三口只要两间房,如何布局? 2️⃣.入户玄关处有些狭小,怎么改善? 3️⃣.厨房餐厅略显拥挤,怎么改?
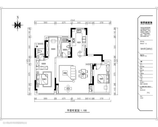
装修后
♥平面方案布局改善: 1️⃣.紧靠客厅的南次卧拆除后,做成时下最流行的横厅设计,阳台移门也一道拆除三开间阳台一分为二,一部分作为儿童房,一部分除了保留功能阳台外,安置业主最想要的茶室;北次卧,直接改做衣帽间划入主卧,完善主卧套房功能区,住起来舒适又宽敞。 2️⃣.原本入户旁就是儿童房的门,有些紧促,现在儿童房舍弃这一小区域,重开一道门,入户过道处瞬间开阔不少,玄关的功能更完善,儿童房也变得更加方正。 3️⃣.将餐厅移到客厅后,原来餐厅区域划给厨房,沿着u型厨房操作台打造一个L型小吧台,方便置物,用个简餐,厨房餐厅都不拥挤了。



设计亮点
🆕当过道的空调出风口撞上灯怎么办?来看这家,定制出风口,把射灯直接安在出风口上,配合旁边的线性灯看起来整整齐齐。








设计亮点
🆕又见梁!这家对梁的处理也很优秀,以梁为最低点,两边都斜向削弱梁的存在,再配上灯带就能给人带来一种轻盈感,空间不显压抑,你学会了吗? 🆕这个隐形门太成功!要是不说,谁能知道电视背景墙后大有乾坤,藏下了主卧套房呢? 🆕既然要贴合客厅的敞开大气感,那沙发的选择也不能太突兀,这款无扶手的劳伦斯沙发就是最优解。沙发线条干净利落,座包圆润微鼓,去扶手的设计又增添一份大气感,适配度满分!

设计亮点
🆕把原来的餐厅位置纳入厨房后,厨房做成敞开式,u型操作台,更符合洗切炒的动线,这个厨房用起来就更舒适顺手啦! 🆕厨房顶面做防水石膏板吊顶的话,千万记得留检修口,不然万一碰到检修问题可是要把整个吊顶全拆掉的哦~


设计亮点
🆕原本只能4人位的小餐厅,挪了位置后足足6人位也不觉得拥挤,饰面板全包围的感觉直通到阳台区域,整体空间统一、开阔、明朗~



设计亮点
🆕床头半墙和两边衣柜统一材质色调,用内嵌灯带和墙顶的灯带呼应,制造卧室的立体感,又在深浅色对比中减轻衣柜带来的厚重感,这个床头灯光设计好赞! 🆕随着北次卧改成衣帽间被纳入套房区域,主卧更显宽敞舒适。这里的转角做了斜切处理,动线流畅,储物颜值两手抓。


设计亮点
🆕拍摄的时候,小朋友说:我房间是有主题的,叫:太空人,果然,从灯具到床单,都是他喜欢的元素,阳台纳入进来,功能性也更加完善。希望小朋友在这套专属定制的房间,成绩优异、平安健康吧~



设计亮点
🆕这个卫生间有点高级啊!镜子加灯带,极窄的岩板台面设计啥的都是基础调调,无卫生死角的壁挂式坐便器,其实还有一个隐藏好处:预埋进去的水箱顶面,天然就是一个置物台,东方木香总会带来更好的香氛体验~
