








装修前
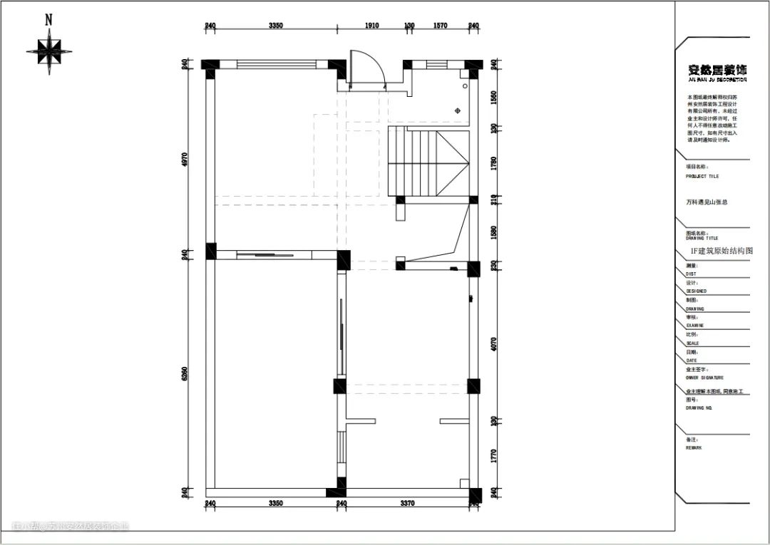
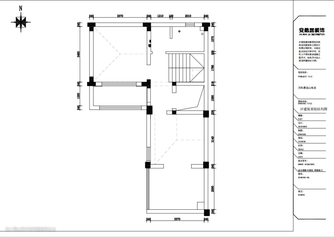
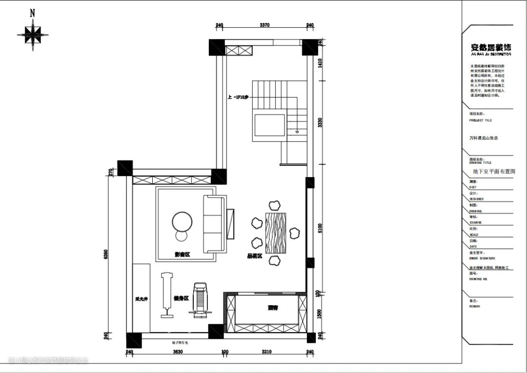
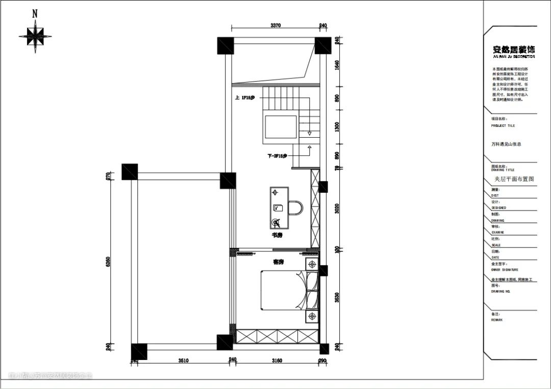
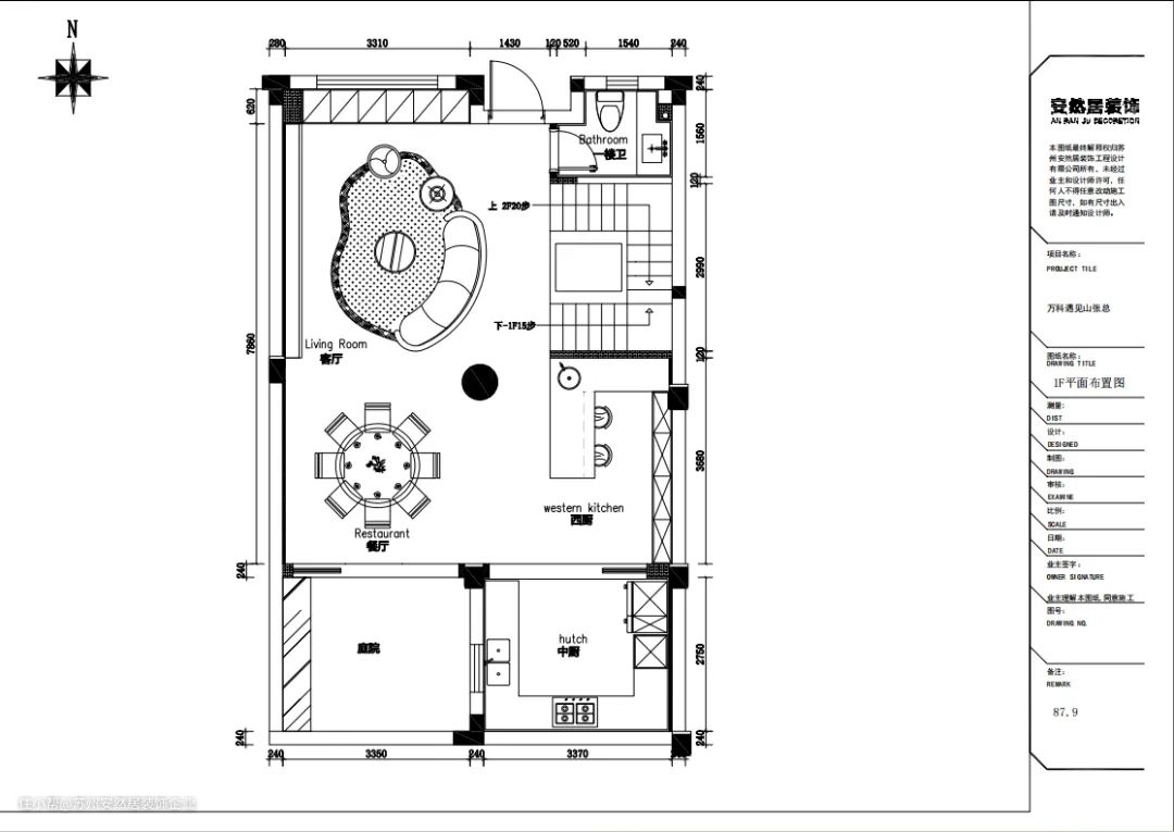
♥我们先来看一下原始户型交付痛点: 1️⃣.地下室层高5米,如何充分利用起来呢? 2️⃣.楼梯和电梯,怎么兼顾? 3️⃣.业主希望一楼有一个更宽敞的用餐区域
装修后
♥平面方案布局改善: 1️⃣.地下室层高5米,这个层高划分出一个夹层也不嫌拥挤,支支老师就在这设计了一个夹层用做客房和敞开式书房,并设计了一排小窗,轻松解决采光和通风问题。地下室剩下部分设计成共享区域,让空间更大气,会客娱乐不会压抑。 2️⃣.原来地下室楼梯路线不顺畅,又要加上电梯,那就整个拆除,重新划分楼梯区域,楼梯包裹电梯,实用不占地,整个楼梯行动路线也清晰流畅了。 3️⃣.拆掉原来院子和厨房的墙体,一部分做室内,一部分依然保留室外的用途,这样厨房、餐厅同步扩大,又增加一组西厨功能,再也不用担心储物问题。





设计亮点
🆕这个六月不畏烈日,无论是约上三五好友,还是陪伴家人,坐在这个茶室,不远处就是酒窖,品茶品酒都凉爽又惬意,小安真是狠狠羡慕了。 🆕镜子加灯带就是显大神器!这套组合一下子就让地下室看起来明亮又宽敞,增加了空间感,尤其镜子带来的视觉延伸效果让地下室变得更开阔大气。


设计亮点
🆕空间的规划远比做个背景重要的多,支支老师充分利用地下室层高5米的优势,现浇出一个夹层做敞开式书房和客房,平常可以沉静阅读,留客时也能主客不打扰;未来还能根据需要灵活调整,这个规划绝了!







设计亮点
🆕这套高级感电视背景墙还有谁不会? 用大理石花纹岩板彰显高级感,搭配咖色格栅提升整体格调,再加上黑色不锈钢做的造型和展示柜,实用又美观。这些不同元素结合在一起,独具个性,时尚高级,你学会了吗? 🆕米白色豆腐块沙发简直就是家居届的一件基础白T,简约大方又经典,好看更好搭配! 🆕怕吊顶压层高,显得压抑?快来学这家:用悬浮吊顶搭配无主灯设计,既不挡出风口还有一种简约高级感。不过小安提醒要提前设计好灯源位置,预埋灯带位置,吊顶的高度也要提前测量好哦。



设计亮点
🆕看腻了方方正正的床头背景,这家来了点不一样的:转角处用弧形饰面板替代方正背景,让空间更有灵动性,曲面设计也能让视感更加柔和放松。



设计亮点
🆕格栅软包➕拼色三角形定制柜,妥妥的就是孩子的房间。利用梁的位置做了区域划分,突兀感消失、一体化更强。


设计亮点
🆕对于长辈来说卧室的舒适性是排在第一位的,删去多余装饰,只用墙布增加卧室的柔和感,加上一门到顶的衣柜,想必这就是长辈们喜欢的那种温馨整洁的卧室吧!
