
装修前
设计理念:这是一套意式极简风的装修案例。设计师巧妙满足了业主对于沉稳高级、轻松简约且精致有质感的多重需求。整个空间以深色木质元素为主,营造出既温馨又舒适的居住环境。无主灯布局贯穿全屋,极简自在。设计师的匠心独运,成功将这一住宅打造成了一处兼具实用与美感的理想居所。一起来看看吧。
装修后
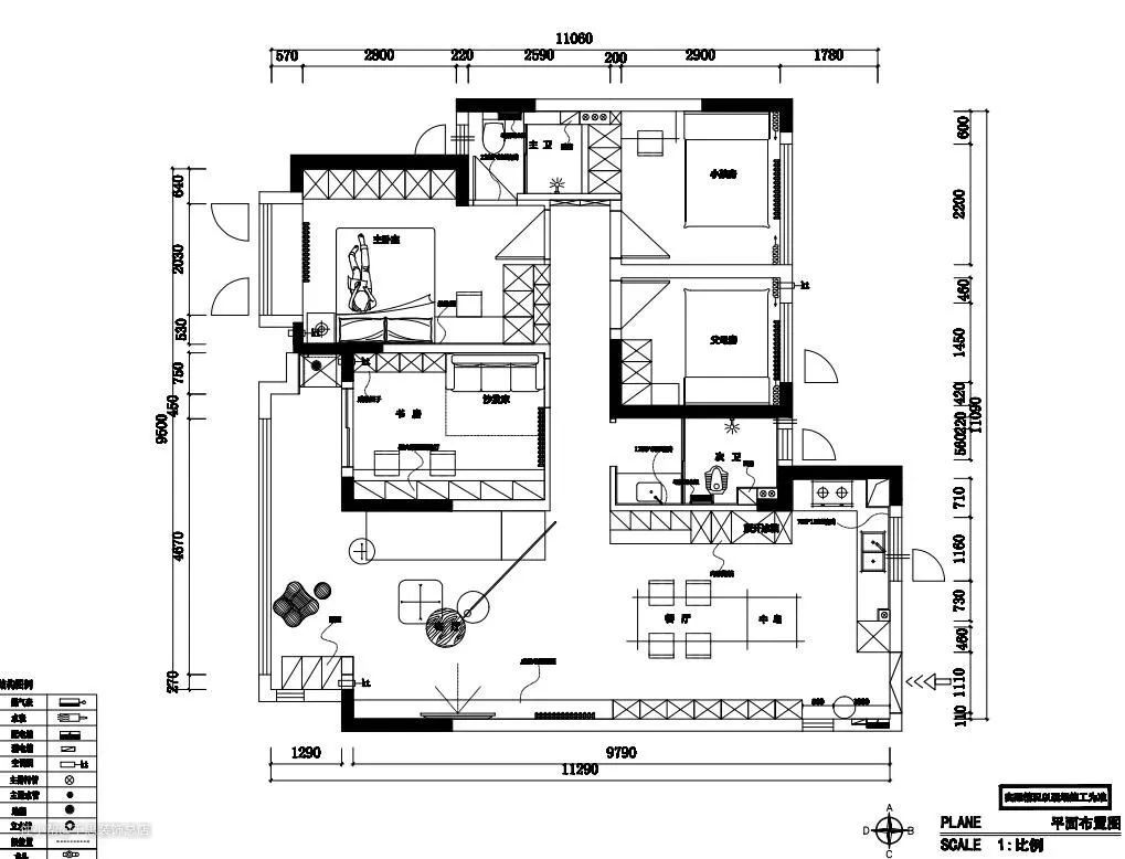
▲ 户型图解析:①东进门入户,直见客餐厅,左右两侧规划出功能不同的收纳区。②将超长阳台纳入客厅无阻隔,通透而明亮。③实现餐厨一体的全开放式设计,提升空间交互性。


设计亮点
▲ 炭黑色入户门尽显高端质感,搭配洞洞板作为墙面装饰,不仅美观实用,还增加了收纳空间。简洁现代,是提升家居品味的理想选择。







设计亮点
▲ 客厅以黑色为主调,深咖色护墙板巧妙点缀,彰显极简风范。家具与装饰品简约而不失格调,营造出舒适且优雅的居住环境。用色上黑白相间,简约时尚。隐藏光源打造的电视背景墙增强空间氛围,打造悬空地台便于清洁,展现细致入微的设计巧思。将阳台融入客厅,大面积落地窗,瓷砖通铺设计拓宽视野,引入更多自然光,营造明亮宽敞的居住空间,现代感十足,尽显设计巧思。
软装搭配
▲ 坚持客餐厅一体设计,顶面无主灯,空间通透不压抑。黑白灰色调和谐统一,彰显高级质感。开放式布局,增强互动,舒适家居氛围。阳台视角展现的公区设计,木饰面沙发背景墙与深灰沙发和谐搭配,倍感温馨。整体色调统一,空间布局合理,舒适宜人的居住氛围。全房无主灯设计,散射灯与线灯灯带巧妙点缀,极简布局。黑白灰经典配色,营造极简氛围,兼顾颜值与实用性,打造舒适宜居空间。阳台一角巧妙规划晾晒区,洗烘一体机与日常清洁工具有序摆放,充分利用空间,实现晾晒与清洁双重功能,是现代生活方式的体现。



设计亮点
▲ 客餐厅巧妙结合,通透流畅的布局增强空间互动性,视觉效果倍增。黑白主色调简约时尚,营造静谧舒适的氛围,尽显设计巧思。餐厨设计以开放式为特点,提升居家便利。餐导台一体化实用美观,满墙餐边柜与电视柜呼应,无拉手设计简洁大方,舒适生活新体验。
软装搭配
▲ 整个客餐厅一体设计,餐桌衔接岛台,起到一个补充功能。色彩上将黑白诠释到极致。内嵌的冰箱严丝合缝,视觉效果直接拉满。


设计亮点
▲ 厨房以深咖与炭黑为主调,吊柜与地柜呼应客厅风格。操作台与岛台设计流畅,遵循烹饪动线,提升居家效率,彰显高品质生活。
软装搭配
▲ 开放式餐厨与客厅融为一体,冷色调彰显清简质感。岛台设计独特,落地窗将户外风光尽收眼底,营造舒适宁静的居家环境。



设计亮点
▲ 儿童房设计活泼明亮,素色定制柜与蓝色墙漆相映成趣,隐藏式灯带营造温馨氛围。整体空间布局合理,让孩子在舒适环境中快乐成长。 以蓝白为主,超大落地窗带来开阔视野。以书桌代替床头柜,小孩学习疲倦时,可眺望窗外高楼美景,放松眼睛,享受心灵的宁静。
软装搭配
▲ 巧妙利用床头空间打造学习区,配合衣柜开放格设计,储物便利且美观。蓝色墙面营造舒适氛围,实用又温馨,满足学习与休息的需求。



设计亮点
▲ 主卧,护墙板背景简约大方。不对称床头柜设计打破传统,镂空抽屉与落地式巧妙搭配,增添空间层次感,展现个性化现代生活理念。
软装搭配
▲ 主卧采用木饰面背景墙,与客厅风格相呼应,彰显沉稳内敛气质。与儿童房相比,简约而温馨,营造出一个静谧舒适的休息空间。 卧室以深色为主调,时尚简雅。床尾沿墙定制整排炭黑色收纳柜,一门到顶设计尽显高级质感,有效利用空间,增强卧室整体美感。


设计亮点
▲ 电竞房设计独具匠心,采用护墙板封闭入户门,嵌入玻璃砖引入自然光,营造出明亮舒适的电竞环境。绿色沙发搭配黑色办公椅。
软装搭配
▲ 融合实用与美观,整墙书桌柜提供充足储物空间,吊柜无拉手设计简洁大方。木地板与无主灯设计相得益彰,营造宁静有序的氛围。


设计亮点
▲ 卫生间实现干湿分离,灰色瓷砖营造简洁氛围。圆形镜子配白色水槽,展现洁净时尚感。长虹玻璃门隔绝水汽,健康舒适的洗漱环境。
