35㎡里,巧手变出了两房一厅,全靠成年版的上下床!
装修白老师
2018-03-30
都说日本家居设计师的是收纳狂人,那么欧洲家居设计师就是尽显极简之美。意大利的利古里亚沿海城镇有着一栋富具特色的风格房屋,这间清新宅一室的公寓只有 35㎡,却被设计师巧造出两房一厅,着实让人惊奇。

这面柜体可不简单

户型穿透效果图
公寓层高3.5米,设计师利用空间层高的优势,用胶合板将公寓划分一半为上下层,用可活动的柜体隔出两间卧室,实现了两房一厅的布局架构。
柜体开合动态图
体验动态图
使用淡蓝色和白色墙面互相交错,如大多数的北欧风格家具一样,简约而不又失时尚,通过原木色漆将二者划分开来而又点缀在其中,色彩与整体风格和谐搭配。

柜体入口
平时主人白天活动不开启柜门时就是一面壁柜和客厅、开放式厨房,不知道其中巧妙设计的人,还以为是仅供观赏的样板间。

柜体闭合图
当墙面每一面柜体都打开之后,发现里面藏有“机关密室”具有收纳功能的二居室,赫然呈现在眼前,一层居室里收纳性极强,原木隔板作为三层日常装饰物品摆放。

柜体展开图

内部设计图
左边特意设计的原木式小楼梯,通往二层小卧室,配备有射灯向上照射,显得更有层次感,上下两层相互不干扰又保证了各自的隐私空间,非常适合学生公寓。

极简式北欧柜体设计墙上收线优美,柜门开合之时不影响装饰小物件的摆放,原木色的沙发和简约落地台灯结合尽显文艺之美。

客厅一角
开放一字型厨房,既节省空间又方便下厨操作,顶部小吊柜加上隔板完全放置调味剂和餐具,下方收纳柜和烤箱定制结合在一起让空间更具整体性。

餐厅图

客餐厅效果图
下层卧室内一环环的胶合板造型,拉宽了房间纵深,敞开的层板被当做衣柜使用,内室的私密性非常好,可以完全隔离外界打扰。

一层卧室内部图
上层卧室的床头设计了置物层板,可放小装饰及喜爱的书籍,一盏壁灯在墙边灯光向上更为梦幻,可打开的小窗保证了室内的采光,让拥挤、压抑、采光不足的问题完美解决。

二层卧室图

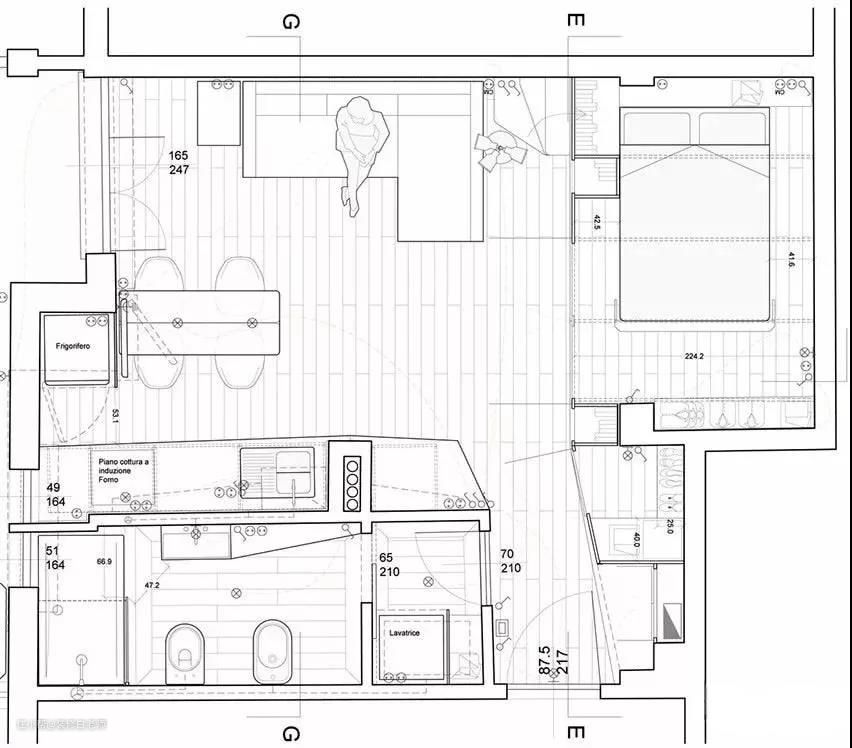
户型图
这样的内有乾坤的两房一厅,你喜欢吗?