装修小白如何一步步搞定全屋灯光照明设计(上)#好物种草
zouzoulong
2019-11-08
一、前言
1.碎碎念
文章开始之前,首先要说明的是关于室内照明设计其实是一个挺专业的事情,所以有相关灯光照明设计这样的职业。
自己作为一个渣渣摄影与灯光照明虽然有一定的沾边,更多的是深知灯光对于整个房子的重要性,但让我自己独立完成自己家里的灯光照明设计显然是不够专业的。
自己在开工前就发现迫切需要解决的主要问题:
- 大部分家具和电器的确定以及位置摆放:

- 灯位的设计&灯具款式选购:

- 开关控制及位置摆放、以及插座的位置也需要确定:


- 电路回路的设计构想:

这里分享和记录自己房子装修灯光如何一步步实现的经历,希望对你们能有所帮助。不过文章内容较多且不易一次全部get,是不是应该先点赞收藏一下?
2.装修理念
自己的系列文章也代表了我对于装修所坚持的理念,个人一直以来倡导的是想清楚自己想要怎样的家、自己的家怎样住,所以我和老婆从收到房子一直在使用酷家乐解决问题1,就是所有涉及的家电和电器,还有家具的摆放。酷家乐上手难度较为简单且比较好用,可选模型较多值得推荐的。

装修是一个非常浩大的工程,而你的工程总款是有限的,所以每个人对装修每个项目的重要性理解和资金分配都会不一样,别人的家里可以为了省一点钱拒绝一切嵌入式的灯,但在我眼里灯光很重要,重要到如果房子层高足够我甚至愿意为此全屋吊顶,这样灯具款式的选择性远比现在要大得多,现在无奈只能回形吊顶。
所以我省钱的方式与目的是为了能在看重的项目上能够有更多或更从容的选择,而不是在总预算上进行偷工减料。
3.自己前期的一些想法
首先自己对于照明的要求较高,也不希望地上反光就是天顶一大吸顶灯或者吊灯。照明效果要满足生活需求的基础功能,然后希望需要照亮的东西或角落被照亮,而不是天顶都布满了灯,屋顶满天星的效果;

其次家里灯光不但要满足好看的目的,还要有较好的舒适度以及色彩还原性;
最后照明方案是跟着装修风格走的,我们家目前的装修风格打算是偏现代的黑白灰色系风格,所以从一开始就决定了几乎全屋使用射灯的照明方案,又回到了一开始想清楚自己想要什么,不要随波逐流。
好像什么都有了,可尴尬的是自己3线城市小装修公司的设计师基本就绘图员,电路设计都不太懂更别说灯光照明设计了。我还专门到当地实体店逛过射灯,可是几个实体店比如欧普、雷士照明逛完之后感觉它们对于灯都不是很专业,甚至有些连显色指数都不懂,灯光可选款式少还价格不菲(几百块一个),所以更坚定了我参与设计和网上购灯的想法。

二、关于灯光知识的学习途径
既然要参与进来自然少不了学习,我对灯光学习的途径主要分为以下几个:
1.借鉴网络晒单
自己也没想到最早借鉴学习的内容是来自于大妈前阵子很火的一篇装修文,只是我不同于大多数人喷预算和风格,我更多的把目光停留下他的配色和灯光这些可以借鉴模仿的地方。
毕竟百万级装修的设计师和房子,相信其灯光方案肯定比那些几万或者似懂非懂的更具有参考意义了,于是果断关注O大,对他所有的晒单图片里的灯光灯具进行一定的分析学习。
卧室部分:

- 床头灯用比较柔和非直射的灯光,通常用吊灯或壁灯,而不会在头顶安排直射灯;
- 房屋/床中间通常用一个明装多头射灯或2个明装射灯来替代传统主灯;
- 常在一些造型处使用灯带勾勒轮廓,还能给房间带来一定的间接照明;
- 通常会在电视墙位置轨道灯,不过这个灯应该是拍照的时候与电视同时打开的,平时看电视应该不会经常打开,不然应该会对观看有一定影响。
- 吧台或者书桌还需要单独台灯进行照明。
客厅部分:

- 虽然在沙发顶上安排了灯,但看灯的朝向就会发现并不会直射沙发区域,也可以根据需要调整方向;
- 客厅中间部分依然是熟悉的双射灯/明装多头射灯组合;
- 一些好看的结构造型还是使用灯带来体现,工作台上方灯带还能提供比较柔和的间接照明补充;
- 对需要照亮的一些区域或事物进行照明,这里人是工作状态不会躺着,所以不存在直射眼睛的困扰;
- 比如像柜子的模型展示、墙边特别的挂钟都单独使用灯光对其进行补光照亮。
卫生间部分:

- 淋浴区使用多合一浴霸,浴霸自带灯光照明功能;
- 一些人在马桶的时候会有阅读的习惯,而且你基本也不会仰天上马桶;
- 镜灯可以凸显镜子的造型,也可以对人物面部补充进行很好的补充。
不过他这个房子是全屋吊顶了的,就如同我文章开始所说,灯具的可选性和隐藏美观性都能做到很好,而自己家里层高只有2.8不到,没法做全屋吊顶的,很多地方就没办法参考了,所有对于你们喜欢的房子晒单你也可以像我一样去分析别人的灯光设计,是否合理、有木有什么地方可以借鉴。
2. 店铺资料
在装修公司设计师上省的钱感觉得在灯光上掏出来,所以之前真认真考虑过请专业的灯光设计师,巧的是在京东和淘宝都搜到了同一家店,设计看起来专业而且灯具种类齐全,只是名字不一样:初识/魅光,后来好奇问了客服果然是一个店,也一直有看到网友晒单这家店的灯,于是默默收藏关注学习了,这里的宣传资料更是我坚定了灯光还是需要专业的人来设计或者帮忙参考。
对我来说从他放出的图片灯具摆放以及CAD图里每个位置的用灯类型是具有参考性的。


原本已经打算直接灯光设计了,看了价格又想抱着深度咨询试试的再决定的心理,反复沟通下来对方配灯确实比较专业,自己也不用再花过多的时间和精力去纠结款式区别与计算照度,也给了我的灯光照明方案不少优化与改良,在水电没有动工、没有额外花几千块钱的情况下基本满足了心理预期的全屋射灯方案。
这里需要注意的是客服需要你提供房屋的CAD平面图的,好在装修公司的设计师还是给了我CAD图纸的,不然我也很难办。



3.网络经验文章
自己在站内或者站外看了不少关于灯光照明的经验科普或总结的文章,这里不能挂站外链接,所以就不多推荐了,有兴趣的私聊,你们也可以选择观看参考。
4.书本
相比于文章的零敲碎打,想要系统认真学习的话我更偏爱于看书,这里简单列一下我看的关于灯光的三本书,《小家2》、《照明设计终极圣经》、《照明设计》。
小家2也只是简单提到一些灯光上的小技巧和小应用,类似于上面网文的小tips技巧。

这是国内的一本室内灯光的书,可能是我已经看到了一本更好的书,也可能是我觉得这本书知识点凌乱,你们看看目录自己感受一下.

相比之前那些,对我影响很大的是这一本书,系统性比较强而且循序渐进,关键是每次看都能在书本里学到一些新的东西,让自己整个屋子的灯光照明系统更加完善。不过这本书部分内容也是比较有深度,建议根据个人需求选择性观看吧。

因为之前灯具那边给我安排好了射灯,但并非请设计师设计的全屋照明方案,所以比如像灯带、吊灯这些剩下的部分还是需要我来完善和补充的,这本书也恰巧帮助了我:
1.亮度&色温的变化需求:
屋子射灯全部选择的4000K的,但比如像餐桌、 吧台、床边这些地方还是需要一些偏温暖的光线,好在这里我都是用吊灯来解决,甚至使用智能灯泡。

另外比如像卫生间一些地方,白天和晚上对于光线的亮度需求也是截然不同的,想想大半夜起来上厕所眼睛被亮得毫无睡意......其实可以通过灯带等间接照明的形式来解决,比如镜前灯、浴缸等上方放置灯带等方式。
2.轮廓造型的灯带:床、窗帘、镜子、柜子
要不是看书可能就没想过要为衣柜、鞋柜、床去安排灯带或者照明,这样方便又好看的设计,毕竟水电路没有预留电线就不会再有了,当然可以选择充电的方案。

3.灯带摆放位置的调整
不仅仅是我们家,相信很多人家里都会有安排灯带的设计,但是灯带的摆放位置的一点点变化都能对灯光的效果有很大的影响。


这是我在一个邻居家看到的他们家的灯带,不仅用的频闪灯带,打光效果也不是很均匀。

4.利用好自然光
回想起最初朋友给我设计厨房位置摆放的时候,就是最先考虑的动线以及厨房的照明情况,显然对于灯光设计不仅需要照顾功能,首先应该注意考虑整个房子的采光情况。
没收房之前还担心生活阳台这里的光线不好,但事实上是白天这里的采光能将整个厨房照亮。

三、照明相关以及灯具选购要点
这里就列归纳一些灯具选购需要关注参数:
1.色温
色温基于黑色发光体,也叫做普朗克辐射体--根据不同的温度发出特定颜色的光,单位为开氏度K,就是灯光所打出来的颜色。K 值(色温)越低,光色越偏红。K 值(色温)越高,光色越偏蓝。

通常家装灯具的色温选择在3000K-4000K之间,一开始设计师朋友给我的推荐是3500K,为此我也是找了很久,一些普通店铺只有3000K或4000K的,不过最后我是根据家里的风格偏现代的灰色系,所以射灯的选择是4000K。

实际效果如下图:

2.频闪
相信很多年前你和我一样在315就看过关于手机检测灯光护眼的方法,但是9102年了我依然可以在不少邻居家看到频闪的灯具,特别是他们喜欢使用便宜的灯带。
虽然你肉眼看不出灯光的闪烁,但是眼睛在频闪的灯光长时间总会明显感觉到眼睛的膨胀和疲惫。
所以我自然是建议全屋都使用护眼的灯具,无论对自己还是家人都更好。

3.光束角&墙距
光束角是指垂直光束中心线的平面上,光强等于50%最大光强的二个方向之间的夹角。根据下图可以看到,15°的灯具照射范围较小,而中心光强最大,能在照射是形成强烈对比;24°的照射范围变大,但是中心光强变小,在照射面是形成的光斑是较柔和的。也就是说相同功率的灯具光束角越大其中心光强越小,光斑越柔和,相反光束角越小其中心光强越大,光斑越硬。


而灯具的离墙距离也会影响光斑在墙面上的高度和效果:

4.照度&亮度
照度是用来说明被照面(工作面)上被照射的程度,通常用其单位面积内所接受的光
通量来表示,单位为勒克斯(lx)或流明每平方米(lm/m2)。
亮度也是用来表示物体表面发光(或反光)强弱的物理量,被视物体发光面在视线方向上
的发光强度与发光面在垂直于该方向上的投影面积的比值,称为发光面的表面亮度,单位为
坎德拉每平方米(cd/m2)。
具体如下图指示:

光源的亮度既视感,有时受色温影响较大。在光通量相同的光源中,色温高的光源会产生亮度高的 错误视觉感。这种“高亮度”光源,光效并不一定比其他光源高,照度也并不一定比其他光源高,只是一种刺眼的“虚假亮”。所以在实际照明应用设计和照明节能规划中,只要使用照度来评估照明设计的合理性。
在灯具选型一样,功率一样的情况下,被照空间的色系不一样,人眼感知的亮度不一样。例如:黑色空间和白色空间,参数相同的情况下,白色空间给人感觉更明亮些。
那家装的具体照度如下表:


5.显色指数
光源对物体本身颜色呈现的程度称为显色性,也就是颜色逼真的程度,显色性高的光源
对颜色表现较好,我们所见到的颜色也就接近自然色,显色性低的光源对颜色再现较差,我 们所见到的颜色偏差也较大,用显色指数(Ra)表示。
就拿我当时买木地板来说吧,在店里看中的灰色款,那天拿出室外一看,明显的泛白和有点带黄,显然是因为店铺里的灯光受影响了我当初的判断。

国际照明委员会 CIE 把太阳的显色指数定为 100,各类光源的显色指数各有相同,
如:高压钠灯的显色指数为 Ra=23,荧光灯管显色指数 Ra=60-90。显色指数越接近 100,
显色性就越好。


自己作为摄影师对于显色自然更加看重,这也是我为什么选择魅光的一大原因,就是他们家的显色指数都比较高,而市面上很多家的灯具都是刚刚过80的及格线
6.炫光

首先来讲一下眩光是怎么产生的
当视线中某光源或物体的亮度比眼睛已适应的亮度大得多时,人就会有眩目的感觉,此种现象称为眩光。眩光会造成不舒适或可见度下降。
人的正常视野是水平以上30度,在这个区域我们不想要强光。


控制光线直射角度30°以内,同时也控制反射的光线也落实入30°角以内。
控制眩光的方式
- 适当的灯具保护角
- ·合理的安装高度
- 安装位置
- 工作面的表面情况
- 灯具本身再增加防眩光装置
7.场景与功能
不同的场景通常对于灯具自然有不同的要求,所以不管你在哪选购灯具,首先要看其店铺里的灯具种类是否足够丰富,还要看店员对于灯的那些参数是否了解,全屋千篇一律使用单一型号款式显然是不能够满足屋子不同环境的。


四、射灯位置的预想与最终布局
1.CAD制图
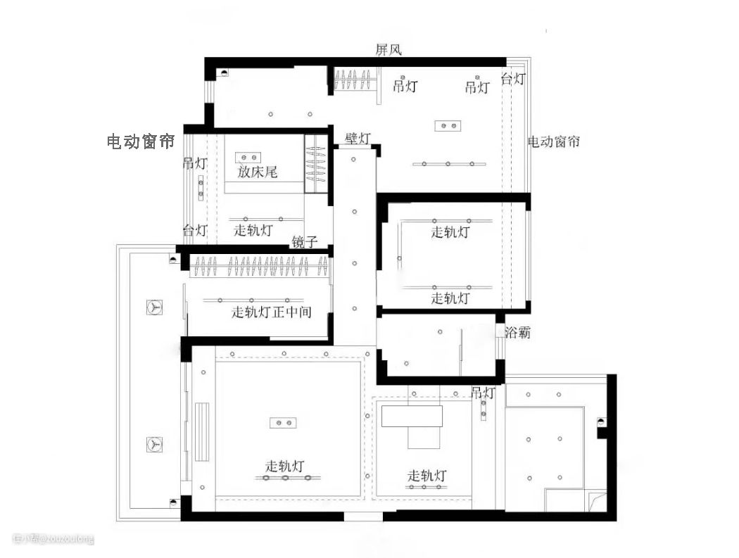
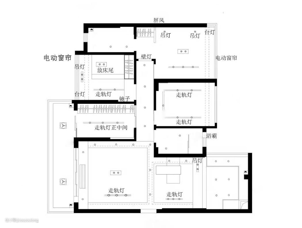
学习了相关知识,是时候实际应用操作了,于是下面就是我和老婆讨论许久的后得出的灯光布局图,

2.最终沟通定位
没有对比就没有伤害,对比之下显然纸上谈兵还是和实际运用有着明显差距吗,还有绘图员与设计师的差距,下面这个版本是店铺客服专门针对我CAD图纸和上面版本的灯位进行改良和优化的版本:

- 厨房:同样是6盏灯,对位置摆放进行了优化;
- 餐厅与客厅:对嵌入式灯具和轨道灯具位置进行了调整;
- 增加了阳台门中央空调出风口两侧的灯光,这样窗帘会更加好看;
- 优化了客厅电视墙的灯光布置;
- 优化了走廊的灯光布置;
- 将卫生间的灯光安排的更加合理和高效。
部分灯光位置解析:
比如这里的墙面需要考虑是否有隔板或者柜子,我这里墙面是猫墙和物架,所以就算有吊顶也只能轨道灯的方案。

而餐厅的墙面则不同,没有任何阻挡,两盏灯可以照亮墙面的挂画或时钟。

走廊的灯也并非等距排列的,最后一盏灯需要单独照顾走廊末端的挂画。

还有窗帘的灯光美化。

4.灯具清单
上文关于照度和夹角灯计算可能不少人都没弄明白,选择专业配灯的还有一个好处就是不需要自己再去计算夹角、照度、款式,对方直接根据图纸和场景就能列出一套完整的灯具清单。
对于他们家免费提供如此优质和专业的服务,相信绝大多数对灯具不够了解或者一知半解的朋友都是有非常大帮助的。

5.灯光补充和小调整

正如上面提到的,我只是在店铺完成了射灯的方案,射灯并不是满天星的排布,所以全屋的照明还是需要一些补充的:
比如一些射灯没照顾到但需要照亮的地方,可以通过壁灯、落地灯的方式进行补充;
或者需要改变色温的床头、吧台、餐桌等地方,我是通过吊灯来解决;
还有像衣柜鞋柜这些顶部灯光无法照顾的,我是留线之后进行补充;
卧室的窗帘可能也会加上美化的灯光;
阳台也许是唯一使用吸顶灯的地方,具体还要配合阳台的猫走廊进行设计,暂时留线安排。

七、未完
到目前为止,如果你问我装修最难的是什么,我觉得最难的是装修涉及到太多太多的专业知识与市场行情,而很多施工人员/装修公司都不懂好与坏的标准是什么,对于每一个装修的人来说都非常希望随时有一个专业的指导或交流的对象,所以这里非常感谢装修群里的小伙伴还有大佬对我的帮助。
自然要感谢魅光照明的设计师为我提供了专业的搭配与建议,因此费了不少时间和心力。
看了下店铺目前双11活动的优惠力度不小:比平时有200减20,还有最终的98折扣等一系列优惠,这种优惠力度最大的时候自然是要出手了。

看过我之前文章和熟悉我的朋友自然知道我的省钱之道:砍价必然少不了,双11优惠再叠加蚊子腿,味道更加美滋滋。
装修太难了(1)—装修套路千万条 |避坑、防套、省钱归纳汇总
自己可以说从一开始的一个装修小白,慢慢开始学会了不少知识。虽然很多地方不够专业,但自己和老婆一起参与我们家里设计的满足感和成就感显然是其他任何方式都无法比拟的,也少不了老婆一直对我的信赖和帮助。
最后文章原打算将灯光控制、开关和插座布局、电路等方面一起写完的,但显然本文就会变得又硬又长了,我写得困难也不利于你们阅读,所以这几个部分我临时决定留到了下一篇文章。
注:本文里的图片和内容并非全归我所有,如有侵权请联系我删除。
好了,本文到此结束,我是zouzoulong,欢迎种草关注分享交流~