为什么面积相同,邻居家就更大?
西安翼森设计
2019-11-20
买房时总会遇到各种户型问题,在装修设计时若做不到合理利用,就会出现鸡肋设计和空间的浪费。本次户型改造着重挑选4个常见户型和1个难点户型,进行改造分析。看看这些户型是如何做到化“鸡肋”为神奇的吧!
一. 常见四居室改造
户型基本信息
面积|Square Meters:建筑面积215㎡,实用面积185㎡
户型|Apartment:四室两厅

▲原始户型图
原始户型解析
①原始户型中,客餐厅间的墙体,不但影响户型的动线流畅,而且影响采光;
②书房和次卧比较独立,无法做到功能性的合并,影响日常生活使用;
③原始户型无玄关,影响使用和收纳储物;
户型改造方案
根据居住人数以及屋主生活习惯,对户型进行了彻底改造,通过对原始空间推敲,结合生活场景的分析,我们将总体空间分成三大块,分别为两个卧室+一个公共空间。

▲原始户型改造方案图
①入户设计玄关,利用墙体隔出储藏室,满足日常收纳需求;
②从局部来看,打通墙体后客餐厅融为一体,扩大空间的视野,增加采光;
③两个卧室被客餐厅隔开,保证空间私密性,使居住动线更加清晰;
④每个卧室都配备书房与卫生间,保证彼此学习工作时不被打扰;

▲改造后的平面布局图
上图为调整后的平面户型布局图。从图上看:无论从收纳空间、居住动线、功能区域划分,都更符合一家人的生活起居。我们通过各个空间来为大家分析一下本案例的改动部分。
01 玄关

▲原始户型入户处无玄关
原始户型没有预留玄关的位置,设计师利用空间缺陷,做了满墙嵌入式的鞋柜,让入户门空间干净整洁。

▲入户处设计满墙嵌入式的鞋柜

▲玄关实景图
另外,在两个柜体间特意设计壁龛。出现在走廊处的壁龛不仅可以增加储物空间,还能起到装饰作用,而且可以削弱墙体的厚重感。

▲壁龛正对面是承重墙体,无法拆掉,刚好可作为玄关端景,其存在也让空间更加含蓄,不会出现入户就将房间一览无余的尴尬,起到过度空间的作用。

▲主卧衣帽间改造
设计师压缩主卧衣帽间,并将门洞右移,做了一个小储藏室,满足大体积物品的收纳。

▲左侧开门状态为储藏室,右侧为定制鞋柜
02 客厅
整体空间运用多种材质,使质感层次丰富,功能区域划分清晰,动线清晰流畅。

▲客厅电视墙采用内凹安装手法,使整个空间更加整洁,隐藏电视的各种电源数据线。电视柜悬空处理并设置隐藏灯带,悬空比落地更有气质。
03 餐厅
设计师运用开阔的空间设计手法,打掉相连客餐厅后,扩大视觉感受,规划出满足个性化生活需求的洄游动线。

▲砸掉客餐厅间的墙体,扩大空间

▲客餐厅一体,视觉感瞬间扩大

▲设计师对餐厅墙体一侧加厚处理,并在镂空的位置设置灯带,在造型上增添空间层次感。
04 主卧

▲主卧

▲床头背景墙用木地板竖向铺贴,不但拉伸层高,而且平衡空间纵深,与地面材质呼应。

▲即使分出了一些空间作为储藏室,压缩后的衣帽间也有7.9m³的收纳空间,依旧能满足屋主日常收纳需求。
05 次卧(儿子房)

▲打掉书房与次卧之间的墙体,把整个书房归纳到次卧,让空间格局变规整,满足屋主对大空间的需求。

▲次卧实景图

▲打掉书房与次卧之间的墙体,将工作台放在靠近窗户的位置,增加采光。

▲次卧床头背景墙。
06 次卧·卫生间

▲考虑到屋主日常生活需求,我们将次卧卫生间开门方向移入卧室内。

▲次卧卫生间实景图
用玻璃隔断做简单干湿分区,使用起来更加方便,灰色1200x600mm的地砖上墙,中和空间。(这里说一下卫生间干湿分离的好处:将卫生间一分为二,干湿分开,可保持沐浴之外的场地干燥卫生,增加可用面积,提高安全性,延长设备的使用寿命。)
07 书房

▲书房与主卧串联,动线流畅。书房的一侧放置两人布艺沙发,工作乏累时,可以在这里偷会懒儿,同时也具备临时会客的需求。
08 四居室户型改造要点
对于四居室的改造,我们应该注意功能区的合理划分,舍弃掉不需要的空间,从而扩大必备空间的使用面积,提升空间的协调性和整体性,加强空间的功能属性和视觉吸引力。
二. 四居室Loft改造
现在loft户型很受欢迎,但是也要注意合理布局!
Loft户型优点:①具有很大的灵活性;②动静分离:loft户型装修后使空间更具有层次感,可以将一层用来当厨房,客厅、餐厅,二楼用来当做卧室和书房,私密性较强。
loft户型缺点:①空间有压抑感;②隔音效果差;③由于室内楼梯较窄,上下楼不太方便,不适合老人居住。
户型基本信息
面积|Square Meters:建筑面积115㎡,实用面积91㎡
户型|Apartment:四室两厅 Loft

▲原始户型图

▲原始户型分析图
原始户型解析
① 厨房空间太过于独立,动线不合理;
② 空间利用没有达到最大化,视野采光受影响;
③ 虽然卫生间有两个,但次卫和主卫面积过小,影响日常使用;
户型改造方案

▲设计方案平面图
针对户型特征和屋主居住诉求,对原始户型做了相应改造:
① 砸掉客厅与客卧相连的非承重墙体,做开放式书房;
② 拆掉厨房与客厅相连墙体,做开放式厨房;
③ 次卫洗手台外移,打造干湿分离;

▲改造后平面布局图
优化后的功能布局更适合屋主一家的生活起居。
01 玄关

▲玄关实景图
入户设计顶天立地玄关柜,中部镂空内置感应灯带。满足收纳功能的同时,还能方便日常生活。
02 客厅

▲改造后客厅平面图
客厅改动较大,为满足屋主对宽敞明亮的要求,砸掉客厅与书房相连墙体的非承重部分,做开放式书房,告别“孤独式”客厅。

▲客厅实景图
把客厅与阳台、书房打通,通过优化墙体规整空间,使书房与客厅融为一体,用地台做区分,改造后的客厅区域视野宽广很多。
03 书房


▲书房实景图
04 餐厅
打破原有格局,将生活阳台纳入餐厅,砸掉多余墙体,释放过道空间,做开放式厨房,将厨房功能向餐厅延伸,在这个家里我们不希望某个空间被格局限定。

▲改造后餐厅平面图
可以看到改动后的餐厨空间更加规整,家务动线也流畅很多,厨房操作台面向餐厅区域延伸,提高了空间的利用率。

▲餐厅实景图
05 厨房

▲改造后厨房平面图

▲厨房实景图
厨房做成开放式,与餐厅相连。餐厨一体式设计,居住动线流畅,方便日常使用。

▲厨房实景图
厨房采光很好,把水槽设计在窗边,利用立体空间收纳烹饪工具,解决台面杂乱问题。
厨房收纳要遵循「一眼就能看到,伸手就能拿到」的原则。
06 卧室

▲卧室实景图
07 卫生间

▲改造后卫生间平面图

▲卫生间实景图
家中常住人口两人,但有两个卫生间,相邻较近,且洗澡并非高频活动,便舍弃了主卫的淋浴区,改为梳妆台,使洗漱→化妆动线流畅。

▲洗手台实景图
洗手台原本在次卫内,空间狭小使用很不方便。将洗手台外移,做干湿分离,定制浴室柜提高收纳空间。卫生间作为常用空间,功能需求足够强,收纳空间不可或缺,干湿分区尤为重要!

▲次卫淋浴区实景图
08 四居室loft户型改造要点
现在loft户型很受欢迎,但是也要注意合理布局。Loft户型优点:①具有很大的灵活性;②动静分离:loft户型装修后使空间更具有层次感,可以将一层用来当厨房,客厅、餐厅,二楼用来当做卧室和书房,私密性较强。loft户型缺点:①空间有压抑感;②隔音效果差;③由于室内楼梯较窄,上下楼不太方便,不适合老人居住。
三. 三居室户型改造
本户型是一个还算方正的三室两厅的格局,但考虑到屋主日常生活习惯和居住动线因素,原始户型存在着很多问题,我们需要对其进行改造,做到合理利用空间,让动线更加流畅,不浪费每一寸居住面积。
户型基本信息
面积|Square Meters:建筑面积130㎡,实用面积108㎡
户型|Apartment:三室两厅
▲原始户型图
原始户型解析
① 餐厅面积过于大,面积竟然达27㎡,浪费严重;
② 衣帽间面积只有3.2㎡,无法达到屋主需求;
③ 主卧卫生间面积虽大,但长宽比例很难做完全的干湿分离;
户型改造方案
「拆除墙体」
▲拆除墙体平面动图
砸墙清单:
① 客厅与书房相连墙体的一部分;
② 次卧与餐厅相连的非承重墙体;
③ 餐厅的窗户,并扩大了厨房门洞;
④ 主卧与卫生间相连的部分墙体;
「新建墙体」
▲新建墙体平面动图
新建墙体清单:
① 餐厅新建墙体,分割出一部分空间纳入儿童房,增加学习区;
② 衣帽间的墙体向次卧移动,扩大衣帽间开间;
③ 借用过大的空调设备间,扩大厨房的使用面积;
④ 移动卫生间的墙体,扩大了面积;
「最终方案」

▲最终方案布局平面图
改造后,增加的功能:
① 满足一家三口的收纳空间;
② 步入式衣帽间;
③ 更大的厨房;
④ 能够提供学习与活动的儿童房;
设计师从生活本身出发,结合居住主人的生活习惯,巧妙利用空间的非承重墙体,尽量合理化每一个空间。
「收纳设计」
▲空间收纳设计动图
改造后,17.7m³的超大收纳空间,满足屋主日常全部的收纳需求。
01 客厅

▲客厅砸墙改造对比图
砸掉客厅与书房相连墙体的一部分,使空间动线更加合理。

▲客厅实景图
照明方式:抛弃了繁琐的吊灯,用暗藏灯带+筒灯的照明方式,赋予空间光影之美。
02 餐厅
▲餐厅改造对比动图
原本的餐厅面积竟然有27㎡,比客厅还要大,改动后的客厅空间更紧凑,利用率更高。

▲餐厅实景图
半开放式厨房保证了采光,与餐厅形成良好的互动性。
03 卧室

▲卧室改造对比图
砸掉了主卧与卫生间相连的部分墙体,再新建墙体,扩大卫生间面积,方便日常使用;衣帽间的墙体向次卧移动,扩大衣帽间开间,增加收纳空间。

▲卧室实景图
04 儿童房

▲儿童房功能区划分平面图

▲儿童房砸墙新建墙体对比图
砸掉原户型次卧与餐厅相连的非承重墙体,将餐厅的一部分纳入儿童房,增加学习区,并将次卧改为儿童房,满足日常使用需求。

▲儿童房实景图

▲借用餐厅一部分面积,做了学习区,在靠近窗户的位置,做了一个小书桌。
05 厨房

▲厨房砸墙新建墙体对比图
砸掉空调设备室的部分墙体,再重建墙体,借用过大的空调设备间,扩大厨房面积。

▲厨房实景图
借用空调设备室的部分空间,做了一个壁龛,将电器高柜与对开门冰箱嵌入墙体,不会显得突兀,也不会影响厨房动线。
06 卫生间
▲卫生间改造对比动图
原来的卫生间如果强行放下洗浴三大件,空间会非常拥挤。改变主卫与主卧相连的墙体,巧妙利用拐角对卫生间做合理的优化。

▲卫生间实景图
镜柜上下设计内嵌灯带,满足屋主洗漱照明需求。

▲卫生间实景图
次卫用玻璃隔断划分干湿区的同时,保证洗浴区的空间感,卫生间的干湿分离设计让空间干净整洁。
07 三居室改造要点
现在三居室的户型非常受欢迎,因为它的面积大小满足普通家庭的居住需求。在进行三居室的改造设计中,需要注意以下几个问题:①应该突出每个房间的独立性;②有很多空间没有合理利用,会出现浪费空间的现象。而常用功能区却面积过小,无法满足日常使用需求;③适当将各个功能区在满足居住动线、动静分区的情况下,通过砸掉非承重墙和新建墙体的办法,重新划分各功能区。
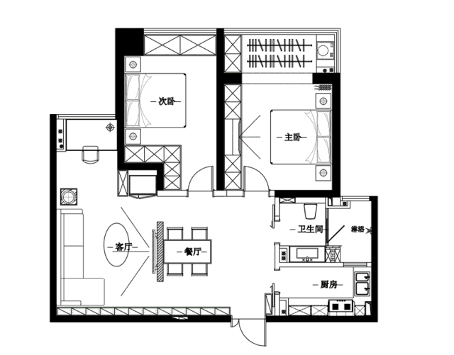
四. 两居室改造
整体户型为两室两厅,户型方正,活动区域开阔。卧室、厨卫等各个功能区的面积大小都较合理;但是,卫生间无干湿分离,需进行改造。另外,整个空间采光充足,但卧室作为休息区域,门朝向客厅或餐厅时,私密性一般。
户型基本信息
面积|Square Meters:建筑面积83㎡,实用面积61㎡
户型|Apartment:两室两厅
户型图

▲原始户型图

▲原始户型解析图
原始户型解析
①原始户型入户无玄关,且面积小,影响日常使用和收纳储物
②卧室作为休息区域,门朝向客厅或餐厅时,私密性一般;
③卫生间面积较小,且没有干湿分离;
④从餐厅到客厅阳台的过道过长,面积浪费严重;
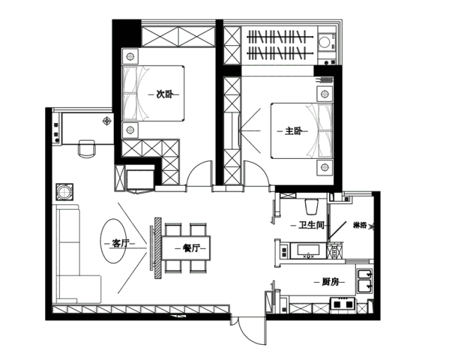
户型改造方案

▲平面布局设计方案
改动位置:
1.将卫生间的台盆外移,做完全干湿分离的卫生间;
2.在入户门位置新建墙体,留出鞋柜的位置;
3.将餐厅与玄关位置对调,利用过道空间放下四人餐桌,满足空间功能性;
01 玄关
原本户型无玄关,进门处逼仄狭窄,为了满足日常使用需求,要在小小的空间里容纳餐厅与玄关两大功能。

▲玄关平面改造对比图
为增加门厅功能,新建墙体留出鞋柜的位置,对调玄关餐厅空间位置,让餐厅与厨房,入户门与玄关形成 I 字动线,保证屋主回家时满心欢喜,离家时神清气爽的状态。

▲玄关实景图
鞋柜下部空间做悬空处理,满足日常使用。

▲玄关全景图
设计师在门侧边利用空间缺陷,放置试衣镜,满足使用的同时,弱化墙体体积感。
02 厨房

▲厨房实景图
利用空间做更大台面的U型厨房,按「冰箱取菜→洗→切→做菜→放菜」的动线来规划设计。

▲水槽设计在冰箱旁,拿→洗→切动线相当流畅。
特别说明:厨房收纳保证美观的前提下,要遵循「一眼就能看到,伸手就能拿到」的原则。拿取物品的动作超过三个,事情就会变得繁琐,物品很难回到原来的位置。用最简单的方式,把物品摆放整齐才是收纳的正确思维!
03 餐厅

▲餐厅实景图
对调玄关与餐厅空间位置后,餐桌旁边的收纳柜可充当餐边柜,放置临时餐具;下部空间用来收纳换季鞋子,缓解玄关柜的收纳压力。毕竟小户型的「收纳」功能,真的很重要!

▲餐厅实景图
04 卫生间

▲卫生间改造前后对比图
玄关鞋柜后是卫生间的干区,设计师用台盆外移法,设计完全干湿分离的卫生间,即使是上班早高峰,也不会出现上厕所堵车的状况。

▲将卫生间台盆外移实景图

▲卫生间实景图
新建高度1200mm墙体做淋浴区隔断,方便屋主日常生活。
05 客厅

▲客厅实景图
为增加客厅空间感,将灰色木纹砖由客厅向阳台延伸,解决小户型中客厅狭小的问题。

▲客厅·生活阳台实景图
06 两居室户型改造要点
大部分两居室几乎都是紧凑型的小户型,比较适合刚需人群。为满足“麻雀虽小,五脏俱全”,对于两居室的改造,我们应该注意空间的合理收纳和动线的流畅性。那么,两居室装修设计需要注意些什么呢?
①不要选用过暗的墙面颜色;②不要选择复杂的吊顶,因为小户型层高较低,太复杂的吊顶会压低层高,会让视觉产生压抑;③不要摆放过于宽大的家具,遵循“宁小勿大”的原则,或是选用储物型的家具,增加收纳空间。
五. 难点户型改造
本户型虽然是个两室两厅,但是原本的布局让空间太过压抑,使得从视觉看根本想象不到这是个快90平米的房子。另外,原始户型没有合理划分空间,且各个功能区之间太过独立,没有互动性。针对这种“难点户型”,我们必须进行合理拆除非承重墙体,重新进行动线布局,改善原始户型存在的问题,达到居住平衡。
户型基本信息
面积|Square Meters:建筑面积97㎡,实用面积88㎡
户型|Apartment:两室两厅
户型图

▲原始户型
原始户型解析
一走进户型,四面都是墙,餐厅与客厅太独立,会让人产生这是一个没有客厅的三室户型的错觉。
▲原始户型动静分区示意图
① 动静分区不合理,次卧距入户门较近,客厅公共区域的活动对次卧影响较大。
② 私密性不好,首先入户门向户型内望去对室内空间一览无余,两个卧室门都直接开在了离入户门最近的墙上。
▲原始户型解析动图
③ 通透性欠佳,户型只有单面采光,和通风不能形成空气对流,且次卧墙体在通风上更是雪上加霜。次卧是一个面积又小采光又不好的房间。
④ 卫生间的面积只有3.9㎡,很难做到干湿分离。
户型改造方案
▲拆除墙体改造动图
我们拆除次卧与餐厅,卫生间与阳台的墙体。对调了客厅与次卧的位置。考虑到屋主的身高,我们的所有设计尺寸都是非标的,为了不压缩层高,所有灯光都采用辅助灯光。
▲改造后平面布局动图
我们打破了一切常规设计,重新定义了户型,拆除墙体后让客厅与餐厅联动起来,扩大了玄关的收纳,让原本只有88㎡的房子看起来像100㎡。
▲改造后动静分区动图
更合理的动静分区才能保障居室主人的日常生活畅通方便,让休息的人安静休息,学习的人安心学习。
▲改造后的动线走向动图
更合理的动线,动线流畅与否将影响人们进行各种活动时能否顺利转换。好的动线规划将提高小户型的利用率。
▲改造后的收纳空间示意动图
从入户玄关,到客厅公共区域的收纳柜,到卧室的收纳我们给这个小家一个大大的收纳。单独的收纳空间就达到了11.3立方米,相当于你家里可以放下将近310个35L的登机箱。收纳是保证家是你想要的样子,在我们的眼里,收纳就是用最懒的方式把东西摆放整齐。绝不是单纯的做柜子。
01 客厅

▲砸掉原本次卧的墙体,增加客厅的通透性。阳光透过窗户,让午后也惬意十足。

▲客厅一角实景图
02 餐厅

▲考虑到整个空间的通透性,削弱电视墙的体积感,把阳光偷入餐厅,一个空间两种温度。

▲承载着工作与用餐两大重任的餐厅 实景图
03 卧室

▲主卧顶天立地的衣柜满足屋主衣物的收纳,电视机被巧妙的嵌入柜体,让一切看起来都是那么的契合。其实有时候我们想要的就是简单实用,而不是各种装饰的堆砌。

▲卧室看向阳台 实景图

▲卧室看向阳台 效果图
04 卫生间
▲卫生间改造对比动图
砸掉卫生间与阳台之间的墙体,将生活阳台融入卫生间,把生活阳台改为淋浴区,破天荒的打造了合理干湿分离的卫生间。

▲卫生间
05“鸡肋”户型改造要点
本户型属于“鸡肋”两居室,虽然看起来没什么大缺陷,但改造起来相当棘手。鸡肋户型一般都会存在以下几个问题:①动静分区不合理;②空间私密性差;③采光不好,通透性欠佳;④使用率大的功能区可能存在面积不够日常使用的问题。
如何解决这种问题呢?我们可以采用:①针对动静分区不合理,可以通过拆除非承重墙体或者调整功能区的位置来改变动线走向,达到动静合分布理;②针对采光差,可以首选浅色系装修,其次不做吊顶,增加空间通透感;③针对开门见厅、私密性差,可以设计隔断来缓解“开门见厅”的尴尬;④针对收纳少、功能区面积不够使用,可以依照“先墙后角再缝隙”的收纳原则,进行合理改造布局。