如何设计一部多层住宅的楼梯,设计依据是什么?
设计劳斯基
2020-01-17
首先我们需要给多层住宅下一个定义:层数在六层及以下的、供家庭居住使用的建筑 。
有了“家庭居住”这样的定性,我们可以依据《民用建筑设计统一标准》(GB 50352-2019 )第6.8.10条,来对踏步的高度和宽度取值。

表中,最小宽度值260(未注明的长度单位均为毫米,下同),条件允许,建议取值大一点,以提高行走舒适度,在这里我们取踏步宽度b=280;
最大高度值175,这个高度下的行走舒适度比较低,在设计实践中我们一般取高度h=160~165,具体高度由住宅楼的层高适当等分取值。
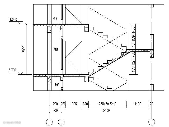
一般住宅楼层高2900。
先估算踏步数:2900/165=17.5...,取整数值18;
再确定踏步高度:2900/18=161.11...;保留两位小数,取h=161.11;
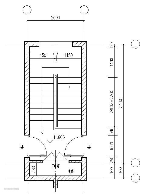
梯段的净宽按上下两股人流宽度计算,单股人流宽度550+(0~150),(0~150)是人流在行进人体的摆幅,因为多层住宅楼疏散的人比较少,可以适当地取较小值;再考虑100宽的梯井,240的墙厚(普通空心砖),粗略的算一下楼梯间的横向轴线宽度:
550*2+100+550*2+240=2540,取整数值2600。
因为楼梯栏杆会占用楼段净宽,梯井可以留小一点,宽度由100改为60,
得梯段的宽度值B=(2600-240-60)/2=1150。
楼梯一般为双跑,则单梯段有9级踏步,8个踏面,单个梯段的长度L=280*8=2240。
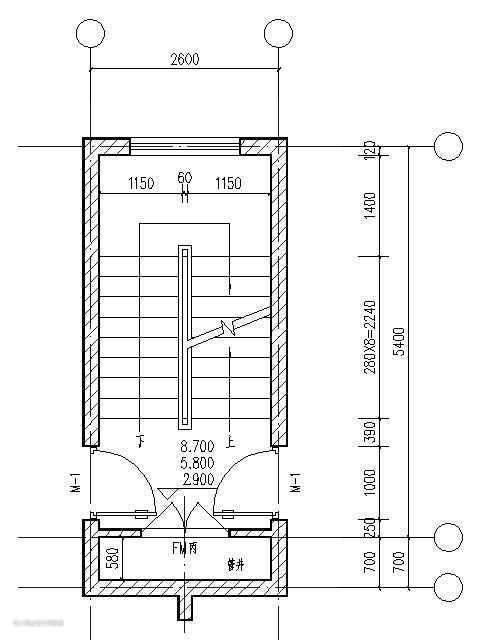
上述的数据,我们先将它们反映到图纸上,如图所示:

确定了楼梯间的面宽,再来计算一下楼梯间所需要的进深。
除了已经确定的楼梯长度2240外,我们还需要考虑以下几个尺寸:
1)、一个用于安装暖气立管并且可检修的、净宽约为600的设备井(轴线宽度定为700);
2)、宽度为1000的入户门;
3)、第一级或最后一级踏步距入户门边不应小于300;
4)、休息平台宽度不能小于梯段宽度且不小1200,既然踏步要求舒适,休息平台已适当做宽至1400;
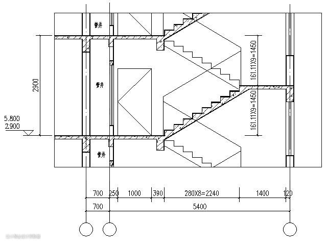
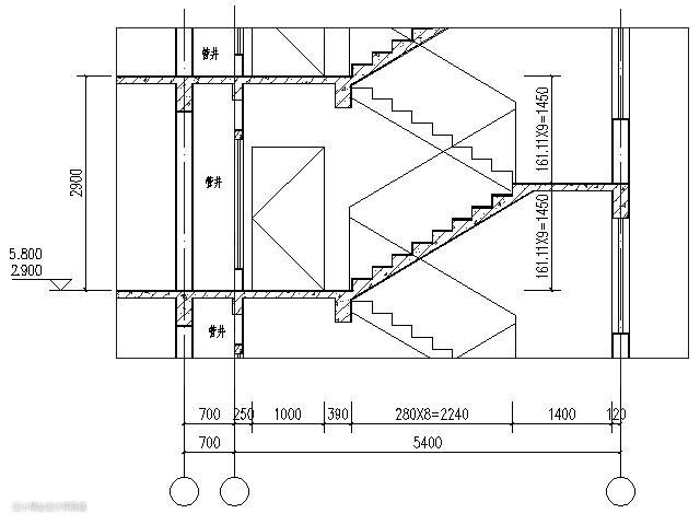
粗略的算一下楼梯间的纵向(进深)轴线宽度:
700+250(门垛)+1000+300+2240+1400+120(半墙)=6010,取整数值6100或5400+700。
这样,我们就得到了楼梯间标准层的平面图和剖面图,如图示:

楼梯间标准层平面图

标准层剖面图
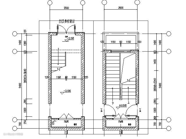
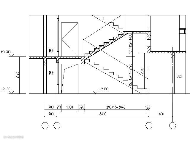
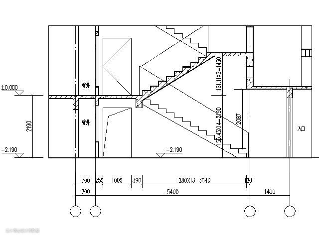
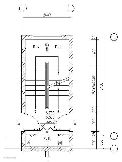
一般情况下,多层住宅的底层会设置成层高不超过2.2米(2.2米以下不计入容积率)的储藏室。这样,我们需要单独设计底层(储藏室层)的楼梯间,取储藏室层高2190,来估算一下踏步数:
2190/161.11(已确定的踏步高度)=13.59
如果取13步,则2190/13=168.46
如果取14步,则2190/14=156.43
据上文中增加舒适度的前提,在这里我们取14步。
由此得到楼梯间底层和一层的平面图,以及一层的剖面图,如图示:

楼梯间储藏室层和一层平面图

储藏室层剖面图
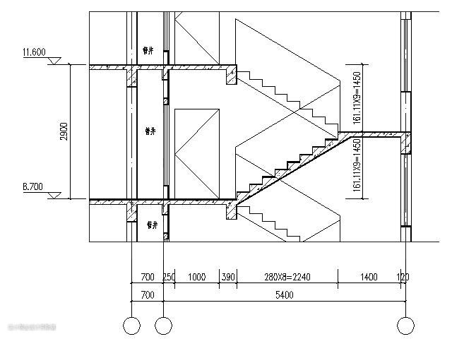
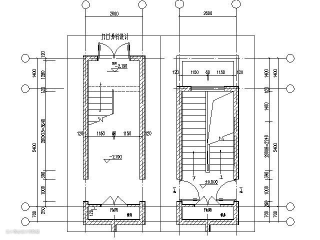
而没有电梯的住宅,顶层楼面距离室外地坪的高度不得大于16米,再根据标准层层高2.9米,底层2.19米,室内外高差0.15米,由此,我们推算一下最大建筑层数:
(16-0.15-2.19)/2.9+1=5.71<6;取整数值为5
这样,我们就得到楼梯间顶层的平面图和剖面图,如图示:

楼梯间顶层平面图

顶层剖面图
把上面的各层平面图合在一处,各段的剖面图拼接在一起,就是一套完整的楼梯间大样图了。