36㎡loft迷你小户型,住出了360㎡的大别墅的感觉
闫小匠
2020-02-09
你有这样一个梦想吗?以后一定要住进大house,迎娶白富美,走向人生巅峰,然后淡淡一摆手说,“我家不是豪宅,只不过大一点罢了…”有这样的梦想是好的!但是,也许你这辈子都不能拥有(掩面哭泣)。
我们在现实面前低下了高贵的头颅,塑料皇冠碎了一地。怎么办?没关系,那就当一条咸鱼吧,但一定要是最咸的那条~

不能住进大别墅,那就住洋气的loft,照样秒杀掉那些“财大气粗”土豪型房子。
小户型怎么了?看看住小户型的都是这样有审美、有设计感、爱生活的人们。
为什么都说买90㎡两室一厅,不如买36㎡loft迷你小户型?!看完你就知道了。

从一些家居图片中找灵感,可以更快的让你布置出自己想要的样子。
这是屋主设计自己的小loft之前,找的一些灵感图片,轻松确定了风格和方向▼

于是,这个36㎡的迷你小loft,通过屋主的设计再改造后,变成了这样,
功能齐全,空间安排合理,可以一群人开趴,可以看电影,可以和家人开启休息聊天模式……想干什么都行。



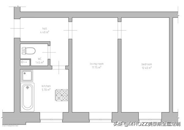
一个实用的LOFT,空间分区是关键!
面积就这么大,合理安排区域功能,是事先一定要考虑的。
从图中可以看出来,这个屋主将一半的空间留给了休闲娱乐的起居室,20%的空间用来休息睡觉,10%的空间用来储物整理,剩下的空间就是洗漱区、就餐区、玄关区了。▼

改造前,分区单一,利用率不高▼

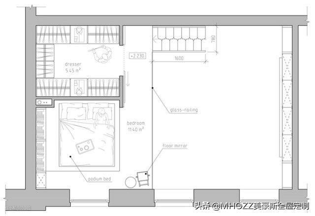
改造后
看着有点眼晕,但是不明觉厉,感觉可以立刻入住了。我们全方位立体化地看一下这个36㎡的小loft。▼




从二楼看客厅,可以看到一面书架墙,其实这儿还有个投影仪。
一般我们安装投影仪的时候,都会有这样的烦恼:不看电影的时候,那面墙就会显得太空旷突兀不好看,所以这个屋主很厉害,将幕布放在书架门板的地方,不看电影的时候也很有颜值不突兀。▼

从这样角度看,感觉这个客厅很舒适,工业风的吊灯,复古铁梯,硬朗的风格中再搭配舒适的家居,比如单色的布艺沙发和北欧风格的靠包,非常有品位啊。▼

所以,强大的客厅可以开启各种模式,
只有你想不到,没有你实现不了的!
论多变模式沙发的重要性。

可以容纳10个人哦~开趴就选它,欢乐靠大家!▼

如果想聚会开趴,需要个宽敞的就餐环境(再注意看沙发的朝向),那就将沙发移动到书架墙处,腾出可以放下餐桌餐椅的地方就ok了,接下来就狂欢吧。▼


最喜欢聚餐了,可以和狂欢模式同时开启。▼

其实这样也不错,还可以边吃饭边看电影。所以,有些布局不用一成不变,灵活些更能更好的生活(但是想必这样的布局是屋主事先考虑好的)。▼




关灯放电影,三五好友、或者二人世界、一家子欢乐都可以,再准备些零食、饮料、爆米花,一宅就是一天啊,这一定比用手机看爽多了。▼

没事的时候可以约上朋友一起看个电影,就是这么舒服、会享受。(此时沙发可以变两排)▼



沙发拼起来后,变成一张1.2米•2米的单人床,可以留宿亲人好友。@▼




客厅旁边就是玄关,楼上是主要是卧室,还有衣帽间。玄关的面积不大但够用,连自行车都可以放下。▼

玄关处摆放的也很合理,有换鞋凳,衣帽架,镜子,还可以放自行车,储物柜子,一点也不觉得拥挤。墙面是文化砖,有种浓浓的复古文化气息,刚一进来,一定会被这面墙吸引。▼



二楼的卧室,整体风格很舒适,选用的地台作为床,背景墙(其实是也是衣帽间的墙)简约大气、还有一些自然的气息;地台旁边是书架储物柜子,看样子可以放不少的东西,有封闭的,有不封闭的,杂而不乱。▼

衣帽间就在地台的后面,即一上二楼的地方。衣帽间是必备,我们有时候因为家的面积小而将衣帽间省略了,其实以后会后悔。▼



厨房在一楼,吧台、黑板墙、咖啡角一个都不少,并且橱柜分配合理,每个空间都有对应的功能,这样做起饭来也不会手忙脚乱,找不到东西。▼

临墙的吧台可作为临时用餐区▼



卫生间在厨房旁边,看看卫生间,也是别有洞天,面积不大,但是看起来很整洁不拥挤。三个区域分配合理,淋浴区用黑色作为区分。▼

洗漱区下方没有柜子,会显得宽敞器械,以后想储物也是可以的。▼


工业风再加点北欧风。墙面大部分是文化砖,柜子都是浅色系,有明有暗,不会压抑或者空洞。各种小家居用品选得也巧妙,吊灯、小茶几、靠包都有为家增色的作用。▼

其实通过自己设计的家,你会更加喜欢,你理想的家的样子只有自己知道,所以一点也不能马虎!即使家不大,也要装成想要的样子,因为,这是你的家啊。同意的请举手(举手模式~)