居住升级三大项:空间利用,阳台布置,衣帽间衣柜设计
装小蜜装修监理
2020-04-16
装修完搬进新家并不等于从此省心,很多烦恼会随着家居用品的增多、主人生活习惯的暴露,才逐渐浮出表面。
罗列一些常见的居住问题,帮助大家提前规避,升级居住体验。

1、东西越来越多,空间不够用怎么办?
解决方案一 把属性相同的空间集中起来,打造家庭核心区。
传统户型通常以客厅为核心进行布局,单一连接餐厅、厨房、书房、各个卧室等。如今,不少户型开始放弃“客厅”这个概念,以家庭“核心区”来替代,即起居、办公、用餐、烹饪一体的开放式空间。

小厨房面积有限,将部分烹饪功能转移到餐厅来,利用餐厅解决简餐操作,另一个人在厨房炒菜,可以有效缓解厨房压力。
设置一体化开放空间,可以去掉使用率极低的部件(比如常年开启、很少关上、始终占据一个轨道宽度的推拉门),让每一寸空间都发挥作用。

▲ 屋主Lu的家,去掉狭窄又碍事的厨房门,布置两排橱柜,获得了更多的收纳和家电空间

▲ 依然是屋主Lu的家,小推车紧贴橱柜,方便取用,还能够灵活地在厨房和餐厅之间移动
餐厅和厨房之间,或用吧台进行“不完全分隔”:吧台较高,视觉上能够阻挡厨房的杂乱;吧台作为小家电区、临时办公区、简餐区,餐桌就不再堆满杂物,在宽敞舒适的餐桌上用餐更有幸福感。

▲ 屋主小美人驴的家,拆掉了隔墙,用吧台分隔餐厅和厨房
解决方案二 利用可折叠、可收纳的家具增加弹性空间。
首先,尽量选择体量小的家具,这样就可以留出更大的活动空间,视觉上也更加通透。

▲ 小沙发、小桌椅,够用即可
然后,选择多功能型的家具,物尽其用,一件家具满足多种需求。

▲ 兼具书桌、书柜、收纳座椅三种功能的家具



▲ 屋主Eason的可伸缩餐桌,满足一人食和多人聚餐的需求
2、如何规划阳台?
之前的 封阳台要避开哪些坑? 说了封阳台在施工方面要注意的问题,这次重点说说阳台的功能布置。
解决方案一 家务型阳台
优先建议把阳台布置成家务型。新建商品房的阳台多预留雨污分流的双管道,老房子则可以把洗衣机下水管接到自家的排污管中。
将洗衣机放置在阳台上,洗好衣服直接晾晒(再也不用每次把衣服从卫生间搬到阳台),动线更加明朗,整个洗衣过程一气呵成。装修时记得预留插座给洗衣机、烘干机等。
尽量将洗衣机和水槽设计在同一侧,方便处理领口或袖口等细部衣物清洁,高低台面能适应洗衣机和水槽各自的最佳高度;水槽要有冷热水,如果阳台距离热水器较远,走热水管不经济,就在水槽下面加小厨宝;如果有条件,还可以安装壁挂式迷你洗衣机,专门用来清洗内衣和宝宝的衣服。

▲ 虽然小却高效的阳台洗衣角
为了使用洗衣机不弯腰,还可以用柜子抬高整个洗衣机,特别适合有老人的家庭,可以更轻松地料理家务。

至于晾晒,不太建议这种可折叠式晾衣架,虽然收放自如,但如果想在阳台上安置其他大件物品,它就十分碍事了。
流行趋势是能够遥控的电动晾衣架,高级版本的还带有紫外线消毒、对流风干等功能,拯救梅雨季节的南方小伙伴。价格在千元左右,多数家庭是可以接受的。

解决方案二 休闲型阳台
浪漫主义者心中的“我家有个植物园”,想实现也非难事。铺地材料首选瓷砖,防水、方便打理,喜欢木地板感觉的可以选择木纹砖,或者使用防腐木(塑木/生态木),只是缝隙会比较难清洁。

▲屋主卷卷绿的家,有植物和猫的阳台
小型植物放在多层置物架、小推车、长凳或桌面上,利用垂直空间,能够让植物显得丰富热闹有层次,而且浇水时不需要过度弯腰。

容器的颜值也很重要,除了传统的陶瓷盆和塑料盆,适合现代简约风格的还有金属盆、水泥盆、牛皮纸袋、藤编筐、玻璃瓶等。

3、想要一个小型衣帽间,能够做到吗?
大于12平的卧室,可以说是来自开发商的礼物了,诸如梳妆、办公等功能都可以整合进卧室里,衣帽间也不例外。
解决方案一 凹字型衣帽间
可以理解为一个比普通衣柜要深的步入式衣柜,三面储物,更重要的是,整合了梳妆功能,如果在普通衣柜外单独设立一个梳妆台,可能有衣柜门被梳妆台遮挡而难以开启的问题。

通常用轻体墙和铝合金玻璃推拉门来隔出衣帽间,玻璃是否透明看个人对隐私的在意程度,用谷仓门、甚至布帘代替推拉门也是可以的。

▲屋主习先生的衣帽间,用了透明玻璃的推拉门

▲屋主花花的衣帽间,用了不透明玻璃的推拉门
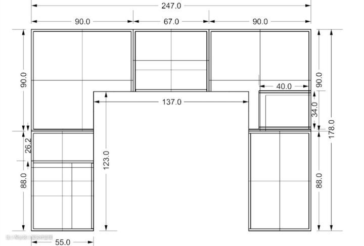
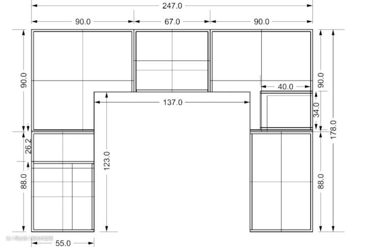
衣柜部分,可以通过家具定制实现,设计时,注意衣柜的深度是55cm,三面衣柜中间至少留出90*90cm的腾挪空间,人在里面才不会觉得局促。


▲屋主小美人驴的衣帽间,以及家具定制设计师给出的平面尺寸图(单位cm)
解决方案二 双线型衣帽间
即两排普通衣柜,中间留出过道的设计。大于15平米的、长条形的卧室打造双线型衣帽间更为容易,封闭式或开放式均可。
卧室比较小的,也有极限手段,比如在不影响卫生间功能的前提下,把卧室里或卧室附近的卫生间用石膏板墙隔成两半,其中一半做成衣帽间。

▲屋主Cat家,把主卫隔出一半做成衣帽间
最后,衣柜收纳设计也是居住中的高频问题——
柜体的最高处,可放置被子、过季的衣物,用大号的收纳袋把它们全部装起来,避免灰尘,材质较硬的素色收纳袋看起来更整洁有型。
挂衣区一定要多,当季衣物能挂则挂,不会有折痕。挂衣区男女分开,男士的上衣和下装分开,女士的短衣和长裙分开,短衣下方的空间可以做成抽屉,放置包包、围巾、薄T恤、内衣、袜子等。

▲屋主汤土豆儿的衣帽间布局
抽屉里的内衣、袜子等小件衣物,采用卷放的方式,依次码好,拉开抽屉一目了然;用抽屉分隔件把内衣、袜子分开,方便拿取,而且卫生。

无论抽屉本身还是抽屉分隔件,都可以和衣柜统一定制,只是价格不菲。衣柜定制设计成最简单的层板,另外购买尺寸适宜的抽屉等配件,是性价比更高的方式。

▲半透明塑料抽屉就是另外购买的