房子太小怎么装?看50平小户型装修案例,也能干净利落空间足
南京江水平装修队
2020-04-28
家的实用性和美观性从来不会被家的面积大小所限制,虽然装修设计没有专业人士专业,但没有任何一个人更能了解自己了。所以整个装修的布局设计和细节等,全部在自己的“鼓捣”之下慢慢成型,接着就交给施工队实施就行了。家里的实际面积只有50平,卧室有两个,也算是“五脏俱全”的小麻雀了。

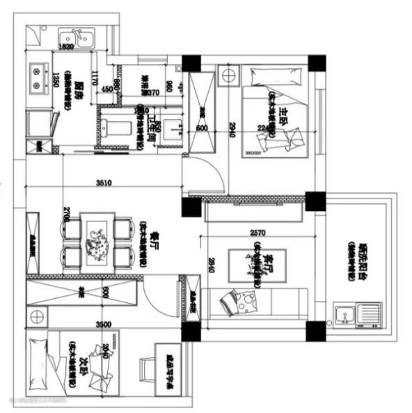
这个小户型的布局图,有舍才有得,虽然卧室只有两个,但却多了个客厅。

像这样的小户型,最重要的是收纳空间,很显然餐厅用卡座会比餐椅更合适。卡座在设计上也有很多细节的,做成抽屉的,那可以放一些常用到的东西。做成榻榻米那种的,可以放一些必须但不常用的,譬如鞋子之类的。卡座的靠背也要稍微倾斜,这样靠着更舒服。

鞋柜和餐边柜也是用来储物,但在细节上还需要斟酌,做出最适合自己家的细节。这个餐边柜也是挺无语的,原本餐边柜是直接用玻璃门的,可能定做的厂商觉得麻烦吧,就把它改成了小方格子,一点都不好打扫。而且我还没有喝酒的习惯,这个空间真的是浪费了,为了配合,还买了高脚杯。

鞋柜这一边是厨房和卫生间,厨房的面积不到4平,卫生间也只有3个多平方而已。

厨房虽然只有不到4个平方,只要布局的够好就可以充分利用。U型的厨房让橱柜有了更多的收纳空间,还不浪费空间,橱柜的角落空间可以用转角拉篮,这样里面的空间也可以用到了。大家如果要把冰箱留在厨房,一定要留出足够的空间,包括冰箱能不能塞进去,还包括冰箱门能不能完全打开。

干湿分离是卫生间一定需要的,即便只有三个平方多一点。卫生间选用了淋浴,用玻璃门隔断。壁龛和台盆柜都准备了,这样一些物品完全可以充足收纳了。

客厅的电视背景墙简简单单,简单的简直就是“寸草不生”啊!不过就是喜欢这种干净利落的感觉。

借用墙面的空隙,再做一个展示柜,当然也需要用光源来点缀。小巧的沙发和茶几,还有脚蹬。看电视的时候,脚有地方放最舒服了。沙发旁边还有空间,可以放落地灯,也可以放沙发柜。

阳台是洗衣服的地方,弄了一个洗衣机柜。

次卧的地方并不大,放了床和衣柜之外,连中间的过道也就剩下32厘米左右了。所以一般过道面积太小的,可以用衣柜移门。卧室除了小,其他的都装饰的很好,效果也很不错。