买房前一定要看,如何看一个户型好坏
南通设计师王硕
2020-05-25
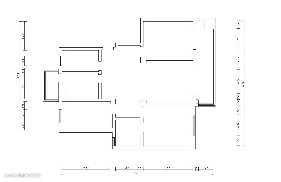
购买房子之前,户型是一个非常重要的因素。
评价一个户型的好坏有以下八个方面:户型方正,功能齐全,通透良好,动静分区,洁污分离,私密性强,动线合理,尺寸适中。

户型方正的意思是户型的每个空间是长方形或者是正方形的。方正的户型90度角会给人一种稳定的感觉,而锐角给人动感,一种不稳定的感觉。绝大部分家具是直角的,方形的户型摆放家具比较规整,而不规则的户型摆放家具就会有空间浪费。

现在户型功能都比较齐全,一般大户型不会有功能不齐的问题,一般出现这种问题的户型都是小户型,比如一些小户型没有设计独立厨房,做了开放式的厨房,有些户型牺牲了客厅,做了一个客餐厅一体的起居室。

通透性好是一个户型最最重要的一个因素。通透性主要是为了获得3种资源,采光,通风,视野。这是衡量一个房子最最重要的一个因素。
动静分区,我们一般认为厨房,客卫,餐厅,客厅是动区,卧室,主卫是静区。动静分离可以更好
洁污分离,这里的污是指厨房卫生间两个空间,洁是指除厨房,卫生间的其他空间。一般卫生间开门不朝向卧室,厨房一般放在入户门的位置。
私密性强,要做好私密性一般有两点,一要有玄关,防止从门外一眼看到门内。二卧室区和客餐厅的要有分隔。避免公共区域对私密区一览无遗。

动线合理。动线是指人在户内活动的流线,一般流线分家人动线,家务动线和客人动线。家人流线是指家人从客餐厅到卧室的动线。家务动线一般从厨房到餐厅,洗衣房到晾晒阳台的动线。客人动线是指从客厅到餐厅的动线。检查一下,户型这三种动线是否流畅。
尺寸适中,每个空间都有适合的尺寸。每个空间的大小是根据柜子,沙发,床等家具倒推出来的,如果空间过小,家具就会不够放。是不是空间越大越好呢。卧室过大,会给人一种空旷感。古代风水上也讲,卧室过大会散气。一般来讲,卧室开间在2.8-3.3米。进深在3.4-4.2米。
最后附一张户型评分表,

根据这张表,看看你家的房子多少分