13~40㎡户型的平面布置
Lee的设计收藏夹
2020-06-04

平面布置图看起来只是一些家具的摆设,外行看着没啥技术含量,但对于每个设计师来说是汇聚了整个设计的心血。
你看不到的可能会有人在空间中行走的动线、使用功能的尺寸、立面造型、材料选择、视觉的通透性等等等等。
内小宅 整合所有过往的文章为你快速找和你家户型相似的平面布置图(点击图片,跳进原文章了解更多细),今次先整理出《13~40㎡户型》,总有一款甚至一个设计点会和你走进心流。
闭上眼睛,感受第一眼的喜悦吧!
40 ㎡
这才是真正的欧式乡村风,20㎡的客厅+20㎡卧室 ▼
*小宅推荐 #欧式乡村风 #中间开户

你太小瞧小房子了,40㎡能装这么多 ▼
#现代简约风 #黑白 #酒店套房 奢华feel

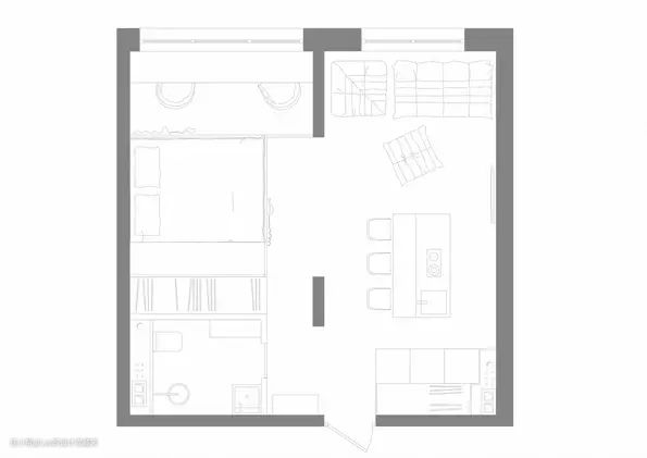
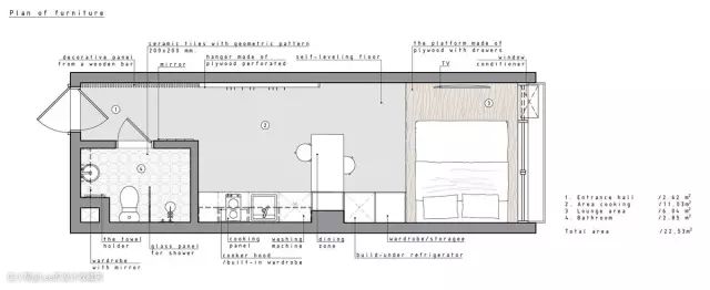
40 m²小宅,放弃两间卧房,只为得一个向阳的大浴室 ▼
#简约风 #日式温馨 #通透

39 ㎡
小家更得动线分明 ▼
#性冷淡风 #水泥

36 ㎡
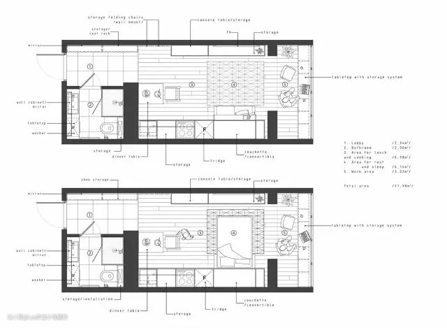
满足年轻人多样性的36㎡ LOFT公寓 ▼
*小宅推荐 #LOFT #年轻人户型 #开派对

36㎡一室一厅,隔墙打掉,客厅和卧室都变大了 ▼
*小宅推荐 #大地色系 #男士品味 #通透

34 ㎡
魔都小两室无厅,爸妈来带娃咋住 - 看梦想改造家爆改“十三步走完的家” ▼
*小宅推荐 #简约 #超强功能 #东方卫视《梦想改造家》

34㎡迷你小屋,卧室、餐厅、厨房一样不少,竟然连阳台都有 ▼
#现代风 #彩色墙

33 ㎡
零碎空间利用好,33㎡也能有完美的工作间 ▼
#简约温馨 #MUJI #干净整洁

32 ㎡
32 m²改造北欧风公寓,省钱你就这么装 ▼
#北欧风 #现代简约 #香港

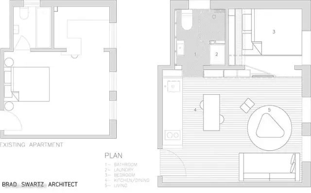
31 ㎡
工业风装得像破房?人家的却能小清新 ▼
#小清新 #工业风 #温馨

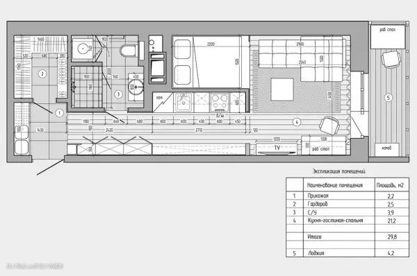
30 ㎡
30㎡,一切两断的好设计 ▼
#现代

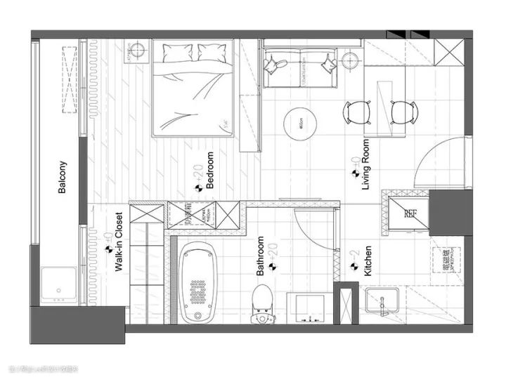
胡同旧宅改造30㎡秒变3室1厅,拥有创新科技的未来之家 ▼
*小宅推荐 #中国传统建筑改造 #科技 #未来设想
29 ㎡
29㎡,给卧房加个表皮,就是厨房的灶台区 ▼
#北欧风 #盒子

28 ㎡
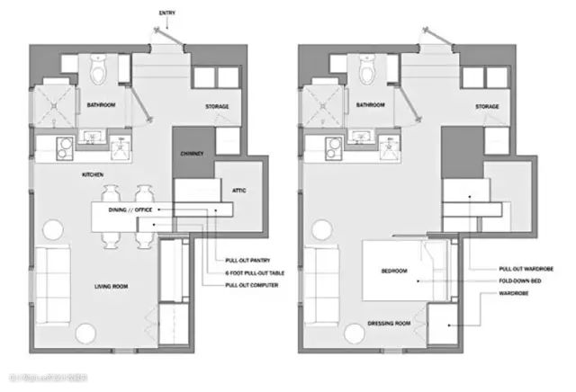
28㎡超小户型的隐藏设计 ▼
*小宅推荐 #简约 #盒子 #超强功能 #开派对

27 ㎡
27㎡极简爱巢,这才是生活最真实的模样 ▼
#简约 #超强功能

27㎡!拥有封闭式的厨房,真新很宜居 ▼
#现代 #色彩缤纷

26 ㎡
26m²只是加了块镜子,使用面积就扩大了一倍 ▼
#极简 #我最酷

25 ㎡
25㎡小小宅 ▼
#现代 #日式 #温馨小家

23 ㎡
狭窄23m²小户型,够极简 ▼
#简约 #时尚 #少女心

22 ㎡
22㎡小小宅,打通阳台后,房子完全变了个样 ▼
#现代 #居家 #个性

21 ㎡
21㎡还能再小?靠这个魔法盒子就能收起整个家 ▼
#现代 #魔法盒子 #梦幻少女

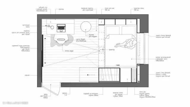
14 ㎡
换个思路设计储物!仅仅14㎡,却也完爆了那些大宅设计 ▼
#简约 #魔法盒子 #换角度思考

13 ㎡
用适应性最强的家具,创造最小13㎡ 公寓 ▼
#简约温馨 #多功能 #全伦敦最小
